Book a Viewing

To book a viewing for this property, please call Johnsons Property Consultants, on 01386761515.

To book a viewing for this property, please call Johnsons Property Consultants, on 01386761515.

For Sale
£550,000 Offers Over

Residential Development, Kings Road, Evesham, WR11

Kings Road, Evesham, WR11


Johnsons Property Consultants Primary Brand brand logo

Johnsons Property Consultants

91 High Street, Evesham, Worcestershire

Description

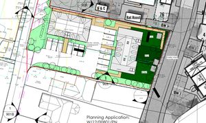
Prime Residential Development Opportunity – Full Planning Consent for 9 Units
Evesham, Worcestershire
Planning Ref: W/22/01557/FUL (Wychavon District Council)

A consented and immediately deliverable residential development opportunity in a proven private sales location within walking distance of the popular Bengeworth CE Academy and other local amenities.

The site benefits from full planning approval for nine dwellings, providing a well-balanced mix:

  • 2 x 3-bedroom townhouses

  • 1 x 4-bedroom townhouse

  • 6 x 2-bedroom apartments within a single block

The scheme composition offers an attractive blend of units, aligned to strong local buyer demand for both houses and apartments in this part of Worcestershire.

The planning permission (Application No. W/22/01557/FUL) provides a de-risked platform for delivery, enabling a purchaser to move directly to pre-start and construction phases without delay. The manageable scale of the scheme should appeal to local or regional operators seeking a consented site with straightforward build-out potential and minimal upfront planning exposure.

Location

The site is situated in a well-established residential area of Evesham, a historic and expanding riverside town serving a wide commuter catchment across Worcestershire, Warwickshire, and the north Cotswolds. The setting is particularly attractive, positioned only a short walk from Evesham Marina and the River Avon, with footpath connections offering lifestyle appeal for future residents.

The town benefits from strong transport connectivity via the A46 and A44, as well as direct rail services to Worcester, Oxford and London Paddington. Local services, schools and amenities support robust private sale demand, underpinning confidence in absorption rates and exit values.

Summary

This is a turnkey, consented residential scheme offering:

  • Full planning approval in place

  • A balanced mix of houses and apartments

  • An immediately deliverable development in a proven residential location

  • Scale and configuration ideally suited to local or regional developers

For further information, please contact our friendly sales team today.

About the Area

Evesham is a market town situated ideally just north of the Cotswolds, a protected landscape, and Area of Outstanding Natural Beauty. Evesham itself provides a wealth of amenities, schools, performing arts venues, community events and good commuting access. This property enjoys an enviable location, situated close enough to the town centre to benefit from amenities but with ease of access onto the A44 or A46 roads.

The Vale of Evesham is well-known for its fruit and vegetable growing, with annual asparagus sales and plum festivals as well its medieval heritage, commemorated by the ever growing and popular Battle of Evesham event that takes place in August each year. Evesham is home to an independent cinema, a choice of arts venues offering regular live shows and a good choice of independent and chain retail stores, public houses and eateries. For the sporting orientated, there are a great selection of clubs including a rowing club which has had a famous Olympic athlete oar their way to success from! There are numerous clubs to get involved with to suit every hobby or future professional!

There is good access to healthcare, with four GP surgeries that cover the area and a minor injuries unit located in the centre. There are local pharmacies and dentists that also provide good service to the area.

For the commuters, Evesham has a train station located centrally that provides great direct access to the nearby city of Worcester or through to London (Paddington). There are regular bus routes through to the surrounding villages, within Evesham or a further afield to nearby towns such as Stratford upon Avon or Redditch.

Identity Checks

Estate Agents are required by law to conduct anti-money laundering checks on all those buying a property. We have partnered with a third party supplier to undertake these, to ensure they are HMRC compliant. The cost of these checks is £48 (incl. VAT) and is non-refundable. The charge covers the cost of obtaining relevant data, any manual checks and monitoring which may be required. This fee will need to be paid, and checks completed in advance of issuing of a memorandum of sale. 

Important Notes

Planning enquires concerning the property and surrounding area can be made with Wychavon District Council.

Environmental enquires concerning the property and surrounding area can be made with Environment Agency.

Broadband inquiries at the site, concerning its availability and estimated strength and download speeds can be made with BT.

Misrepresentation Act: These particulars are prepared with care but are not guaranteed and do not constitute, or constitute part of, any offer or contract. Intending purchasers must satisfy themselves of these particulars’ accuracy by inspection or otherwise, since neither the seller nor Johnsons shall be responsible for statements or representations made. The seller does not make or give, and neither Johnsons nor any person in their employment, has any authority to make or give any representation or warranty in relation to this property.

We endeavour to make the sales details accurate, if there is any matter(s) that is particularly important to you, please check with us prior to travelling any distance to view the property.

Johnsons Property Consultants reserve the right to earn a referral fee from third party providers, if instructed.

Key Features

  • Development site with full planning approval for 9 residential units
  • Well-balanced scheme comprising 2 x 3-bedroom townhouses, 1 x 4-bedroom townhouse, and a block of 6 x 2-bedroom apartments
  • Application No. W/22/01557/FUL (Wychavon District Council)
  • Popular residential area, only a short walk from the Bengeworth CE Academy

Property Details

  • Property type: Residential Development
  • Plot Sq Feet: 12,798 sqft
  • Council Tax Band: TBD
Please note, property and plot sizes displayed are for guidance purposes only and may have been derived from publicly available information over which neither the agent nor Street.co.uk have control.

Location

Properties you may like

By Johnsons Property Consultants

Disclaimer - Property ID 36da4008-0b20-4398-a60d-f2c76ad7456d. The information displayed about this property comprises a property advertisement. Street.co.uk and Johnsons Property Consultants makes no warranty as to the accuracy or completeness of the advertisement or any linked or associated information, and Street.co.uk has no control over the content. This property advertisement does not constitute property particulars. The information is provided and maintained by the advertising agent. Please contact the agent or developer directly with any questions about this listing.