Book a Viewing

To book a viewing for this property, please call Helmores, on 01363 777 999.

To book a viewing for this property, please call Helmores, on 01363 777 999.

For Sale
£595,000 Guide Price

5 Bedroom Detached House, Lapford, Crediton, EX17

Lapford, Crediton, EX17


Helmores Primary Brand brand logo

Helmores

Helmores, 111-112 High Street

Description

Lapford is one of the larger of the local villages and as such has the benefit of an active community with plenty going on. The village boasts a primary school, pub and petrol station/shop and there are regular bus and train services (via the Tarka line) making it an ideal village setting without being isolated. With miles of countryside walks on the doorstep to enjoy too, it’s sure to appeal to a range of buyers. On the edge of the village is Kelland Hill, a small country lane with a linear development line of detached properties which have wonderful rural views with fields to the front and rear aspects.

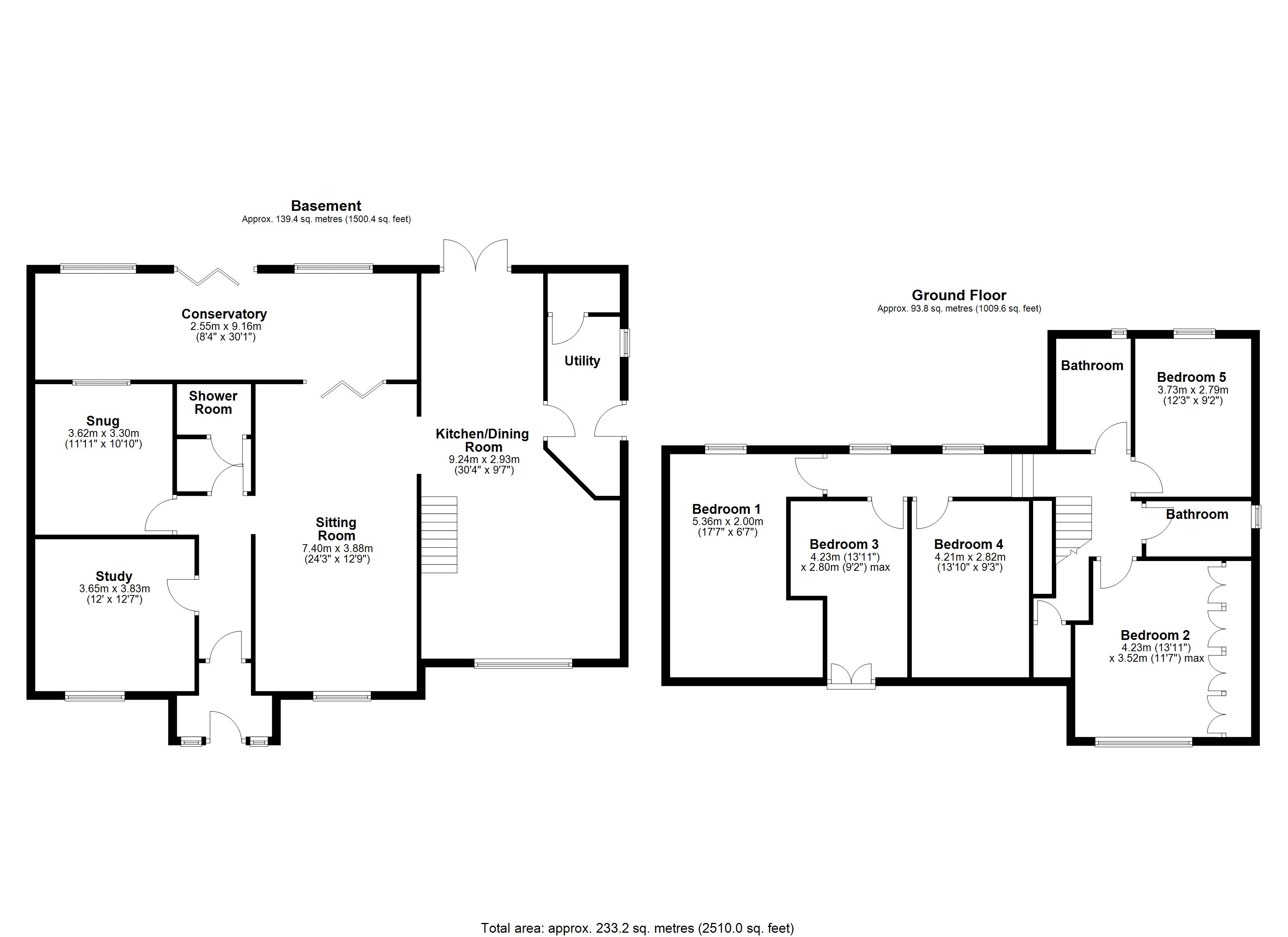
Kinlet occupies a plot of approx. one third of an acre with the house offering over 2500 sqft of internal accommodation which is a big property. It has undergone a series of extensions and improvements to produce what’s on offer today – a large, bright property with five bedrooms, three bathrooms and various reception rooms making it a flexible and sociable house. Plenty of thought went into the design, not just of the layout but how to make this place work and the addition of underfloor heating on the ground floor, powered by the air source heat pump is a great example. As are the solar panels which feed into a battery for use on site and the double glazed windows which all come together to produce a home that’s easy to run, along with affordable. With an EPC rating of B, that’s pretty impressive on a house of this age and type.

The layout offers three reception rooms on the ground floor which include a large study, a snug and a sitting room, again these offer a variety of layout choices. From the sitting room there are bifold doors to the conservatory which overlooks the rear garden. The heart of many homes is the kitchen and this one doesn’t disappoint. With an island breakfast bar and room for a large table, it’s ideal for those with families and who like entertaining, being able to cook and chat at the same time! As one would expect, there’s also a ground floor WC/shower room and a separate utility room too. On the first floor are five bedrooms with views in both directions, and two bathrooms.

Outside to the front is off-road parking for a number of vehicles which is gated to the country lane and then the rear garden slopes away from the house with the top area being tiered to provide a terrace and fruit and vegetable plots. The remainder of the garden is laid to lawn and backs onto fields plus there’s a greenhouse and useful outbuilding.

It's a large property so for those looking for value for money with plenty of space inside and out, all in a village setting, then this is definitely worth a look.

Buyers' Compliance Fee Notice

Please note that a compliance check fee of £25 (inc. VAT) per person is payable once your offer is accepted. This non-refundable fee covers essential ID verification and anti-money laundering checks, as required by law.

Please see the floorplan for room sizes.

Current Council Tax: Band C – Mid Devon

Approx Age: 1960’s and more recent extensions

Construction Notes: Standard

Utilities: Mains electric, water, telephone, broadband and solar PV with 5.2kw

Broadband within this postcode: Superfast Enabled

Drainage: Mains drainage

Heating: Air source heat pump (ground floor – underfloor heating) and wood-burners

Listed: No

Conservation Area: No

Tenure: Freehold

 

LAPFORD is a large village, beyond Morchard Road on the A377 - 9 miles from Crediton and 16 miles from the City of Exeter. Like most Devon parishes, it’s not far from a lovely collection of trees – Eggesford Forest is just up the way, a regal coniferous plantation that plays host to variety of creatures including adders, butterflies, buzzards and woodpeckers (and badgers!). The village itself has a primary school with an excellent Ofsted report, sizeable playing fields (with a football pitch and kid-friendly playground) and a busy pub – The Old Malt Scoop Inn, once a 16th Century coaching inn – which now offers an à la carte dining experience, using only the best local produce.

 

DIRECTIONS : For sat-nav use EX17 6AF and the What3Words address is ///colleague.imprinted.early

but if you want the traditional directions, please read on.

If in Crediton High Street, proceed through the village of Copplestone, being sure to bear right after the traffic lights, staying on the A377 towards Lapford. As you reach Lapford Cross, turn left (just before reaching the garage) into Kelland Hill and the property will be found on the right hand side.  

 

 

 


EPC Rating: C

Key Features

  • Fantastic detached village house
  • 5 bedrooms and 3 bathrooms
  • Over 2500 sqft of accommodation
  • Sociable living spaces
  • Large rear garden
  • Extended and beautifully presented
  • Fantastic rural views
  • Nearby bus and train stops
  • Eco credentials - EPC B (air-source, solar PV's)
  • Ample off-road parking

Property Details

  • Property type: House
  • Property style: Detached
  • Price Per Sq Foot: £249
  • Approx Sq Feet: 2,390 sqft
  • Council Tax Band: C
Please note, property and plot sizes displayed are for guidance purposes only and may have been derived from publicly available information over which neither the agent nor Street.co.uk have control.

Floorplans

Outside Spaces

Garden

Includes 3 sheds and established fruit trees

Parking Spaces

Off street

Capacity: 4

Parking in gated front yard

Location

Properties you may like

By Helmores

Disclaimer - Property ID 3907b157-7a7a-4291-a5e4-daf718dcd523. The information displayed about this property comprises a property advertisement. Street.co.uk and Helmores makes no warranty as to the accuracy or completeness of the advertisement or any linked or associated information, and Street.co.uk has no control over the content. This property advertisement does not constitute property particulars. The information is provided and maintained by the advertising agent. Please contact the agent or developer directly with any questions about this listing.