Book a Viewing

To book a viewing for this property, please call Weardale Property Agency, on 01388434445.

To book a viewing for this property, please call Weardale Property Agency, on 01388434445.

For Sale
£137,500

2 Bedroom Mid-Terraced House, Hood Street, St. Johns Chapel, DL13

Hood Street, St. Johns Chapel, DL13


Weardale Property Agency brand logo

Weardale Property Agency

63 Front Street, Stanhope

Description

Nestled in the picturesque rural village of St Johns Chapel, within the heart of the North Pennines National Landscape, this two-bedroom mid-terraced house offers a delightful blend of character and comfort. The property’s inviting interior is arranged around two spacious reception rooms, each featuring a multi-fuel burner that creates a warm and welcoming atmosphere, ideal for relaxing evenings or entertaining guests. Period charm abounds, including exposed ceiling beams, deep wooden sills, and a striking cast iron Victorian range that serves as a focal point in one of the reception rooms. The kitchen provides ample storage and worktop space, while a practical utility room adds convenience for daily living. Upstairs, two bedrooms enjoy hillside views and plenty of natural light, making them peaceful retreats at the end of the day. Externally, a private rear yard provides an outside space in which to enjoy the fresh air and sounds of the countryside.

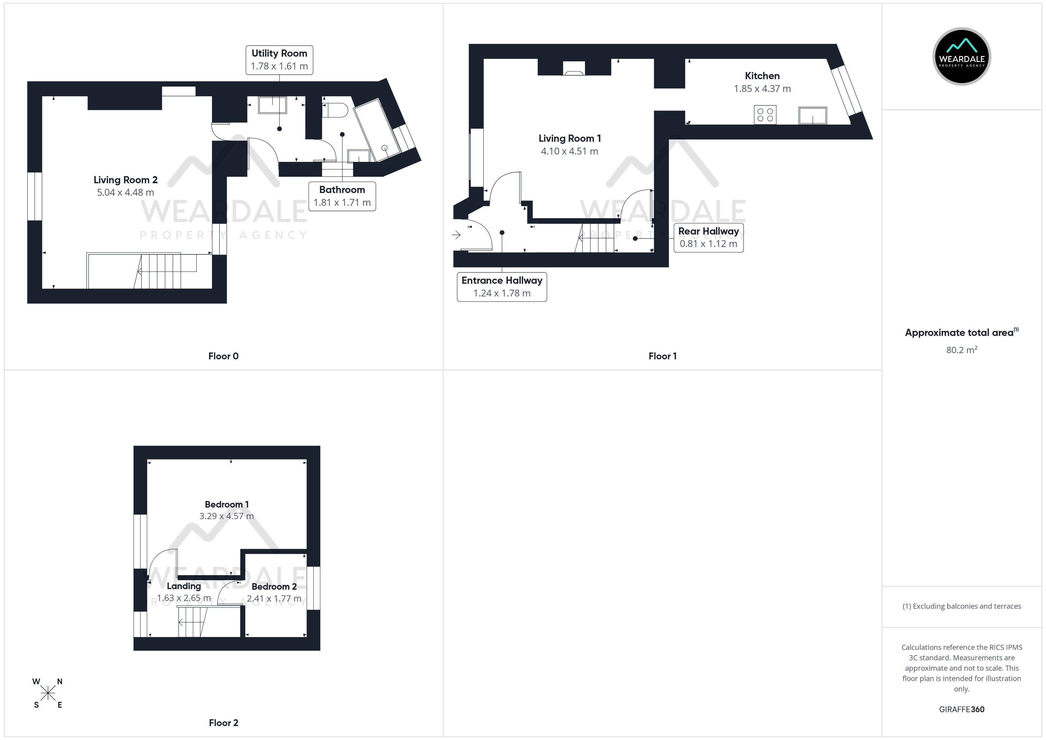
In brief, the ground floor accommodation comprises, an entrance hallway (with a staircase descending to the lower ground floor), spacious living room, kitchen, rear hallway (with a staircase rising to the first floor). To the first floor are the property’s two bedrooms (one of which is a well-proportioned double). To the lower ground floor, is another spacious living room, utility room, and bathroom.

Outside, the property benefits from an enclosed private yard, accessed from the utility room through a double-glazed uPVC door with a frosted pane, or externally via four steps down from the access road at the rear. This secluded outdoor area offers space for outdoor furniture, making it the perfect spot to unwind while taking in the beautiful views of the hillsides to the North. The gentle sounds of the nearby river Wear add to the peaceful ambience, creating an ideal setting for enjoying the fresh country air.

Whether you are seeking a serene rural retreat or a characterful home, this property is sure to appeal.

Estate Agent Notes

  • The neighbouring property to the Eastern side, has right of access over the rear yard

  • Heating is supplied via stand-alone gas bottles

Disclaimer:
These particulars are intended to give a fair description of the property but do not constitute part of an offer or contract. All descriptions, dimensions, references to condition and necessary permissions for use and occupation, and other details are given in good faith and are believed to be correct, but any intending purchasers should not rely on them as statements or representations of fact and must satisfy themselves by inspection or otherwise as to their accuracy. No person in the employment of the seller or agent has any authority to make or give any representation or warranty in relation to this property. We are obliged to conduct an Anti-Money Laundering (AML) check on all buyers, this is a legal requirement, it’s an online process and doesn’t affect your credit score. We charge a fee for the AML check, which our Onboarding and Compliance Team will collect once a buyer has had an offer accepted on a property.


EPC Rating: F

Key Features

  • 2-bedroom terraced house
  • 2 spacious reception rooms featuring multi-fuel burners
  • Character features
  • Feature cast iron Victorian range
  • Utility Room
  • Private rear yard
  • Hillside views
  • Located in the quiet rural village of St Johns Chapel, within the North Pennines National Landscape

Property Details

  • Property type: House
  • Property style: Mid-Terraced
  • Price Per Sq Foot: £159
  • Approx Sq Feet: 863 sqft
  • Council Tax Band: B
Please note, property and plot sizes displayed are for guidance purposes only and may have been derived from publicly available information over which neither the agent nor Street.co.uk have control.

Rooms

Entrance Hallway

1.78m x 1.24m

- External access to the front of the property is gained via a double-glazed uPVC door with frosted pane into the entrance hallway, which provides onward internal access to living room 1, and a staircase that descends to the lower ground floor - Wooden flooring - Neutrally decorated - Ceiling light fitting - Wall mounted coat hook rail

View Entrance Hallway Photos

Living Room 1

4.51m x 4.10m

- Positioned to the front of the property, accessed from the entrance hallway, and providing onward internal access to the kitchen, and rear hallway - Double-glazed uPVC window to the Southern aspect, looking over the front of the property - Wooden flooring - Neutrally decorated - Multi-fuel burner set on a tiled hearth, with brick surround - Central ceiling light fitting - Radiator - Ample space for lounge and dining furniture

View Living Room 1 Photos

Kitchen

4.37m x 1.85m

- Positioned to the rear of the property and accessed from living room 1 - Double-glazed uPVC window with deep tiled sill to the Northern aspect, looking over the rear of the property, and providing lovely views of the surrounding hillsides - Laminate flooring - Range of over/under counter storage units - Laminate work surfaces - Stainless steel sink and drainer - Built-in gas oven and hob - Space for free-standing appliances - Ceiling light fitting - Radiator

View Kitchen Photos

Rear Hallway

1.12m x 0.81m

- Positioned to the rear of the property, accessed from living room 1, and providing onward internal access to the staircase that rises to the first floor - Carpeted - Neutrally decorated

View Rear Hallway Photos

Landing

2.65m x 1.63m

- A carpeted staircase rises from the rear hallway to the landing, which provides access to the property’s two bedrooms - Double-glazed uPVC window with deep wooden sill to the Southern aspect, providing beautiful views of the surrounding hillsides - Carpeted - Neutrally decorated - Ceiling light filling - Access hatch to the property’s roof space

View Landing Photos

Bedroom 1

4.57m x 3.29m

- Positioned to the front of the property and accessed from the landing - Well-proportioned double room - Double-glazed uPVC window with deep wooden sill to the Southern aspect, looking over the front of the property, and providing amazing views of the surrounding hillsides - Wooden flooring - Neutrally decorated - Ceiling light fitting - Radiator - Ample space for free-standing storage furniture

View Bedroom 1 Photos

Bedroom 2

1.77m x 2.41m

- Positioned to the rear of the property and accessed from the landing - Single room - Double-glazed uPVC window with deep wooden sill to the Northern aspect, looking over the rear of the property, and providing stunning views of the surrounding hillsides - Carpeted - Neutrally decorated - Ceiling light fitting - Radiator

View Bedroom 2 Photos

Living Room 2

4.48m x 5.04m

- A wooden staircase descends from the entrance hallway to living room 2, which provides onward internal access to the utility room - Spacious lounge area - Dual aspect, with a double-glazed uPVC window to the Southern aspect, looking over the front of the property, and a further double-glazed uPVC window with deep wooden sill to the Northern aspect, looking over the rear yard - Wooden flooring - Neutrally decorated - Exposed wooden ceiling beams - Multi-fuel burner set within a character cast iron Victorian range with an exposed stone surround - Under stairs storage cupboard - Ceiling light fitting and two wall mounted light fittings - Radiator - Ample space for lounge furniture - The property’s electrical consumer unit is located in a high-level cupboard in this room

View Living Room 2 Photos

Utility Room

1.61m x 1.78m

- Positioned to the rear of the property, accessed from living room 2, and providing internal access to the bathroom, and external access to the rear yard - Tiled flooring - Neutrally decorated - Over/under counter storage units - Laminate worksurface - Stainless steel sink and drainer with tiled splashback - Plumbing for washing machine - Ceiling light fitting - Radiator

View Utility Room Photos

Bathroom

1.71m x 1.81m

- Positioned to the rear of the property and accessed from the utility room - Double-glazed uPVC window with frosted pane and deep tiled sill to the Eastern aspect - Tiled flooring - Neutrally decorated - Walk-in shower cubicle with fully tiled walls, glass screen, and overhead electric shower - WC - Hand-wash basin with tiled splashback - Ceiling light fitting - Radiator - Wall mounted heater

View Bathroom Photos

Outside Spaces

Yard

- Enclosed yard, accessed internally from the utility room via a double-glazed uPVC door with frosted pane, and externally via four steps down from the access road that runs along the rear of the property - Private outdoor area with space for outdoor furniture, in which to relax and enjoy the beautiful views of the hillsides to the North, and the sounds of the passing river Wear

View Photos

Location

St Johns Chapel is a village in Weardale, County Durham, and is located in the North Pennines National Landscape. The village benefits from a small supermarket, cafe, pubs, a village hall and primary school. The area is hugely popular with walkers, cyclists and outdoor enthusiasts, as well as those just looking to get away from busy city life.

Properties you may like

By Weardale Property Agency

Disclaimer - Property ID 3d24b8de-6f03-4695-9660-1cf6b3ff1513. The information displayed about this property comprises a property advertisement. Street.co.uk and Weardale Property Agency makes no warranty as to the accuracy or completeness of the advertisement or any linked or associated information, and Street.co.uk has no control over the content. This property advertisement does not constitute property particulars. The information is provided and maintained by the advertising agent. Please contact the agent or developer directly with any questions about this listing.