Book a Viewing

To book a viewing for this property, please call Carters Estate Agents, on 02476 388 863.

To book a viewing for this property, please call Carters Estate Agents, on 02476 388 863.

For Sale
£170,000

2 Bedroom Mid-Terraced House, Bulkington Road, Bedworth, CV12

Bulkington Road, Bedworth, CV12


Carters Branding - Burgundy & Gold brand logo

Carters Estate Agents

66 St. Nicolas Park Drive, Nuneaton

Description

**CLOSE TO TOWN CENTRE**IDEAL STARTER HOME**

Carters are delighted to offer this well presented two bedroom middle terrace home, perfectly positioned within walking distance of Bedworth’s vibrant town centre. The property benefits from excellent transport links to Nuneaton, Coventry and the M6, providing convenient access to the wider Midlands—ideal for commuters and those seeking a centrally located home.

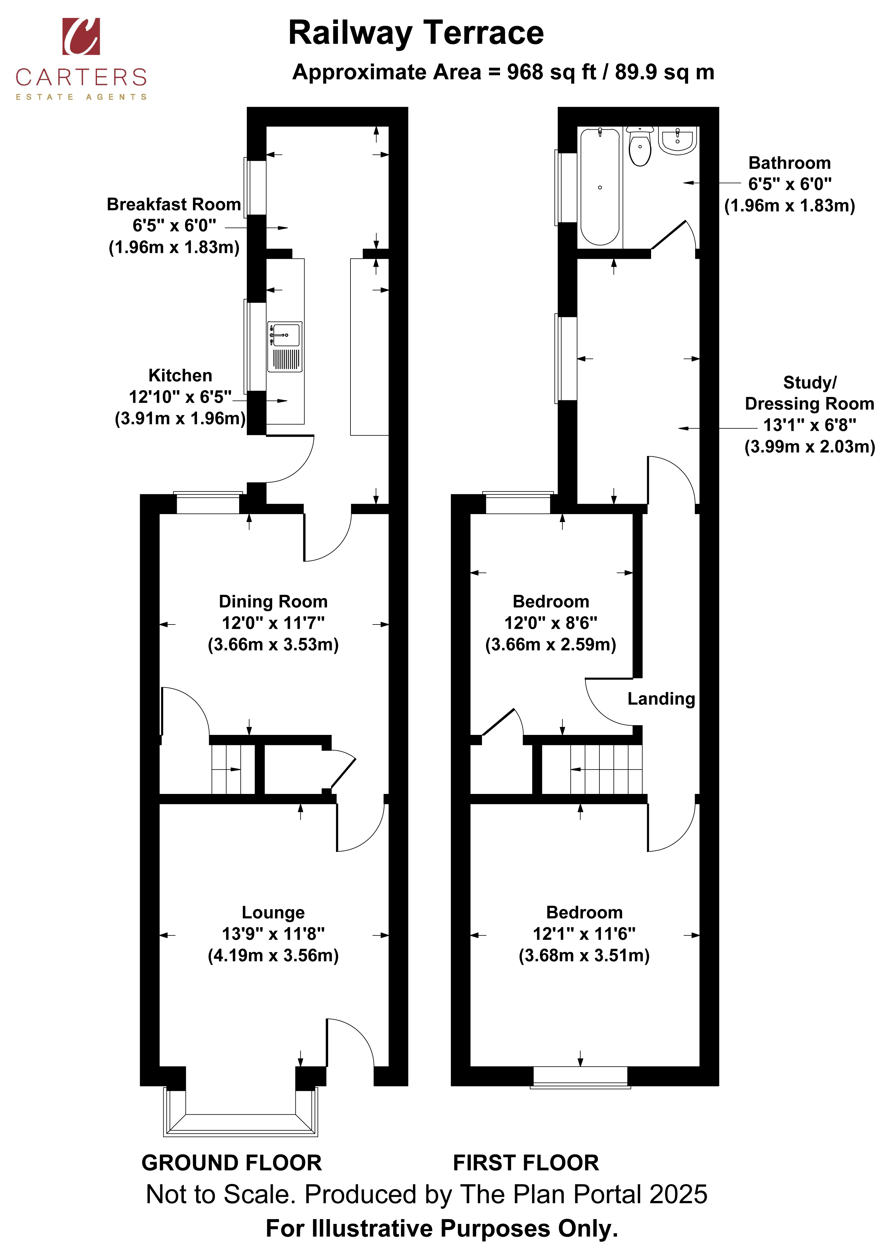
The accommodation is neatly arranged and well maintained throughout. To the front of the property is the cosy lounge, an inviting space ideal for relaxing after a long day. Beyond this lies the separate dining room, offering a generous and flexible area suitable for both formal dining and everyday family meals. The fitted kitchen provides an array of built-in cupboards and contrasting work surfaces, with an opening into a useful breakfast area/bar, enhancing the space for modern living.

To the first floor are two well proportioned double bedrooms, offering comfortable sleeping accommodation. A versatile dressing area or potential study space leads through to the bathroom, creating a convenient layout that adds to the home’s practicality.

To the rear of the property is a private yard, offering a low-maintenance outdoor area.

Well suited to first-time buyers, downsizers or investors, this home offers a great opportunity in a highly convenient location. A viewing is recommended to fully appreciate the space and value on offer.


EPC Rating: C

Key Features

  • MIDDLE TERRACE HOME
  • TWO BEDROOMS
  • WELL PRESENTED
  • CLOSE TO TOWN CENTRE
  • TWO RECEPTION ROOMS
  • FIRST FLOOR BATHROOM
  • OFF ROAD PARKING
  • VIEWINGS ARE ADVISED

Property Details

  • Property type: House
  • Property style: Mid-Terraced
  • Price Per Sq Foot: £184
  • Approx Sq Feet: 926 sqft
  • Plot Sq Feet: 1,399 sqft
  • Council Tax Band: A
  • Property Ipack: MATERIAL INFORMATION
Please note, property and plot sizes displayed are for guidance purposes only and may have been derived from publicly available information over which neither the agent nor Street.co.uk have control.

Floorplans

Location

Properties you may like

By Carters Estate Agents

Disclaimer - Property ID 415a1af1-f700-4bbb-99ad-4497360b0195. The information displayed about this property comprises a property advertisement. Street.co.uk and Carters Estate Agents makes no warranty as to the accuracy or completeness of the advertisement or any linked or associated information, and Street.co.uk has no control over the content. This property advertisement does not constitute property particulars. The information is provided and maintained by the advertising agent. Please contact the agent or developer directly with any questions about this listing.