Book a Viewing

To book a viewing for this property, please call Jessica Hayward Estate Agency, on 07711127032.

To book a viewing for this property, please call Jessica Hayward Estate Agency, on 07711127032.

For Sale
£975,000 Guide Price

5 Bedroom Detached Barn Conversion, Main Street, Church Stowe, NN7

Main Street, Church Stowe, NN7


Jessica Hayward Primary Brand brand logo

Jessica Hayward Estate Agency

44 Market Place, Brackley

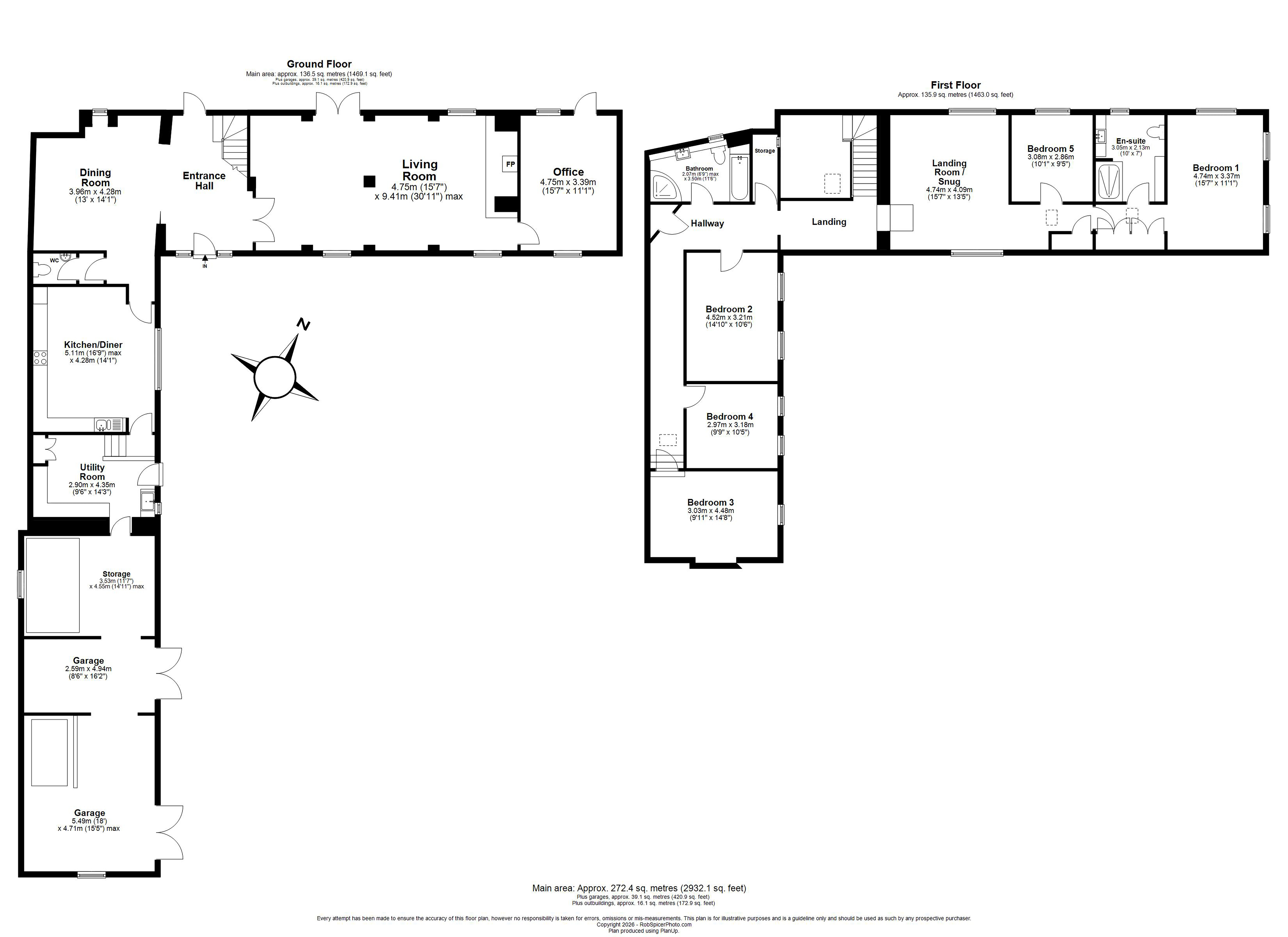
Description

The Maltings, Church Stowe

A beautifully reimagined historic barn offering space, soul and spectacular countryside views.

The Home

Approached via double gates and a sweeping gravel driveway, The Maltings immediately impresses with its handsome part-stone, part-brick façade and unmistakable sense of presence. Originally a 19th century Maltings barn and thoughtfully converted in the early 1990s, the property has since been carefully enhanced by the current owners to create a home that feels both substantial and welcoming, rich in character yet highly practical for modern family life.

Stepping inside, the reception hall sets the tone with exposed stonework, beams and warm oak flooring that flows through much of the ground floor. From here, the house unfolds into a series of beautifully proportioned living spaces, each with its own distinct atmosphere.

The sitting room is a wonderfully inviting space, centred around an inglenook-style fireplace with wood-burning stove, ideal for cosy evenings. French doors open directly onto the garden, allowing natural light to flood in and offering seamless indoor-outdoor living. Double doors lead through to a dedicated study, perfect for home working or quiet retreat, which also enjoys direct access to the garden.

The dining room sits open to the hallway and provides an excellent setting for entertaining, with ample space for a large table and gatherings with family and friends.

At the heart of the home lies the kitchen and breakfast room, fitted with an extensive range of base and wall units topped with granite work surfaces. Integrated appliances include an induction hob with extractor, double electric oven and dishwasher, while there is also space for a six-seater breakfast table. This is a sociable, practical space that works beautifully for everyday life. A separate utility room offers additional storage, plumbing for laundry appliances and a side door to the exterior, as well as internal access through to the store and garaging.

Upstairs, the sense of space continues with a generous open landing area that lends itself perfectly as a reading nook, informal sitting space or study zone.

The principal bedroom occupies a prime position, enjoying a dual aspect with far-reaching countryside views and built-in wardrobes. A contemporary en suite shower room completes this impressive suite. Four further double bedrooms provide excellent accommodation for family and guests, all well-proportioned and filled with natural light. The family bathroom features a four-piece suite with both bath and separate shower.

Throughout the home, original Maltings barn features, generous ceiling heights and exposed structural elements combine with modern updates to create a warm, characterful and highly liveable interior.

The Garden

The landscaped gardens are a true highlight of The Maltings. Areas of lawn are interspersed with established borders, creating a colourful yet manageable outdoor space. A paved seating terrace provides a lovely spot for al fresco dining or simply soaking in the peaceful surroundings, gently screened from the driveway by a brick retaining wall.

To one corner, there is a garden shed and additional storage area, while the outbuildings and garaging offer superb flexibility for storage, hobbies or future potential.

Parking is exceptional, with space for up to ten vehicles across the gated driveway and raised gravelled parking area, complemented by garage facilities and a 22kW fast electric vehicle charger. From both the house and garden, there are wonderful open views across surrounding countryside and towards the village’s Grade I listed church with its striking Saxon bell tower.

The Location

Church Stowe is a picturesque and sought-after Northamptonshire village, surrounded by open countryside yet superbly placed for access to nearby towns and transport links. Everyday amenities can be found in neighbouring Weedon and Nether Heyford, while further shopping, leisure and schooling options are available in Towcester, Daventry, Northampton, Brackley and Milton Keynes.

The area is well regarded for schooling, including Weedon Bec Primary School, The Bliss Charity School, Campion School in Bugbrooke, Quinton House School, Akeley Wood School, Buckingham and Winchester House School. Excellent road connections place the M1 (Junction 16), A5 and key commuter routes within easy reach, and Silverstone Race Circuit is also close by.

A note from the vendor;

“We fell in love with The Maltings because of its beautiful setting, the views across the countryside and the sheer sense of space both inside and out. The original barn features and generous proportions give the house so much character, while still offering huge flexibility for modern family living. It has been a wonderful home for us, and we have especially enjoyed the peace, privacy and the feeling of being connected to the village and its historic church.”


EPC Rating: D

Virtual Tour


Key Features

  • Detached 19th century Maltings barn conversion
  • Over 3,100 sq ft of versatile accommodation
  • Five double bedrooms including principal suite with en-suite
  • Three reception rooms plus open landing study area
  • Kitchen/breakfast room and separate utility
  • Outbuildings, garaging and extensive storage
  • Gated driveway with parking for up to ten vehicles
  • 22kW fast electric vehicle charger and three-phase electricity supply
  • Landscaped gardens with countryside and church views
  • Council Tax Band: G | EPC Rating: D

Property Details

  • Property type: Barn Conversion
  • Property style: Detached
  • Plot Sq Feet: 11,485 sqft
  • Council Tax Band: G
Please note, property and plot sizes displayed are for guidance purposes only and may have been derived from publicly available information over which neither the agent nor Street.co.uk have control.

Outside Spaces

Parking Spaces

Double garage

Capacity: 2

View Photos

Secure gated

Capacity: 4

View Photos

Location

Church Stowe is a picturesque and sought-after Northamptonshire village, surrounded by open countryside yet superbly placed for access to nearby towns and transport links. Everyday amenities can be found in neighbouring Weedon and Nether Heyford, while further shopping, leisure and schooling options are available in Towcester, Daventry, Northampton, Brackley and Milton Keynes. The area is well regarded for schooling, including Weedon Bec Primary School, The Bliss Charity School, Campion School in Bugbrooke, Quinton House School, Akeley Wood School, Buckingham and Winchester House School. Excellent road connections place the M1 (Junction 16), A5 and key commuter routes within easy reach, and Silverstone Race Circuit is also close by.

Properties you may like

By Jessica Hayward Estate Agency

Disclaimer - Property ID 460ed829-e10a-4316-871d-838222f66590. The information displayed about this property comprises a property advertisement. Street.co.uk and Jessica Hayward Estate Agency makes no warranty as to the accuracy or completeness of the advertisement or any linked or associated information, and Street.co.uk has no control over the content. This property advertisement does not constitute property particulars. The information is provided and maintained by the advertising agent. Please contact the agent or developer directly with any questions about this listing.