Book a Viewing

Click here to pick an available date and time to view this property

Book a Viewing
For Sale
£400,000 Offers in Region of

4 Bedroom Detached House, Askwith Road, Hindley, WN2

Askwith Road, Hindley, WN2


Breakey & Co Estate Agents Primary Brand brand logo

Breakey & Co Estate Agents

Breakey & Co, 57-59 Ormskirk Road

Description

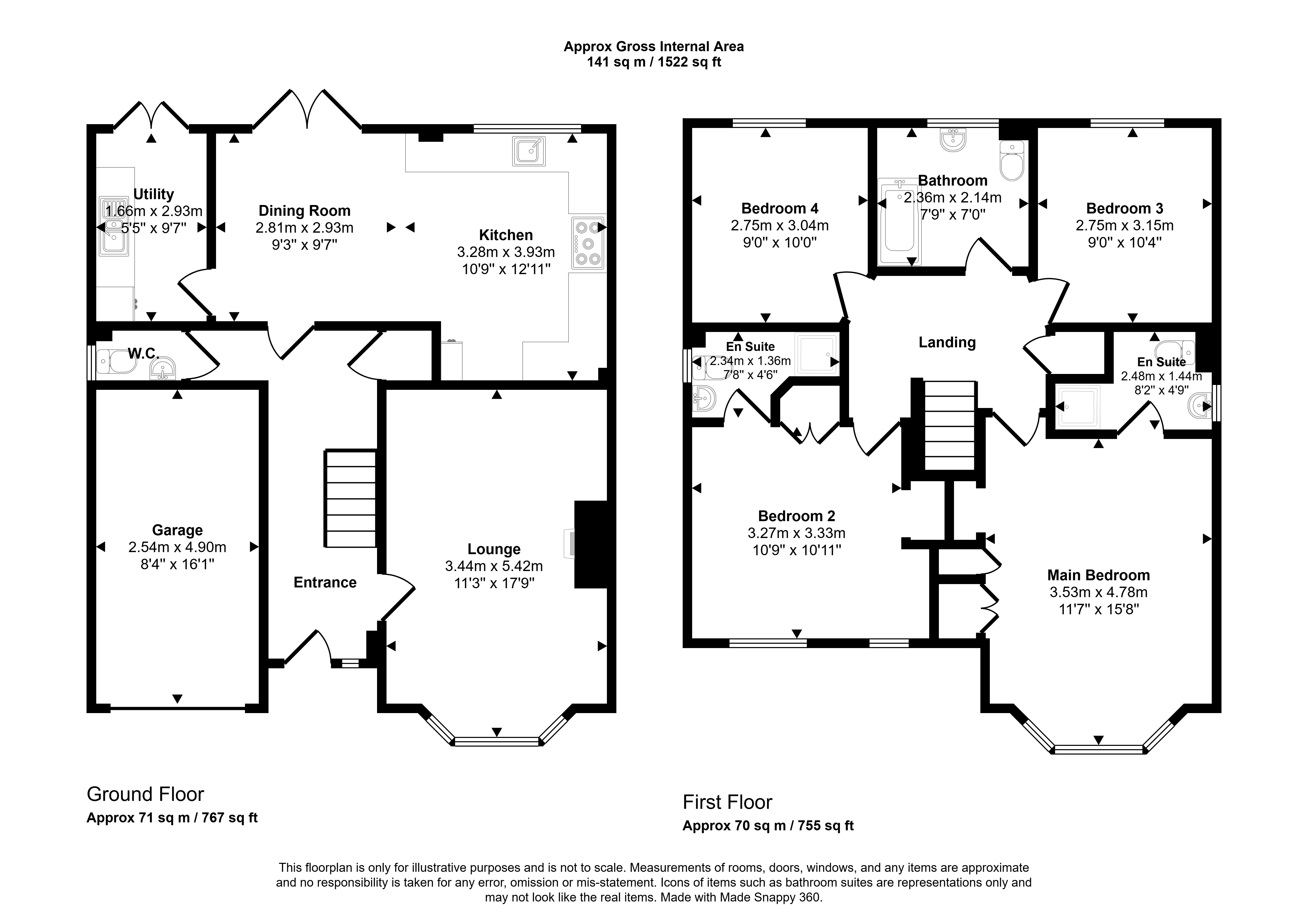
This beautifully presented four bedroom detached home offers exceptional space, modern finishes and a warm, welcoming feel, making it perfect for family living. Set in a desirable location close to local amenities, parks, schools and transport links, the property is ready to move straight into.

The home features a generous driveway with parking for three cars along with an integral garage. Inside, you are greeted by a large, bright lounge with a bay window and a gas fireplace designed with a realistic log burner effect, creating a cosy atmosphere. There is a downstairs WC and useful storage with integrated lighting.

The heart of the home is the impressive new kitchen and dining area, a fantastic open and spacious setting for everyday living and entertaining. French doors open directly out to the garden, allowing plenty of natural light to flow in. A separate utility room also includes French doors leading to the garden for added convenience. The rear garden is private and a very good size, ideal for children, pets or outdoor relaxation.

Upstairs, the master and second bedroom benefits from their own en suite and a built in wardrobe. There are two further double bedrooms along with a modern family bathroom. The property also features lovely flooring throughout the downstairs area and a striking glass staircase that adds a contemporary feel.

The location is excellent with Leyland Park close by, along with shops on Atherton Road, Hindley Train Station and a choice of primary schools all within easy reach. This is a very spacious and beautifully maintained family home offering comfort, style and a wonderful layout throughout.


Key Features

  • Four bedroom detached family home
  • Driveway parking for three cars plus integral garage
  • Large bright lounge with bay window and gas fire with log burner effect
  • Newly fitted spacious kitchen and dining area with French doors to the garden
  • Close to Leyland Park, shops on Atherton Road, Hindley Train Station and a range of Primary Schools
  • Beautifully maintained, bright and very spacious home perfect for families
  • Council Tax Band E
  • Freehold

Property Details

  • Property type: House
  • Property style: Detached
  • Price Per Sq Foot: £263
  • Approx Sq Feet: 1,522 sqft
  • Property Age Bracket: 1990s
  • Council Tax Band: E
Please note, property and plot sizes displayed are for guidance purposes only and may have been derived from publicly available information over which neither the agent nor Street.co.uk have control.

Floorplans

Parking Spaces

Garage

Capacity: N/A

Location

Hindley, Wigan

Properties you may like

By Breakey & Co Estate Agents

Disclaimer - Property ID 4af662ee-9c6a-41c4-8ac3-be6532b7593a. The information displayed about this property comprises a property advertisement. Street.co.uk and Breakey & Co Estate Agents makes no warranty as to the accuracy or completeness of the advertisement or any linked or associated information, and Street.co.uk has no control over the content. This property advertisement does not constitute property particulars. The information is provided and maintained by the advertising agent. Please contact the agent or developer directly with any questions about this listing.