Book a Viewing
To book a viewing for this property, please call Bayzos Estate Agents, on 0330 124 6533.
To book a viewing for this property, please call Bayzos Estate Agents, on 0330 124 6533.
4 Bedroom Semi Detached House, Coventry Road, Kenilworth, CV8
Coventry Road, Kenilworth, CV8

Bayzos Estate Agents
9 The Square, Kenilworth
Description
Property location
Kenilworth
See the brochure section below for comprehensive overview of the property and location.
We have built the Key Facts for Buyers Guide to give you information on local schools with their ratings, satellite view so that you can see the surrounding areas, as well as local and major transport connections, and much more.
On the viewing we will provide additional information on the property and the area so that you can make an informed decision.
Refurbishments and Features
Three Storey House | Driveway & Garage | Master Bedroom With En-Suite | Downstairs W/C | Property Boasts Lots of Original Features Including Hallway Floor & Stain Glass Window On Stairs | Within Walking Distance to Parliament Fields
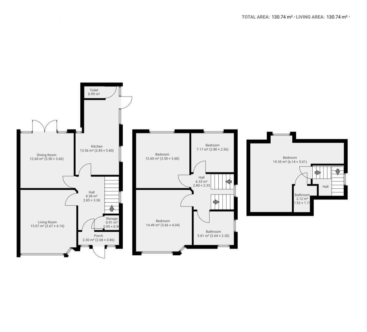
Room Measurements
Room dimensions and total floor area are included within our floor plan.
Tenure
Freehold
Outside Space
Front: Lawn | Patio Area | Driveway | Shrubs | Gated
Rear: Lawn | Patio Area | Shed | Pond | Shrubs | Mature Garden | Large Garden | Outbuildings
Additional Information
Selling Position: No Upward Chain
Age of the Property: 1910 - 1940
Last Sold: 1998
Council Tax Band: D
Energy Performance Certificate Rating: D
Approx. Total Floor Area: 130 Sq. M.
Approx. Total Plot Size: 0.09 Acre
Heating System: Central Heating (Gas)
Boiler Age: 3 Years
Boiler Last serviced: 01/07/2025
Loft: Boarded | Insulated | Converted
Type of Windows: UPVC
Age of Windows: All windows renovated with new double glazing and new patio doors 2024
Fuse Box Location: Hallway
Garden Orientation: Southeast (SE)
Material Information Parts B & C
History of Subsidence: No
Unsafe Cladding: No
Asbestos: No
Any Rights of Way: No
Please view the property brochure section for further Material Information Parts B and C
EPC Rating: D
Key Features
- Sought After Location Of Kenilworth Within Walking Distance of Woods & Parliament Fields.
- No Upward Chain
- Driveway & Garage Offering Ample Parking
- Three Storey Semi-Detached House
- Master Bedroom With En-Suite
- Large Mature Garden With Outbuildings & Pond
- Downstairs W/C & Family Bathroom with Separate Shower Cubicle, Bath & Toilet
- New Windows, Patio Doors & Front Door Fitted 2025
- EPC Current: D Potential: C
- Approx Floor Area: 130.74 SQM
Property Details
- Property type: House
- Price Per Sq Foot: £354
- Approx Sq Feet: 1,399 sqft
- Plot Sq Feet: 4,036 sqft
- Property Age Bracket: 1910 - 1940
- Council Tax Band: D
Floorplans
Outside Spaces
Parking Spaces
Garage
Capacity: 1
Detached Garage and Shed
Location
Properties you may like
By Bayzos Estate Agents