4 Bedroom Detached House, Johnny Barn Close, Rossendale, BB4

Johnny Barn Close, Rossendale, BB4

Description

SEE THE VIDEO TOUR FOR THIS HOME

Location Meets Style

Stationed in the stunning Rossendale Valley and surrounded by uplifting hill views and open skies, this extensively upgraded prior show home is nestled on the cusp of a friendly luxury development and is just a 20-minute walk from the market town of Rawtenstall. 

Beautifully cared for by the current owners, the house and garden have been thoughtfully designed and kitted out to be easy to maintain. While the sunny garden wraps around three sides of the property, the internal layout includes a large and light dining kitchen, a separate living room with a cosy log burner, versatile double bedrooms (two en-suite), and a high-end family bathroom and WC with premium fittings. 

To suit a comfortable modern lifestyle, the ground floor has efficient underfloor heating with Heatmiser thermostatic programmable controls, and there are TV points in most rooms (with digital Freeview and integrated satellite). 

Safety features include a PULSE security house alarm, integrated smoke alarms with battery backup, and outdoor sensor lights – and with eight years left on the NHBC warranty, the property comes with peace of mind built in. 

Contemporary Character

Backdropped by the local church and rolling hills, Number 17 sits on a generous corner plot at the entrance of Newchurch Meadows. You’ll immediately notice its handsome exterior, crafted from quarried Lancashire stone topped with a natural slate roof and punctuated with large, double-glazed uPVC windows with Painswick Grey frames. Inside, the windows feature Voile Roman blinds for greater privacy and light control.

A matching stone wall and wrought-iron railings frame a pretty front garden and block-paved driveway, widened with a flagged path to the front door. The integral garage offers more parking and comes with extra racking and shelving and an electric car charging point outside.

To the front, a stylish angled canopy featuring traditional oak beams shades a contemporary door fitted with a subscription-free Eufy Video doorbell. Inside a decorative industrial scaffolding pole is a feature in the hall and can hold a heavy curtain adding aesthetic appeal. Painted in soft whites, the spot-lit hallway features a gorgeous oak bannister to the carpeted staircase, which complements the wood-effect LVT herringbone flooring flowing into the kitchen. 

Relax & Entertain

Head through the glazed hall door ­– fitted to create a more intimate entrance area and also enable access to the upper floor without disturbing anyone downstairs – to find a two-piece WC with a grey metro-tiled splashback. 

Meanwhile, a solid oak door (found throughout) reveals the living room on your left. Brightened by ceiling spots and a broad front window, it also feels delightfully warm and welcoming thanks to the plush grey carpet underfoot and a central log burner with a slate hearth and decorative oak mantle.

Continue now to the back of the house, where a massive roof lantern, triple-aspect windows and glazed French doors framing the serene rural views flood a SieMatic-fitted kitchen and living/dining area with natural light. Perfect Fit thermal blinds here and in the utility allow you to adjust the ambience, with rise-and-fall blinds to the French doors and windows added for more light, mood and shade control.

The practical layout was tailored for keen cooks, from the generous island unit with an induction hob and breakfast bar to the stylish ceiling extractor and a walk-in pantry providing extra storage for kitchen items and equipment. At the same time, sleek handle-less cabinetry contrasts with the white quartz worktops and upstands and incorporates a full range of integrated NEFF appliances.

In the adjoining utility, matching cabinetry and quartz tops offer more storage and room for a freestanding NEFF washing machine and dryer. The current owners have installed shelving here to create a drinks-making station designed to improve circulation space and keep worksurfaces uncluttered. A Bibo chilled and hot filtered water machine plumbed into the sink below the window completes this facility. You’ll also find direct access to the garden and integral garage – useful when returning home from a muddy walk or with shopping bags.

Versatile Living

Upstairs, a soft grey carpet runs from a spacious spot-lit landing with a cupboard housing the hot water cylinder and in-built bookshelves into four large, neutrally decorated doubles. Three benefit from full-height wardrobes with sliding mirror doors, while two are fitted with bookshelves.

At the front of the house, bedrooms one and two feature en-suites, where grey stone-effect tiles with chrome trim offset modern high-spec sanitaryware, including rainfall shower enclosures, chrome heated towel rails, wall-mounted vanity basins with backlit mirrors equipped with Bluetooth speakers above, and back-to-wall toilets with chrome flush plates. 

With views over the private rear garden, the remaining two bedrooms are currently set up as an additional snug and home office, as pictured. However, both are well-sized bedrooms and share a spot-lit family bathroom, with tiling and sanitaryware to match the en-suites and a deep bath with a glass screen and overhead rainfall shower. You’ll also find access to a part-boarded storage loft from bedroom three. 

Al Fresco 

Due to its corner plot position, the house enjoys gardens to the front, side, and rear, maximising the lovely view across the local countryside. Beginning at the front, you’ll discover a lawn area fringed with shrubs and a natural buff stone flagstone patio. 

Head through the gate to enter a fenced-off kitchen garden with sunken borders for pots, raised planters on the gravelled area, and an outdoor tap. Continue along the flagstone path and past the trellising and wooden gates into the rear garden, where recently planted trees create a buffer at the back. 

The main garden is landscaped and laid mainly with stone flags and gravel, edged with reclaimed Lancashire cobbles with a lawn to one side and wood-chipped flower borders. It is very low maintenance yet designed to appeal. As you bask in the sun under those wide-open skies and drink in the hill views from the gazebo in the corner, it’s easy to imagine you’ve been transported to the Mediterranean. You’ll also find a mini fruit orchard, a useful shed, and even a “catio” – a secure outdoor cat/pet enclosure with further seating. 

There are outside electric points to the side and back.

On Your Doorstep

The Lancashire district of Rossendale is nestled in an area of geological and historical interest. Part of the Forest of Rossendale, which consists of the steep-sided valleys of the River Irwell and its tributaries, its largest centre is Rawtenstall – a buzzing market town with a heritage railway just a short walk away.

Here, independent shops and boutiques, delis, cafés, and restaurants line the cobbled main street, and there’s also a good range of major supermarkets/discount chains, and an M&S Food Hall at the nearby New Hall Hey Retail Park.

Furthermore, the semi-rural location lends itself to outdoor pursuits. Stepping straight out of the house, you’ll discover numerous local walks and green spaces, including Edge Lane and Marl Pitts behind the property, and moorland walks immediately above the development, accessed from stone steps at the head of the close. Keep your eyes peeled for the llama and sheep grazing in the field!

Of course, you can explore the wider area to find other peaceful retreats, such as Haslingden Grane, The Pennines, the Healey Dell Nature Reserve and Rooley Moor in Rochdale, the River Irwell and Peel Tower on Holcombe Moor. Many characterful towns (e.g. Bacup, Ramsbottom, Todmorden, Hebden Bridge, and Accrington) and the Ribble Valley/Forest of Bowland are just a short drive away.

To travel and commute around the wider region, hop onto the A56/A682 or the M66 for quick journeys to Manchester, Bury, Burnley, Accrington, Skipton, Preston, Leeds, and Bradford. National railway connections run from nearby Accrington station, but you’ll also find good bus routes at the bottom of the road. Meanwhile, Express buses, including the famous Witch Way, take you 20 miles to Manchester in less than an hour, making the city easily accessible.

Beyond this, you’ll have plenty to do and see in the wider area. Some local cultural highlights include The Whittaker Museum & Art Gallery in Whittaker Park (with café, events, workshops and films); The Helmshore Textile Museum; local brass bands; a Carnegie library, the Irwell Valley Sculpture Trail, and The Halo and Singing Ringing Tree Panopticons. 

Active families will also love being within striking distance of Ski Rossendale dry ski slope, Marl Pits Leisure Centre, Golf Kingdom and Marls Pits Garden Centre, and The Water Ski Academy at Cowm Reservoir. 

The well-rated Belmont Primary is seven minutes walk away. Still, you’ll also find plenty of alternatives nearby, including nurseries and high schools, Bacup and Rawtenstall Grammar School, the Ofsted ‘Outstanding’ Accrington and Rossendale College, and a specialist autism school. 

Disclaimer

All descriptions, images, videos, plans and other marketing materials are provided for general guidance only and are intended to highlight the lifestyle and features a property may offer. They do not form part of any contract or warranty. Any plans shown, including boundary outlines, are for illustrative purposes only and should not be relied upon as a statement of fact. The extent of the property and its boundaries will be confirmed by the title plan and the purchaser’s legal adviser. Whilst every effort is made to ensure accuracy, neither Burton James Estate Agents nor the seller accepts responsibility for any errors or omissions. Prospective purchasers should not rely on these details as statements of fact and are strongly advised to verify all information by inspection, searches and enquiries, and to seek confirmation from their conveyancer before proceeding with a purchase.


EPC Rating: B

Virtual Tour


Key Features

  • Former Show-Home: Four-bedroom detached house
  • Beautiful rural setting with views
  • Three bathrooms (two en-suite)
  • Downstairs WC & utility
  • Large SieMatic fitted kitchen
  • Living room with log burner
  • Ground-floor underfloor heating
  • Integral garage with EV charger
  • Big landscaped garden on three sides
  • 20-minute walk to Rawtenstall

Property Details

  • Property type: House
  • Property style: Detached
  • Approx Sq Feet: 1,444 sqft
  • Property Age Bracket: New Build
  • Council Tax Band: F
Please note, property and plot sizes displayed are for guidance purposes only and may have been derived from publicly available information over which neither the agent nor Street.co.uk have control.

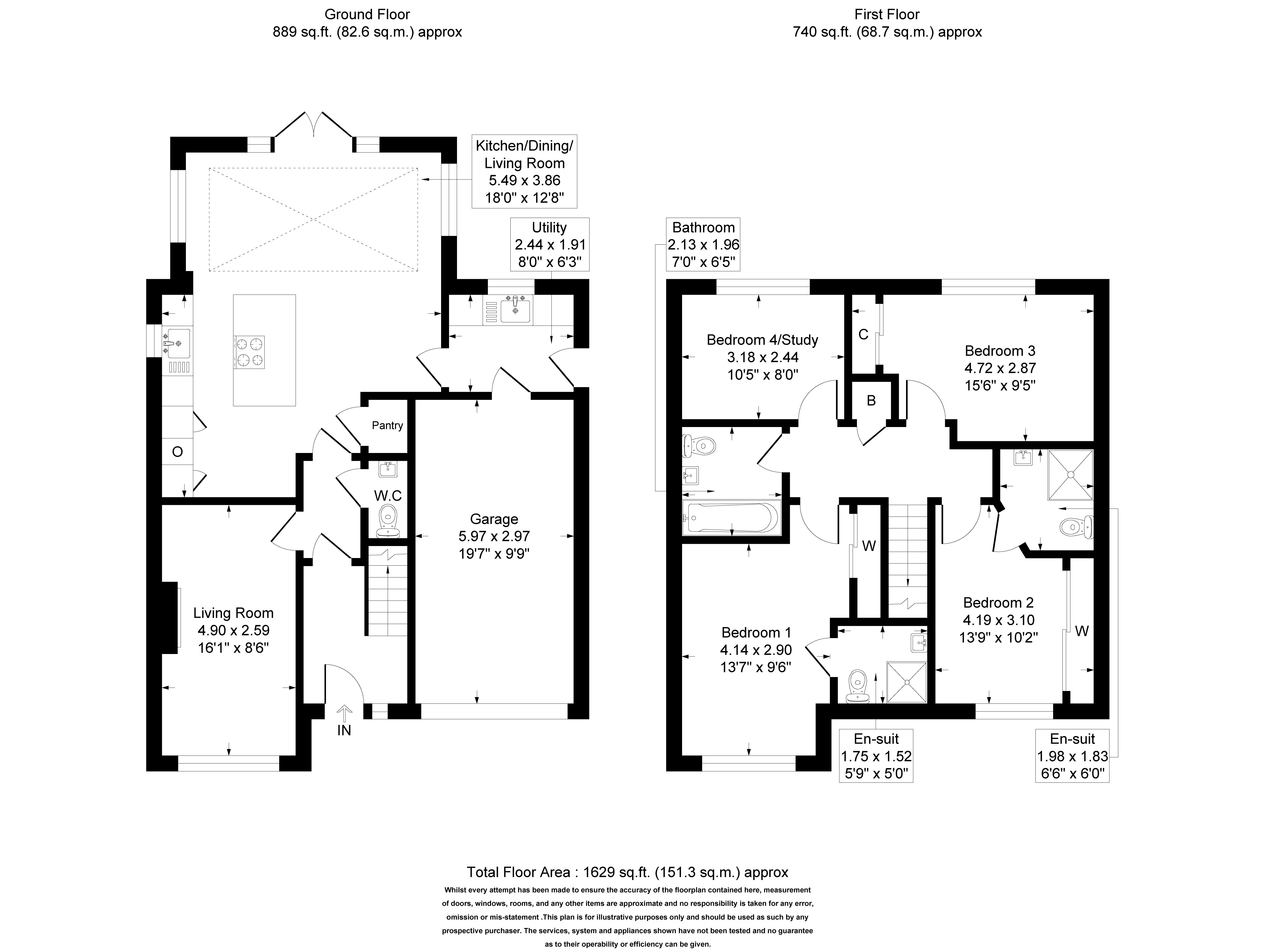
Floorplans

Outside Spaces

Parking Spaces

EV charging

Capacity: N/A

Driveway

Capacity: N/A

Garage

Capacity: N/A

Location

Properties you may like

By Burton James

  • Brandwood Court, Turton, BL7 | 5-Bed Detached Home with Stunning Countryside Views

    • 5 Beds
    • 2 Bath
    View Property
  • Albert Road, Bolton, BL1 | A Substantial 6-Bedroom Period Home Close to Bolton School

    • 6 Beds
    • 2 Bath
    View Property
  • Shrewsbury House, Lowther Road, Prestwich, M25 | 6-Bed, 4-Storey Home with Bar, Cinema & Secluded Gardens

    • 6 Beds
    • 6 Bath
    View Property
  • Booth Road, Stacksteads, OL13 | 4/5 Bed Converted Barn On Approx. An Acre With Breathtaking Views

    • 4 Beds
    • 4 Bath
    View Property
  • Woodhey Road, Ramsbottom, BL0 | Luxury 5-Bedroom Home on Sought-After Holcombe Brook Street

    • 5 Beds
    • 3 Bath
    View Property
  • Croft House, Princess Road, Lostock – 6-Bedroom Home with 1-Bedroom Self-Contained Annexe & Golf Course Views

    • 7 Beds
    • 4 Bath
    View Property
  • Windacre, Walmersley, Bury BL9 | Brand-New 6-Bed All En-Suite Home with Lakeside Balconies & Panoramic Views

    • 6 Beds
    • 6 Bath
    View Property
  • Ainscow House, Dunscar Fold, BL7 | Secluded Stone Barn Conversion with Beautiful Gardens

    • 3 Beds
    • 2 Bath
    View Property
  • Willowmere, Oakridge Park, Dobb Brow Road, Westhoughton, BL5 | Brand-New 4,323 sq. ft. Luxury 5-Bed Gated Home

    • 5 Beds
    • 5 Bath
    View Property
Disclaimer - Property ID 69616ff2-527f-420c-a4a8-aa244f1e66b5. The information displayed about this property comprises a property advertisement. Street.co.uk and Burton James makes no warranty as to the accuracy or completeness of the advertisement or any linked or associated information, and Street.co.uk has no control over the content. This property advertisement does not constitute property particulars. The information is provided and maintained by the advertising agent. Please contact the agent or developer directly with any questions about this listing.