Book a Viewing

To book a viewing for this property, please call Henry Adams - Midhurst, on 01730 817370.

To book a viewing for this property, please call Henry Adams - Midhurst, on 01730 817370.

For Sale
£720,000 Offers in Region of

2 Bedroom Chalet Bungalow, Mill Lane, Stedham, GU29

Mill Lane, Stedham, GU29


Henry Adams Brand LLP brand logo

Henry Adams - Midhurst

Henry Adams, Bepton Court, 2 West Street

Description

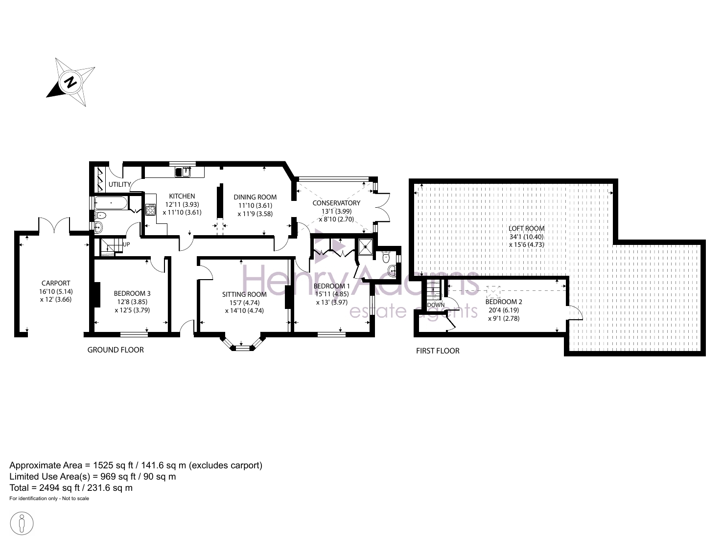
Nestled on the outskirts of the charming village of Steadham and within easy reach of the vibrant heart of Midhurst, this delightful home sits on a generous double-width plot in a tranquil rural setting. Brimming with character and charm, the property presents a rare opportunity to enjoy countryside living with the potential for further enhancement, subject to the necessary planning permissions.

Approached via two separate driveways, the home offers ample parking and a sense of privacy. The first driveway leads to the beautifully landscaped side gardens, while the second provides access to a carport and the front garden. Both outdoor spaces feature mature specimen trees, well-established borders, and a desirable south-west-facing aspect.

The accommodation is thoughtfully arranged to provide flexible, lateral living. The inviting living room boasts a feature fireplace and picturesque views over the front gardens, while the well-appointed country-style kitchen/breakfast room provides a warm and welcoming space for everyday dining. A separate dining room seamlessly connects to a modern stone-built conservatory, enhancing the home's natural light and garden views.

The principal bedroom benefits from an en-suite shower room, while a second double bedroom is served by the family bathroom. Additionally, a carpeted loft room on the first floor offers exciting potential for conversion into further living space or additional bedrooms, subject to relevant permissions.

This unique and characterful home is an excellent opportunity for those seeking a peaceful rural retreat with scope for future expansion.


EPC Rating: E

Key Features

  • Charming Location
  • Attached Bungalow with Private Grounds
  • Car Port and Private Driveway
  • Two Bedrooms / Two Bathrooms
  • Large Loft Space with Potential to Convert
  • Large Corner Plot
  • South West Facing Aspect

Property Details

  • Property type: Chalet Bungalow
  • Price Per Sq Foot: £472
  • Approx Sq Feet: 1,525 sqft
  • Plot Sq Feet: 11,334 sqft
  • Council Tax Band: E
Please note, property and plot sizes displayed are for guidance purposes only and may have been derived from publicly available information over which neither the agent nor Street.co.uk have control.

Rooms

Sitting Room

4.74m x 4.74m

View Sitting Room Photos

Kitchen

3.93m x 3.61m

View Kitchen Photos

Utility

Dining Room

3.61m x 3.58m

View Dining Room Photos

Conservatory

3.99m x 2.70m

View Conservatory Photos

Bedroom 1

4.85m x 3.97m

View Bedroom 1 Photos

Bedroom 2

3.85m x 3.79m

View Bedroom 2 Photos

Loft Room

6.19m x 2.78m

View Loft Room Photos

Floorplans

Outside Spaces

Parking Spaces

Car port

Capacity: 1

View Photos

Driveway

Capacity: 4

Location

Properties you may like

By Henry Adams - Midhurst

Disclaimer - Property ID 759dbfbe-515f-457d-98c9-97fc952b088e. The information displayed about this property comprises a property advertisement. Street.co.uk and Henry Adams - Midhurst makes no warranty as to the accuracy or completeness of the advertisement or any linked or associated information, and Street.co.uk has no control over the content. This property advertisement does not constitute property particulars. The information is provided and maintained by the advertising agent. Please contact the agent or developer directly with any questions about this listing.