Book a Viewing

Click here to pick an available date and time to view this property

Book a Viewing
For Sale
£350,000 Offers Over

3 Bedroom End of Terrace House, Penny Lane, Oadby, Leicester

Penny Lane, Oadby, Leicester


Knightsbridge Estate Agents Primary Brand brand logo

Knightsbridge Estate Agents - Oadby

Knightsbridge Estate Agents, 49B The Parade, Oadby

Description

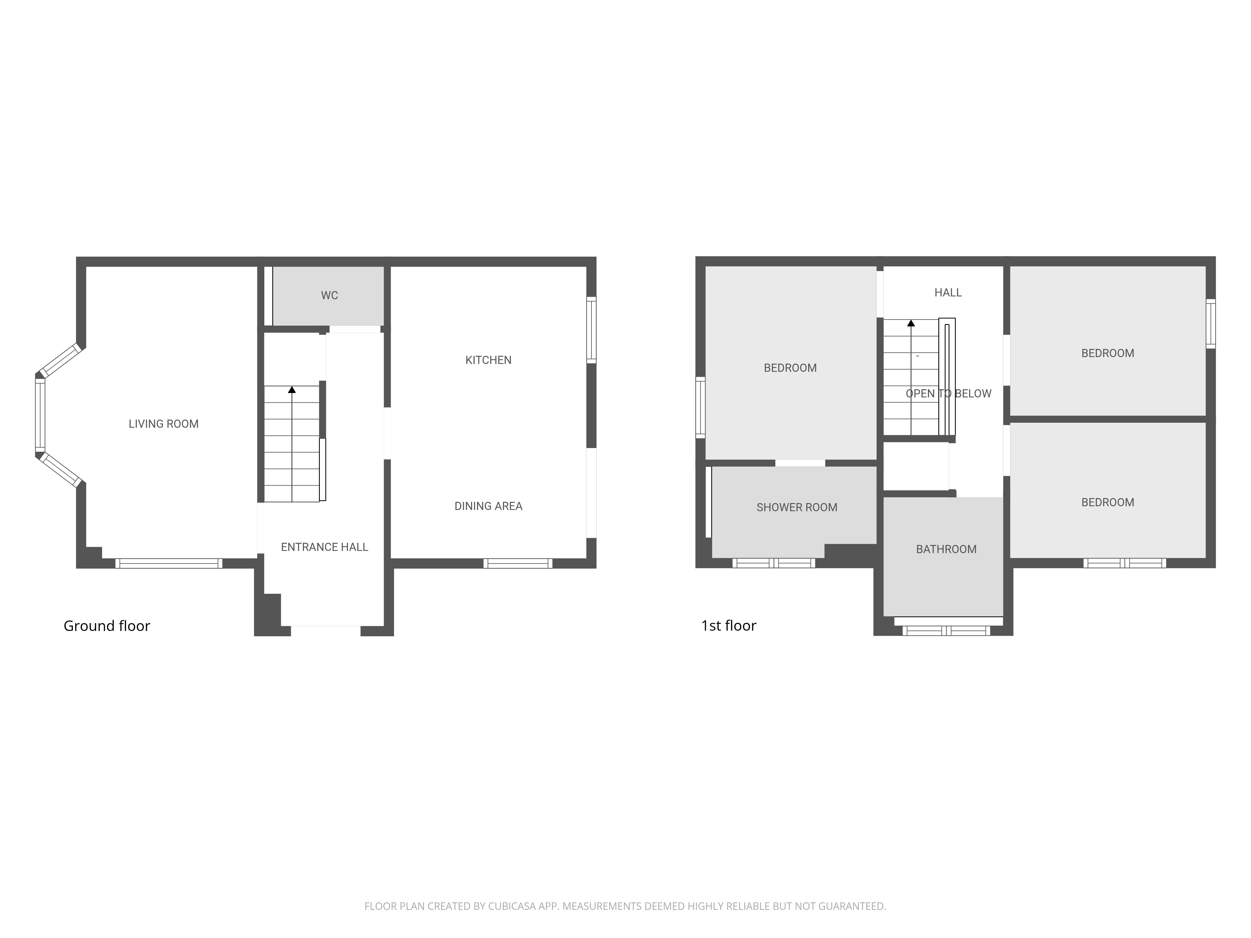
Located in Oadby, this freehold three-bedroom end-of-terrace home is offered to the market with no upward chain and occupies a corner plot position.

The accommodation begins with an entrance hall featuring laminate flooring, under-stairs storage and stairs rising to the first floor. The living room benefits from dual aspect windows, including a bay window to the side, allowing for plenty of natural light.

To the rear, the kitchen diner is fitted with a range of eye-level and base units with integrated appliances including an oven, hob, extractor fan, washer-dryer, dishwasher and fridge-freezer. There is a one-and-a-half bowl sink and drainer unit, laminate flooring and French doors providing access to the outside space. A downstairs WC completes the ground floor accommodation.

To the first floor, the landing provides loft access and a useful storage cupboard. The principal bedroom features a fitted en-suite shower room with walk-in shower, WC and wash hand basin. There are two further bedrooms and a family bathroom fitted with a bath, WC and wash hand basin.

Externally, the property sits on a corner plot with a lawned frontage wrapping around the house and a slabbed walkway leading to the front door. The rear garden is mainly laid to lawn with a patio walkway running alongside the property and access to the side gate and French doors.

A driveway provides off-road parking for two vehicles.

The property is situated within Oadby, well placed for local schooling, everyday amenities and transport links.


EPC Rating: B

Key Features

  • Offered With No Upward Chain
  • Three Bedroom End of Terrace Home
  • Corner Plot Position
  • Kitchen Diner With Integrated Appliances
  • Principal Bedroom With En-Suite
  • Downstairs WC
  • Driveway Providing Off-Road Parking
  • Situated In Oadby Close To Schooling And Amenities
  • EPC Rating B

Property Details

  • Property type: House
  • Property style: End of Terrace
  • Price Per Sq Foot: £392
  • Approx Sq Feet: 893 sqft
  • Plot Sq Feet: 2,992 sqft
  • Council Tax Band: C
  • Property Ipack: Key Facts for Buyers
Please note, property and plot sizes displayed are for guidance purposes only and may have been derived from publicly available information over which neither the agent nor Street.co.uk have control.

Rooms

Entrance Hall

Features a double-glazed window within the front door, laminate flooring, stairs to the first-floor landing, a gas radiator and under-stairs storage.

View Entrance Hall Photos

Living Room

4.82m x 2.91m

Features a double-glazed window to the front, a double-glazed bay window to the side, carpet flooring, and a radiator.

View Living Room Photos

Kitchen Diner

4.83m x 3.07m

Double-glazed windows to the front and side elevations, double-glazed French doors to the side, and laminate flooring, eye-level units with integrated washer-dryer, dishwasher, fridge-freezer, oven, hob, and extractor fan. Features a one-and-a-half-bowl hand-wash basin and drainer unit, and a radiator.

View Kitchen Diner Photos

Downstairs WC

1.91m x 0.96m

Laminate flooring, WC, hand-wash basin, and a radiator.

View Downstairs WC Photos

Landing

Carpet flooring, loft access, side storage cupboard, and a radiator.

Bedroom One

3.27m x 2.97m

Double-glazed window to the side, carpet flooring, and a radiator.

View Bedroom One Photos

En-Suite

2.95m x 1.46m

Double-glazed window to the front, tiled floor, part-tiled walls, hand-wash basin, WC, walk-in shower cubicle, and a radiator.

View En-Suite Photos

Bedroom Two

3.16m x 2.37m

Double-glazed window to the side, carpet flooring, and a radiator.

View Bedroom Two Photos

Bedroom Three

3.17m x 2.38m

Double-glazed window to the front, carpet floor, and a radiator.

View Bedroom Three Photos

Family Bathroom

1.95m x 1.90m

Double-glazed window to the front, tiled floor, part-tiled walls, bath, hand-wash basin, WC, and a radiator.

View Family Bathroom Photos

Outside Spaces

Front Garden

Corner plot featuring a grass lawn wrapping around the property. Includes a slab patio walkway to the front door.

View Photos

Garden

Features a patio walkway along the property to the side gate and French doors; the remainder is lawn.

View Photos

Parking Spaces

Driveway

Capacity: 2

With parking for 2 vehicles.

Location

The property is ideally situated for Oadby’s highly regarded schools and benefits from nearby bus links into Leicester City Centre, with its professional quarters and train station. A wide range of amenities are available along The Parade in Oadby Town Centre, including three mainstream supermarkets. Leisure and recreational facilities such as Leicester Racecourse, the University of Leicester Botanic Gardens, Parklands Leisure Centre, and Glen Gorse Golf Club are also close by.

Properties you may like

By Knightsbridge Estate Agents - Oadby

Disclaimer - Property ID 775fae03-7f20-4c98-9113-f42a53740b9e. The information displayed about this property comprises a property advertisement. Street.co.uk and Knightsbridge Estate Agents - Oadby makes no warranty as to the accuracy or completeness of the advertisement or any linked or associated information, and Street.co.uk has no control over the content. This property advertisement does not constitute property particulars. The information is provided and maintained by the advertising agent. Please contact the agent or developer directly with any questions about this listing.