Book a Viewing

To book a viewing for this property, please call Breakey & Co Estate Agents, on 01942 238200.

To book a viewing for this property, please call Breakey & Co Estate Agents, on 01942 238200.

For Sale
£475,000 In Excess of

4 Bedroom Detached House, Bannister Court, Shevington, WN6

Bannister Court, Shevington, WN6


Breakey & Co Estate Agents Primary Brand brand logo

Breakey & Co Estate Agents

Breakey & Co, 57-59 Ormskirk Road

Description

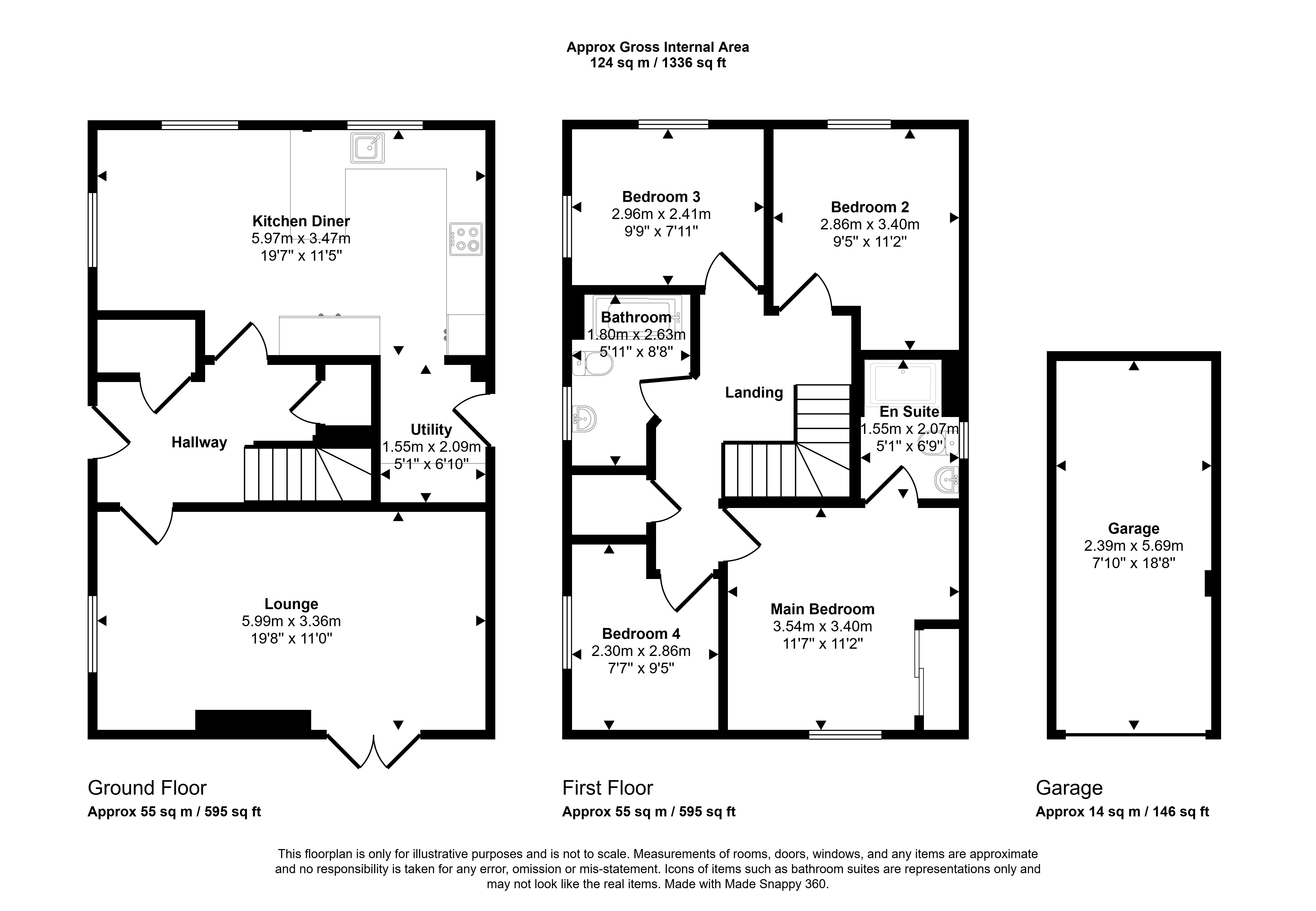
Nestled in the sought-after residential area of Shevington, this beautifully presented four-bedroom detached home on Bannister Court offers modern family living at its finest. Boasting open field views to the front, a detached garage, and a double driveway with an additional allocated parking space opposite, this home is as practical as it is stylish.

Step inside to a spacious and welcoming entrance hall, setting the tone for the quality throughout. A convenient downstairs W/C leads the way into the heart of the home – a stunning open-plan kitchen diner, complete with high-spec built-in appliances, a sleek island breakfast bar, and a modern finish. A separate utility room offers added practicality and keeps daily life running smoothly.

The generously sized lounge is the perfect place to relax, featuring a contemporary media wall and French doors that open out onto the private rear garden – ideal for both entertaining and unwinding.

Upstairs, the master bedroom is a true retreat with built-in wardrobes and a modern en suite. Two further double bedrooms provide plenty of space for family or guests, while the fourth bedroom serves well as a single room, nursery, or home office. A spacious family bathroom completes the first-floor accommodation with a fresh and stylish design.

This property benefits from a good size garden to the side which is currently undergoing renovation.

Located close to the highly regarded St Bernadette’s Primary School, Shevington High School, Shevington Park, and Gathurst Lane’s local shops, this property offers convenient access to amenities, schools, and transport links, all within a peaceful and friendly community.

Presented in beautiful, move-in ready condition, this home is ideal for families seeking space, style, and a modern lifestyle in a well-connected village location.


EPC Rating: C

Key Features

  • Detached Four-Bedroom Family Home
  • Stunning Kitchen Diner
  • Spacious Lounge with Media Wall
  • Generous Master Bedroom with built in wardrobes featuring an en suite
  • Detached Garage & Ample Parking
  • Field Views to the Front
  • Fantastic Location
  • Freehold
  • Council Tax Band: E

Property Details

  • Property type: House
  • Property style: Detached
  • Price Per Sq Foot: £399
  • Approx Sq Feet: 1,190 sqft
  • Plot Sq Feet: 5,048 sqft
  • Property Age Bracket: 2010s
  • Council Tax Band: E
Please note, property and plot sizes displayed are for guidance purposes only and may have been derived from publicly available information over which neither the agent nor Street.co.uk have control.

Floorplans

Outside Spaces

Rear Garden

Parking Spaces

Garage

Capacity: N/A

Driveway

Capacity: N/A

On street

Capacity: N/A

Location

Shevington - Wigan

Properties you may like

By Breakey & Co Estate Agents

Disclaimer - Property ID 8f033511-26f7-4c07-8bcf-d8bea7c98059. The information displayed about this property comprises a property advertisement. Street.co.uk and Breakey & Co Estate Agents makes no warranty as to the accuracy or completeness of the advertisement or any linked or associated information, and Street.co.uk has no control over the content. This property advertisement does not constitute property particulars. The information is provided and maintained by the advertising agent. Please contact the agent or developer directly with any questions about this listing.