Book a Viewing
To book a viewing for this property, please call Bayzos Estate Agents, on 0330 124 6533.
To book a viewing for this property, please call Bayzos Estate Agents, on 0330 124 6533.
2 Bedroom Flat, Main Road, Meriden, CV7
Main Road, Meriden, CV7

Bayzos Estate Agents
9 The Square, Kenilworth
Description
Property location
Meriden
See the brochure section below for comprehensive overview of the property and location.
We have built the Key Facts for Buyers Guide to give you information on local schools with their ratings, satellite view so that you can see the surrounding areas, as well as local and major transport connections, and much more.
On the viewing we will provide additional information on the property and the area so that you can make an informed decision.
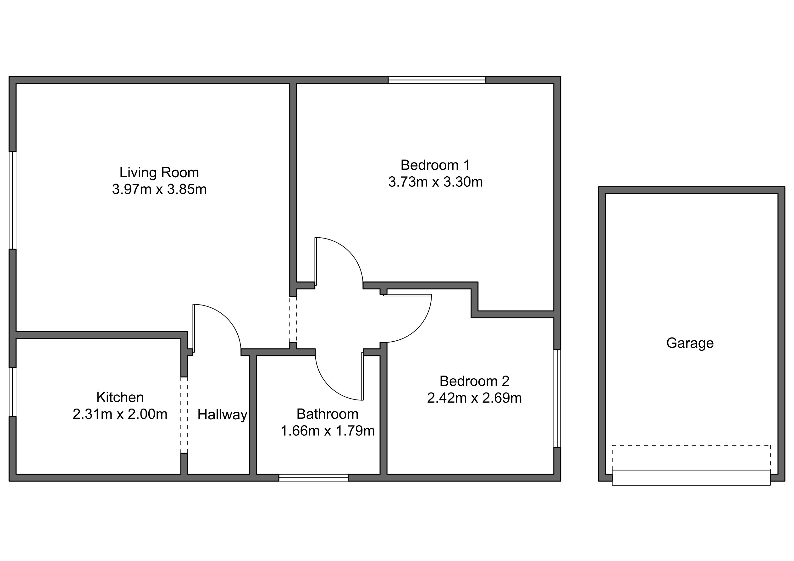
Room Measurements
Room dimensions and total floor area are included within our floor plan.
Tenure
Leasehold
Years Remaining: 108 Years
Ground Rent: £220 Annually
Maintenance Charge: £1002.54
Additional Information
Guide Price Range £130,000-£145,000
Selling Position: No Chain
Age of the Property: 1960 - 1970
Last Sold: 2014
Council Tax Band: B
Local Authority: Solihull
Energy Performance Certificate Rating: D
Approx. Total Floor Area: 53 Sq. M.
Heating System: Electric
Type of Windows: Double Glazing
Fuse Box Location: Kitchen
Garden Orientation: South
Material Information Parts B & C
History of Subsidence: No
Unsafe Cladding: No
Asbestos: No
Any Rights of Way: No
Please view the property brochure section for further Material Information Parts B and C
EPC Rating: D
Key Features
- No Upward Chain
- Village Shops and School within Walking Distance
- Well-presented Two Bedroom flat in a Sought After Location.
- Located within the village of Meriden with fabulous views of the duck pond and open countryside.
- Years Remaining on Lease: 108 Years
- Allocated Garage
- Well Maintained Communal Garden
- Public Transport Links to Coventry, Birmingham, Solihull and Close to the Airport
- Approx. Total Floor Area: 53 Sq. M.
Property Details
- Property type: Flat
- Price Per Sq Foot: £245
- Approx Sq Feet: 570 sqft
- Property Age Bracket: 1960 - 1970
- Council Tax Band: B
- Tenure: Leasehold
- Lease Expiry: 21/01/2133
- Ground Rent: £220.00 per year
- Service Charge: Not Specified
Floorplans
Outside Spaces
Parking Spaces
Garage
Capacity: N/A
On street
Capacity: N/A
--
Capacity: N/A
Location
Properties you may like
By Bayzos Estate Agents