Book a Viewing

To book a viewing for this property, please call Breakey & Co Estate Agents, on 01942 238200.

To book a viewing for this property, please call Breakey & Co Estate Agents, on 01942 238200.

For Sale
£315,000 In Excess of

4 Bedroom Detached House, Hallbridge Gardens, Upholland, WN8

Hallbridge Gardens, Upholland, WN8


Breakey & Co Estate Agents Primary Brand brand logo

Breakey & Co Estate Agents

Breakey & Co, 57-59 Ormskirk Road

Description

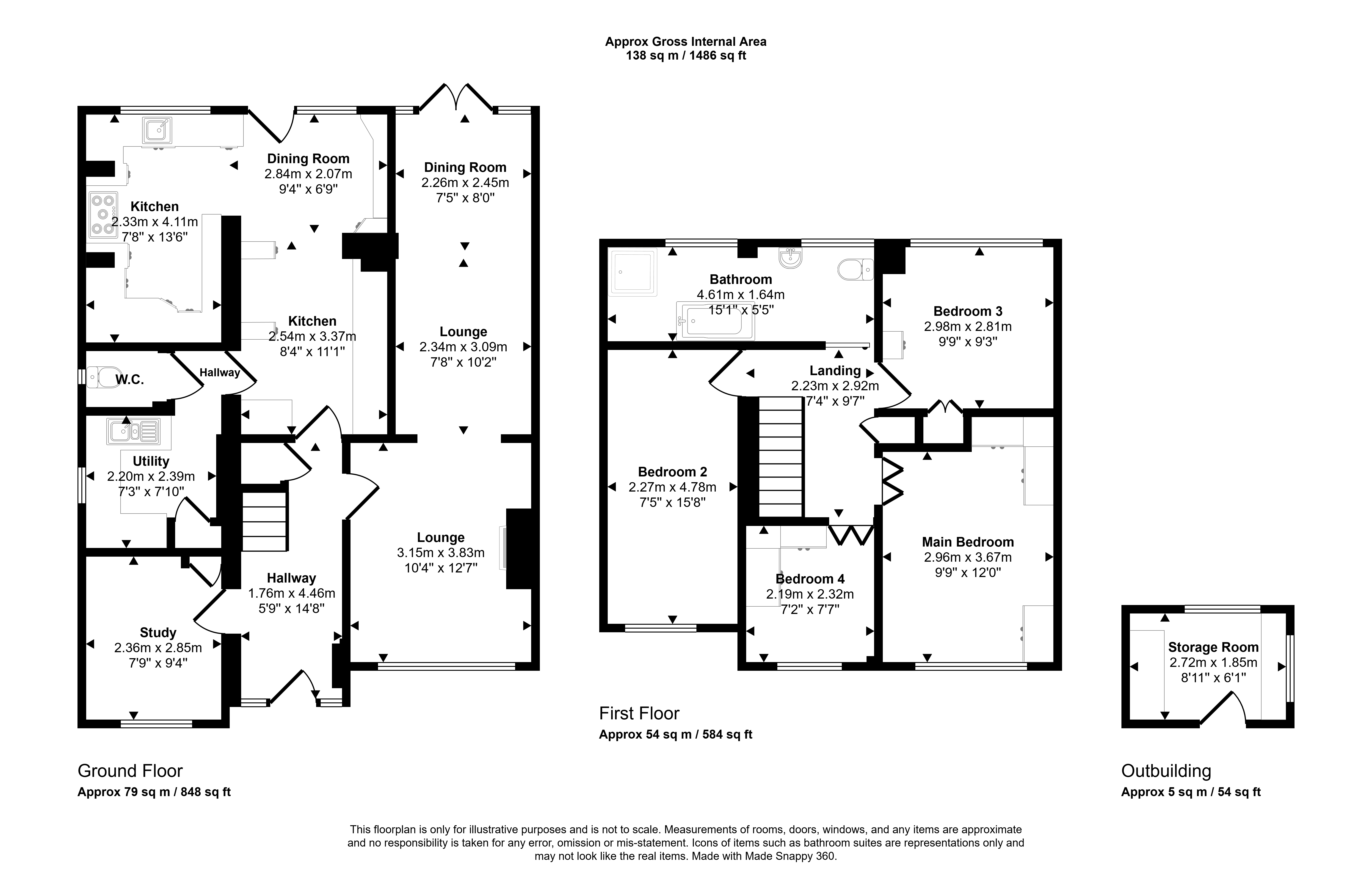
Situated in a peaceful cul-de-sac, this executive family home offers a fantastic opportunity for those seeking spacious and versatile living. Lovingly maintained by its current owners, the property is ideally located with easy access to local amenities, well-regarded schools, transport links, and the scenic Beacon Country Park.

Internally, the accommodation is spread across two floors, beginning with a welcoming entrance hallway. The ground floor features a dedicated study, a generous lounge that opens into a further reception area and a dining room enhanced by an electric log burner, perfect for family gatherings and flexible living. The large kitchen/diner offers ample space for cooking and entertaining and also provides access to a practical utility room and a downstairs WC.

Upstairs, the landing leads to three well-proportioned double bedrooms, the master and two other bedrooms benefit from fitted wardrobes. There’s a good-sized single bedroom and a spacious family bathroom featuring a modern four-piece suite.

Externally, the home boasts a beautifully established rear garden, providing an ideal outdoor space for a growing family. An additional outbuilding offers extra storage, while the front of the property is complemented by a driveway, offering convenient off-road parking.

Early viewings are highly recommended to fully appreciate the size, setting, and exceptional potential of this wonderful family home. Freehold. Council tax band D. EPC-C.


EPC Rating: C

Key Features

  • Four bedrooms
  • Executive detached property
  • Sought after location
  • Cul-de-sac setting
  • Perfect for a growing family
  • Freehold/ Council tax band D
  • Three reception rooms
  • Study and utility room
  • Outbuilding for storage

Property Details

  • Property type: House
  • Property style: Detached
  • Price Per Sq Foot: £212
  • Approx Sq Feet: 1,486 sqft
  • Property Age Bracket: 1970 - 1990
  • Council Tax Band: D
Please note, property and plot sizes displayed are for guidance purposes only and may have been derived from publicly available information over which neither the agent nor Street.co.uk have control.

Floorplans

Parking Spaces

Off street

Capacity: N/A

Location

Upholland, Wigan.

Properties you may like

By Breakey & Co Estate Agents

Disclaimer - Property ID 90ca903c-0d10-41d9-b096-2010bd0956fb. The information displayed about this property comprises a property advertisement. Street.co.uk and Breakey & Co Estate Agents makes no warranty as to the accuracy or completeness of the advertisement or any linked or associated information, and Street.co.uk has no control over the content. This property advertisement does not constitute property particulars. The information is provided and maintained by the advertising agent. Please contact the agent or developer directly with any questions about this listing.