4 Bedroom Detached House, Hailes Wood, Elsenham, CM22

Hailes Wood, Elsenham, CM22

Description

Nestled in a peaceful cul-de-sac, 9 Hailes Wood is a four-bedroom detached home that combines modern convenience with a tranquil village setting. Ideally located within walking distance of Elsenham Train Station, this property offers excellent connectivity while maintaining a quiet, family-friendly atmosphere.

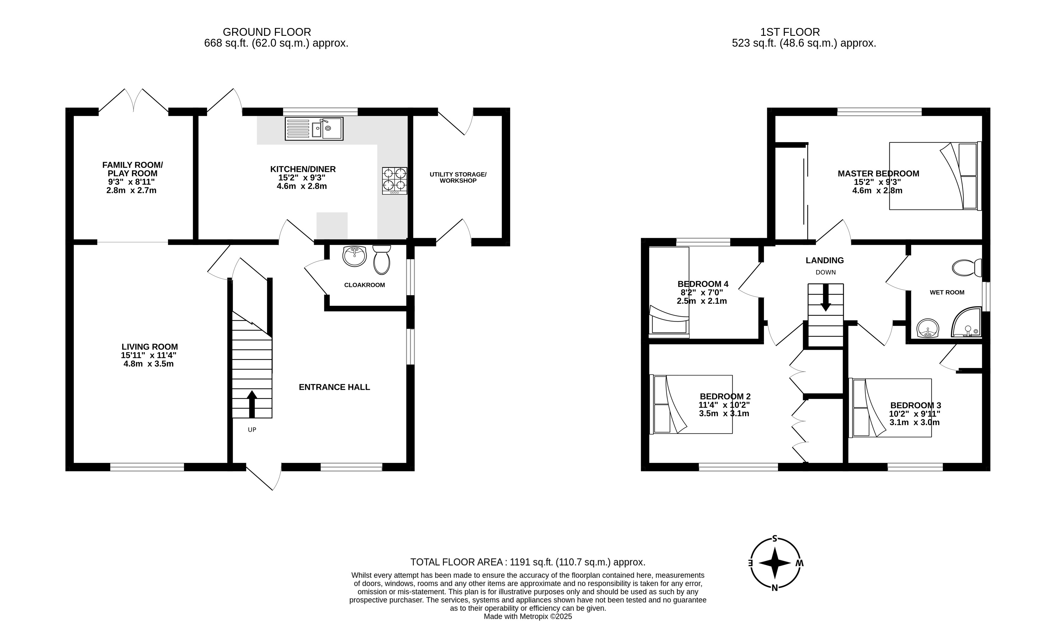
The ground floor welcomes you with a bright entrance hall that leads into a spacious living room, ideal for both relaxation and entertaining. The entrance hall also provides access to the cloakroom. The living area opens up to a family/play room at the rear, which features double doors leading out to the garden. The heart of the home is the open-plan kitchen and dining area, providing plenty of space for family meals and gatherings. Additionally, there is a utility/storage room that is accessible from the garden, along with a door leading to the off-street parking space.

Upstairs, the home features four well-proportioned bedrooms, including a spacious master bedroom with built-in wardrobes, a second bedroom with a built-in wardrobe, storage, and a wet room.

The rear garden is a peaceful retreat, complete with a patio for outdoor dining and a lawn surrounded by mature trees and shrubs. This private space is ideal for children to play or for hosting summer barbecues.

Energy efficiency is a standout feature of this property, thanks to the air source heat pump, which ensures year-round comfort and reduced energy costs. The off-street parking space at the front, as well as an EV charger adds convenience for busy families.

Located in the charming village of Elsenham, this property benefits from excellent local amenities, schools, and transportation links to London and Cambridge.

With its spacious layout, modern features, and prime location, 9 Hailes Wood is the perfect home for growing families. Contact us today to arrange a viewing and make this beautiful property your own!

Agents Notes:
Tenure: Freehold
EPC Band C
Uttlesford District Council - Band D - £2,131.32pa
Air Source Heat Pump, Mains Electric, Water & Drainage.
Mobile Coverage: Good Indoor & Outdoor Coverage Across All Major Networks (Ofcom)
Broadband Coverage: Ultrafast Available, 1,000 Mbps (Ofcom)

Location:
Elsenham is a charming village in Essex, offering a blend of rural tranquillity and excellent connectivity. Just a short drive from Bishop’s Stortford, it features amenities like a local shop, pub, and primary school. Elsenham Train Station provides direct links to London Liverpool Street and Cambridge, making it ideal for commuters. Surrounded by beautiful countryside, there are many outdoor activities available. Its close-knit community and convenient location make Elsenham a desirable place to live.


EPC Rating: C

Virtual Tour


Key Features

  • Air Source Heat Pump
  • Cul-De-Sac Location
  • South Facing Garden
  • Off-Street Parking Space
  • Walking Distance To Elsenham Train Station

Property Details

  • Property type: House
  • Property style: Detached
  • Approx Sq Feet: 1,192 sqft
  • Plot Sq Feet: 2,433 sqft
  • Property Age Bracket: 1970 - 1990
  • Council Tax Band: D
Please note, property and plot sizes displayed are for guidance purposes only and may have been derived from publicly available information over which neither the agent nor Street.co.uk have control.

Floorplans

Outside Spaces

Garden

Parking Spaces

Driveway

Capacity: 1

Location

Elsenham is a charming village in Essex, offering a blend of rural tranquillity and excellent connectivity. Just a short drive from Bishop’s Stortford, it features amenities like a local shop, pub, and primary school. Elsenham Train Station provides direct links to London Liverpool Street and Cambridge, making it ideal for commuters. Surrounded by beautiful countryside, there are many outdoor activities available. Its close-knit community and convenient location make Elsenham a desirable place to live.

Properties you may like

By Pottrill Holland Property Agents

Disclaimer - Property ID 915d8ab9-668c-4a69-a7d8-328df85f6831. The information displayed about this property comprises a property advertisement. Street.co.uk and Pottrill Holland Property Agents makes no warranty as to the accuracy or completeness of the advertisement or any linked or associated information, and Street.co.uk has no control over the content. This property advertisement does not constitute property particulars. The information is provided and maintained by the advertising agent. Please contact the agent or developer directly with any questions about this listing.