Book a Viewing

To book a viewing for this property, please call Edge Goodrich, on 01785 850222.

To book a viewing for this property, please call Edge Goodrich, on 01785 850222.

For Sale
£830,000 In Excess of

4 Bedroom Detached House, Copmere End, Stafford, ST21

Copmere End, Stafford, ST21


Edge Goodrich brand logo

Edge Goodrich

Edge Goodrich, 30 High Street, Eccleshall

Description

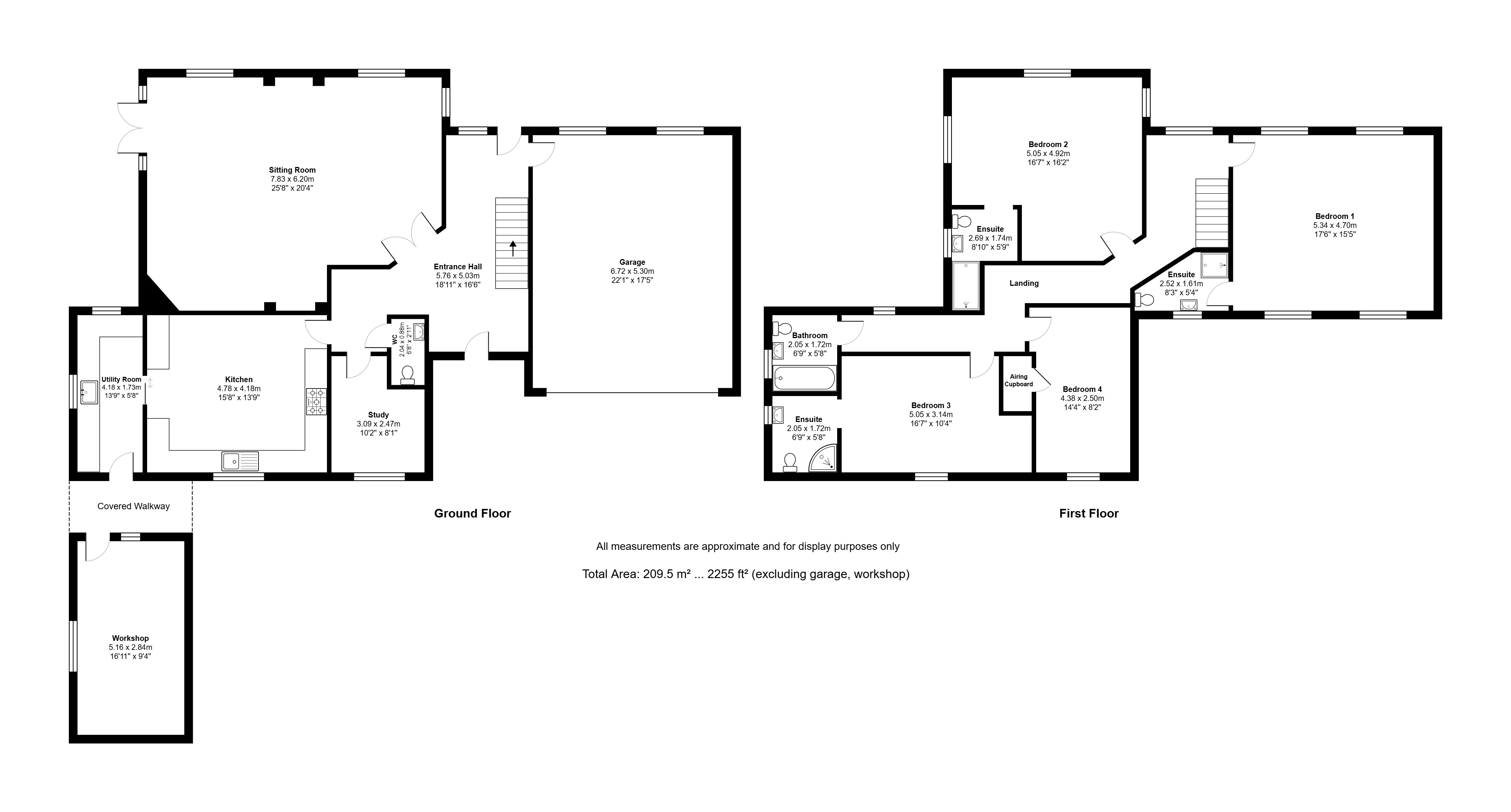
This beautifully presented four-bedroom detached family home is nestled in one of North Staffordshire’s most sought after residential areas, offering an inviting blend of character and contemporary comfort. From the moment you step into the large entrance hall, the sense of space and thoughtful design is immediately apparent. The spacious lounge is a standout feature, boasting a charming logburning stove set within a stylish hearth, perfect for cosy evenings and family gatherings.

The heart of the home is the bespoke fitted kitchen, complete with integrated appliances and an impressive electric Everhot range, ideal for both every-day cooking and entertaining. An adjoining utility room provides further practicality, while a separate study offers a peaceful retreat for home working or reading. For guests, a well-appointed cloakroom is conveniently located on the ground floor.

Ascending to the elegant galleried landing, you will find four generously sized bedrooms, each designed with comfort in mind. Three of the bedrooms benefit from smartly fitted ensuite showers, offering a touch of luxury and privacy, while the family bathroom is finished to a high standard with quality fittings.

Throughout the house, attention to detail is evident in the choice of materials and bespoke fittings, creating a harmonious blend of traditional charm and modern style.

The property is approached via a gated driveway with ample parking for several vehicles, in addition to a useful workshop and a double garage, providing excellent storage and workspace. To the rear and side, a thoughtfully landscaped garden has been created to make the most of the views of the surrounding countryside.

Located within easy reach of local services, amenities, and highly regarded schools, this home is surrounded by beautiful countryside, offering both convenience and tranquillity. The area is renowned for its scenic walks and outdoor pursuits, while excellent road links ensure swift access to neighbouring towns and transport hubs. In summary, this exceptional home combines generous, flexible living accommodation with quality craftsmanship and a prime location, making it an outstanding choice for families seeking comfort, style, and a welcoming sense of place in North Staffordshire.

The property is served by mains water and electricity. Domestic hotwater and heating is provided by an oil fired boiler. A newly installed sewage treatment plant is shared with one neighbouring property.

Virtual Tour


Key Features

  • A beautifully presented detached family home
  • Located in one of North Staffordshire's most sought after areas.
  • Within easy reach of local services and amenities and surrounded by beautiful countryside.
  • Well proportioned living accommodation including a large Entrance Hall and a spacious Lounge complete with a logburning stove.
  • Bespoke fitted kitchen with integrated appliances an electric Everhot range. Adjoining Utility Room.
  • Study and a Guest Cloakroom.
  • Galleried landing and four very comfortably sized bedrooms, three with smartly fitted ensuite showers and a family bathroom.
  • Gated driveway with parking for several vehicles, a useful workshop and a double garage.
  • Landscaped rear garden with seating areas designed to catch the sun and make the most of the view over the surrounding countryside.

Property Details

  • Property type: House
  • Property style: Detached
  • Price Per Sq Foot: £368
  • Approx Sq Feet: 2,255 sqft
  • Plot Sq Feet: 7,330 sqft
  • Council Tax Band: F
Please note, property and plot sizes displayed are for guidance purposes only and may have been derived from publicly available information over which neither the agent nor Street.co.uk have control.

Floorplans

Outside Spaces

Parking Spaces

Garage

Capacity: 2

Secure gated

Capacity: 4

Location

Eccleshall 1.5 miles Stone 6.5 miles Stafford 7.5 miles

Properties you may like

By Edge Goodrich

Disclaimer - Property ID 931480b8-a673-4396-bd9c-f8cbc0b19a32. The information displayed about this property comprises a property advertisement. Street.co.uk and Edge Goodrich makes no warranty as to the accuracy or completeness of the advertisement or any linked or associated information, and Street.co.uk has no control over the content. This property advertisement does not constitute property particulars. The information is provided and maintained by the advertising agent. Please contact the agent or developer directly with any questions about this listing.