Book a Viewing
To book a viewing for this property, please call Revilo Homes & Mortgages- Rochdale, on 01706 509237.
To book a viewing for this property, please call Revilo Homes & Mortgages- Rochdale, on 01706 509237.
For Sale
£210,000
In Excess of
4 Bedroom Terraced House, Entwisle Road, Rochdale, OL16
Entwisle Road, Rochdale, OL16

Revilo Homes & Mortgages- Rochdale
Revilo Homes Ltd, Revilo House
Description
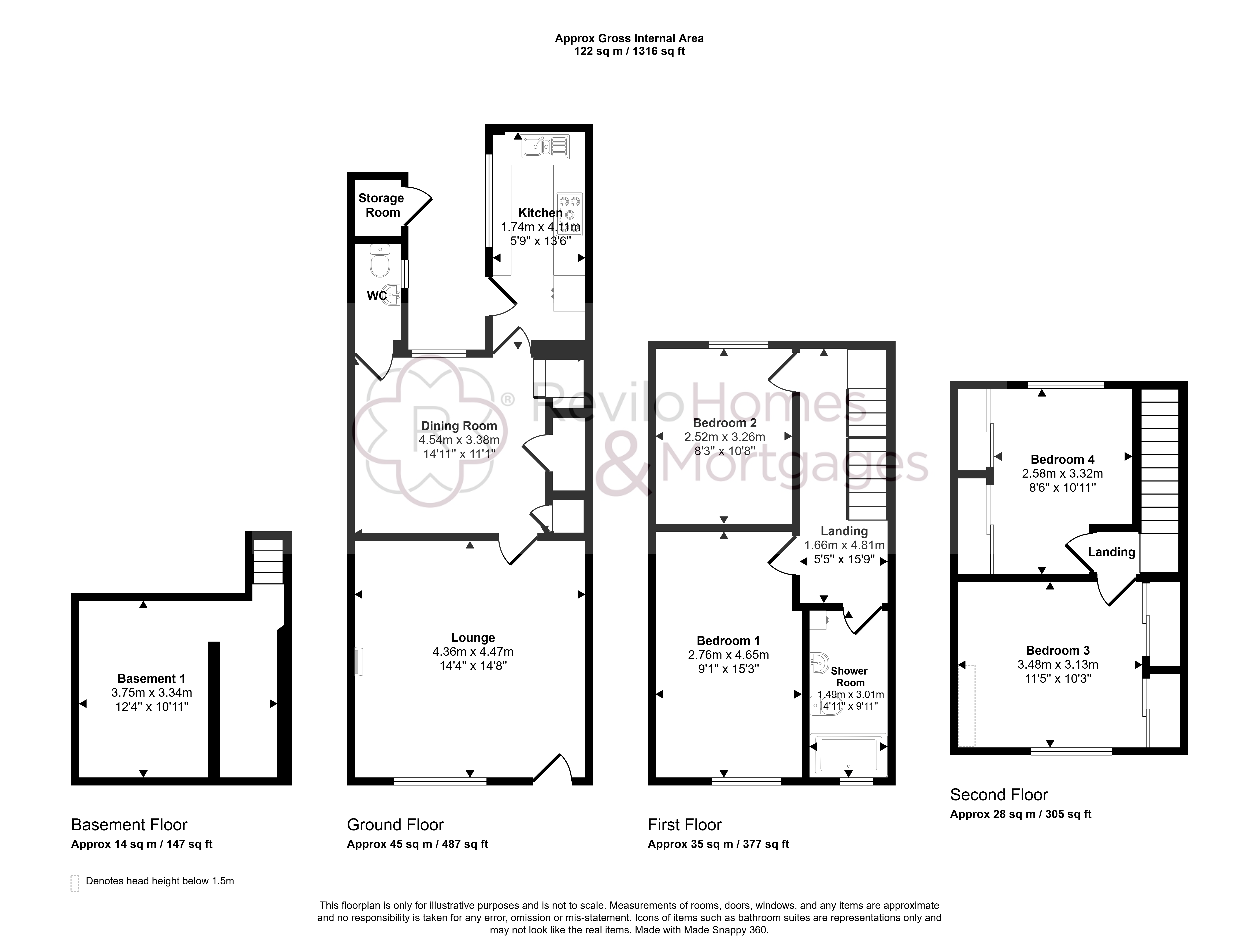
This immaculate 4-bedroom mid-terrace property presents a rare opportunity for those in search of a stunning family home in a sought-after location. Beyond its charming façade lies a meticulously presented interior, boasting modern kitchen and bathroom suites that promise both style and practicality throughout.
Upon entering the property, one is greeted by the ground floor that boasts a well-appointed WC for convenience. The interiors effortlessly flow into the spacious reception rooms, offering ample space for entertaining or relaxation.
Ascending to the first floor, you will find two double bedrooms and a shower room, elegant in design and functionality. The second floor further impresses with two additional double bedrooms, ensuring ample accommodation for a growing family or visiting guests.
Delve deeper into this home, and you will discover the hidden gem of two large basement rooms, offering versatile spaces that can be tailored to suit individual needs. The boundless potential of these rooms opens up a myriad of possibilities, from a home office to a playroom or additional bedrooms, limited only by one's imagination.
Situated in a sought-after position, this property grants ease of access to Rochdale Centre, ensuring residents have a wealth of amenities and transport links at their fingertips. The proximity to the local mosque adds to the convenience for those who value a sense of community and cultural connection.
Elegant and practical, this property is the epitome of a wonderful family home, where every detail has been considered to create a space that is as comfortable as it is stylish. The thoughtful design and exceptional presentation make viewing essential to truly appreciate all that this home has to offer.
In conclusion, this terraced house is not merely a property, but a statement of modern living at its finest. From its immaculate presentation to its spacious layout and additional basement rooms, every aspect of this home exudes quality and sophistication. For those seeking a residence that effortlessly combines style and functionality, this property is a must-see.
EPC Rating: D
Upon entering the property, one is greeted by the ground floor that boasts a well-appointed WC for convenience. The interiors effortlessly flow into the spacious reception rooms, offering ample space for entertaining or relaxation.
Ascending to the first floor, you will find two double bedrooms and a shower room, elegant in design and functionality. The second floor further impresses with two additional double bedrooms, ensuring ample accommodation for a growing family or visiting guests.
Delve deeper into this home, and you will discover the hidden gem of two large basement rooms, offering versatile spaces that can be tailored to suit individual needs. The boundless potential of these rooms opens up a myriad of possibilities, from a home office to a playroom or additional bedrooms, limited only by one's imagination.
Situated in a sought-after position, this property grants ease of access to Rochdale Centre, ensuring residents have a wealth of amenities and transport links at their fingertips. The proximity to the local mosque adds to the convenience for those who value a sense of community and cultural connection.
Elegant and practical, this property is the epitome of a wonderful family home, where every detail has been considered to create a space that is as comfortable as it is stylish. The thoughtful design and exceptional presentation make viewing essential to truly appreciate all that this home has to offer.
In conclusion, this terraced house is not merely a property, but a statement of modern living at its finest. From its immaculate presentation to its spacious layout and additional basement rooms, every aspect of this home exudes quality and sophistication. For those seeking a residence that effortlessly combines style and functionality, this property is a must-see.
EPC Rating: D
Virtual Tour
https://www.madesnappy.co.uk/tour/1g754g2225fKey Features
- IMMACULATE 4 BEDROOM, MID TERRACE, WITH ADDITIONAL BASEMENT ROOMS
- STUNNING PRESENTATION THROUGHOUT WITH MODERN KITCHEN AND BATHROOM SUITES
- GROUND FLOOR WC
- 2 DOUBLE BEDROOMS AND SHOWER ROOM TO FIRST FLOOR
- 2 FURTHER DOUBLE BEDROOMS TO THE SECOND FLOOR
- 2 LARGE BASEMENT ROOMS OFFERING FURTHER POTENTIAL
- SOUGHT AFTER POSITION WITH EASE OF ACCESS TO ROCHDALE CENTRE, PROVIDING EXCELLENT AMENITIES AND TRANSPORT LINKS
- CLOSE TO THE LOCAL MOSQUE
- 2 RECEPTION ROOMS
- WONDERFUL FAMILY HOME-VIEWING ESSENTIAL
Property Details
- Property type: House
- Price Per Sq Foot: £160
- Approx Sq Feet: 1,313 sqft
- Plot Sq Feet: 118 sqft
- Council Tax Band: A
- Tenure: Leasehold
- Lease Expiry: -
- Ground Rent:
- Service Charge: Not Specified
Rooms
REVILO INSIGHT
UPRN 23071186/ Floor Area 1,313 ft2/ 122 m2/ Plot Size 0.01 acres (2 Plots)/ Local Authority Rochdale/ Conservation Area No Council Tax Band Band A/ Council Tax Estimate £1,639/ Latest FENSA Work 18/06/2007/ Land Registry Title Number GM406559/ Tenure Leasehold/ Lease Start Date 16/02/1986 Lease End Date 01/09/2981/ Lease Term 999 years from 1 September 1982/ Lease Term Remaining 956 years.
View REVILO INSIGHT PhotosFloorplans
Outside Spaces
Location
Properties you may like
By Revilo Homes & Mortgages- Rochdale
Disclaimer - Property ID 97185669-cea4-491f-9ff7-99c4066c4786. The information displayed
about this property comprises a property advertisement. Street.co.uk and Revilo Homes & Mortgages- Rochdale makes no warranty as to
the accuracy or completeness of the advertisement or any linked or associated information,
and Street.co.uk has no control over the content. This property advertisement does not
constitute property particulars. The information is provided and maintained by the
advertising agent. Please contact the agent or developer directly with any questions about
this listing.