4 Bedroom Detached Bungalow, Birling Avenue, Bearsted, ME14

Birling Avenue, Bearsted, ME14

Description

This delightful chalet bungalow offers a rare combination of flexibility, space, and charm, perfect for growing families or those seeking a comfortable and adaptable home in a prime location. Boasting four bedrooms and generous living areas, this property has been thoughtfully designed to accommodate modern family living while offering potential for further customization.

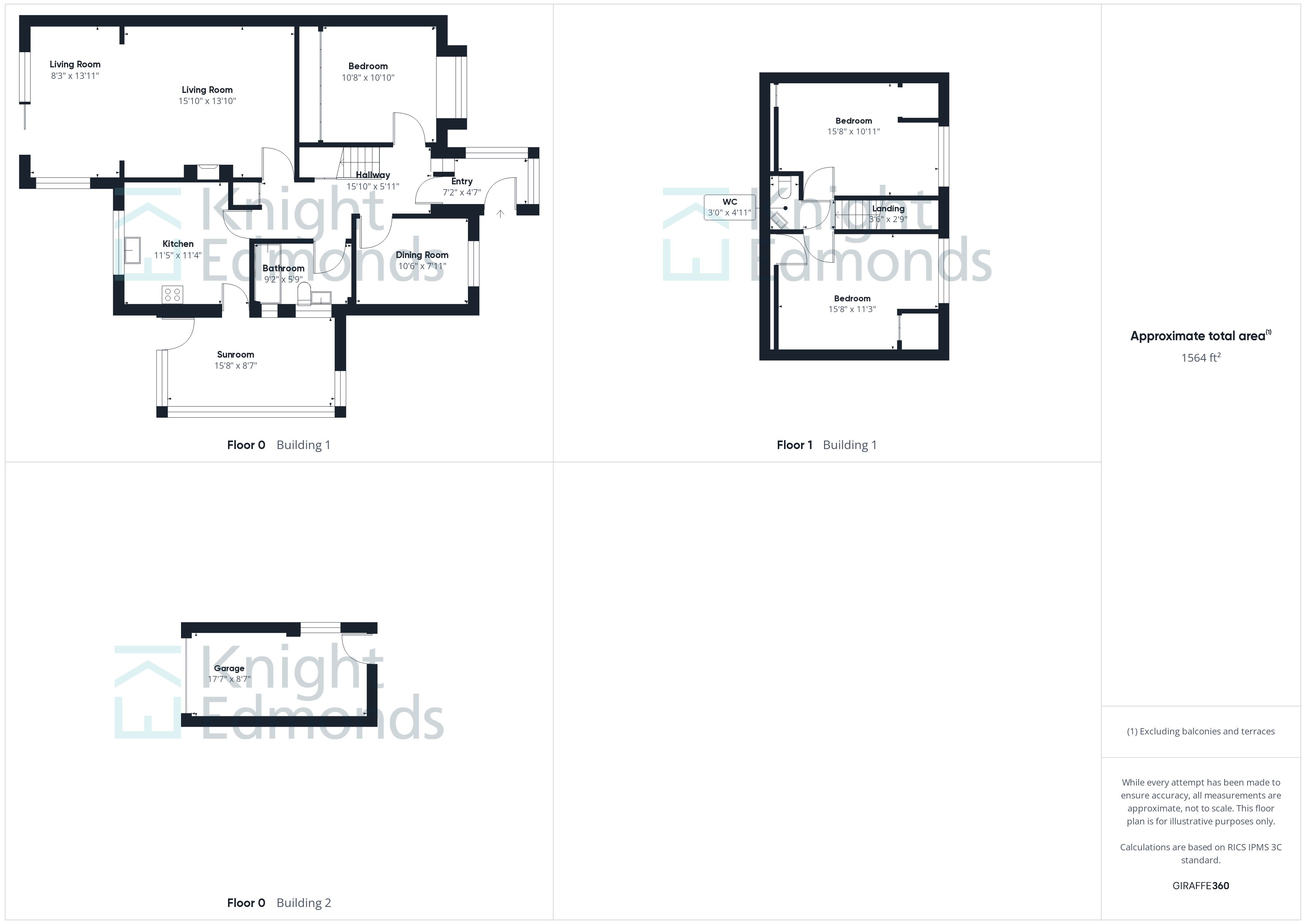
Upon entering the property, you are welcomed by a spacious and light-filled porch, providing an ideal space for storing shoes and coats before entering the main hallway. Off the hallway, you’ll find two versatile rooms, easily adaptable to suit your lifestyle. These rooms could serve as a formal dining room, a home office, or even a cosy family snug, depending on your needs.

The sitting room is a true highlight of the home. This generously sized, bright room is perfect for relaxation, with large sliding doors that not only flood the room with natural light but also lead directly into the beautifully maintained rear garden. This seamless indoor-outdoor flow is perfect for entertaining or simply enjoying the peaceful surroundings.

The kitchen has been designed with functionality in mind, offering plenty of worktop space for meal preparation, along with a breakfast bar for casual dining or morning coffee. The kitchen connects to a bright and airy conservatory, which could serve as an additional dining space or lounge area. With views over the garden, the conservatory provides a tranquil space to relax and enjoy the outdoors throughout the year. This room also provides further access to the garden, making it ideal for summer barbecues or alfresco dining.

Completing the ground floor is a modern family bathroom, equipped with a bath, overhead shower, wash basin, and WC, offering a convenient option for family members and guests alike.

Heading upstairs, the property continues to impress with two further double bedrooms, both featuring ample built-in storage. These rooms are light, spacious, and thoughtfully laid out to maximize comfort. One of the bedrooms also benefits from the addition of a wash basin, offering added convenience. The first floor also includes a separate toilet, ensuring privacy and ease for those using the upstairs bedrooms.

The rear garden has been meticulously cared for and is a true oasis of calm. It features a combination of paved patio areas and a well-maintained lawn, surrounded by mature shrubs and plants, providing a low-maintenance yet beautiful outdoor space. Whether you’re hosting summer gatherings, gardening, or simply relaxing, this garden offers plenty of potential to enjoy the outdoors in a private and peaceful setting.

For those in need of storage or additional parking, the property includes a garage, ideal for housing tools, bicycles, or other belongings. In addition, the driveway provides off-street parking for multiple vehicles, a valuable feature in such a desirable location.

With its adaptable layout, spacious rooms, and superb outdoor space, this charming chalet bungalow offers a unique opportunity to own a versatile home in a highly desirable area. Whether you’re looking to upsize or seeking a property with potential for multi-generational living, this home ticks all the boxes.

Situated close to local shops including a Co-op, pharmacy, vets, hairdressers, and takeaways, the property is well served by handy local amenities. Also on your doorstep is Mote Park which is a lovely area for weekend strolls and family time. Central Maidstone is a couple of miles away for all the high street shops, cafes, pubs, restaurants, and family entertainment, plus the train stations Maidstone East, West, and Barracks for fast links into central London. By road the M20 is easy to access for quick links into the capital or to the coast. For schools there is Madginford Primary School just a short walk away and Maidstone Grammar is also easy to access. 


EPC Rating: D

Key Features

  • Guide Price £625,000 - £650,000
  • Versatile Living Arrangements
  • Popular Bearsted Location
  • Driveway
  • Conservatory
  • Fantastic Transport Links & Amenities Nearby

Property Details

  • Property type: Bungalow
  • Property style: Detached
  • Approx Sq Feet: 1,355 sqft
  • Plot Sq Feet: 6,738 sqft
  • Council Tax Band: F
Please note, property and plot sizes displayed are for guidance purposes only and may have been derived from publicly available information over which neither the agent nor Street.co.uk have control.

Floorplans

Outside Spaces

Parking Spaces

Garage

Capacity: 2

Garage and Driveway

Location

Properties you may like

By Knight Edmonds Sales

Disclaimer - Property ID 9a0e6e32-fbb3-4f86-87d6-c507d03e8b56. The information displayed about this property comprises a property advertisement. Street.co.uk and Knight Edmonds Sales makes no warranty as to the accuracy or completeness of the advertisement or any linked or associated information, and Street.co.uk has no control over the content. This property advertisement does not constitute property particulars. The information is provided and maintained by the advertising agent. Please contact the agent or developer directly with any questions about this listing.