Book a Viewing

To book a viewing for this property, please call Henry Adams - Petersfield, on 01730 262801.

To book a viewing for this property, please call Henry Adams - Petersfield, on 01730 262801.

For Sale
£285,000 Guide Price

2 Bedroom Flat, Cardew Road, Liss, GU33

Cardew Road, Liss, GU33


Henry Adams Primary Brand brand logo

Henry Adams - Petersfield

Henry Adams LLP, 24 Lavant Street

Description

This spacious two-bedroom ground floor maisonette in Liss offers light-filled rooms, comfortable living, and the bonus of a private garden. The generous layout includes a well-proportioned living area, a practical kitchen, and two good-sized bedrooms, making it an ideal choice for first-time buyers, those looking to downsize and investors alike.

With its private entrance, allocated parking, and easy access to the garden, the property provides both convenience and a sense of independence. The home is bright and welcoming throughout, with plenty of space to make your own.

Perfectly located in the popular village of Liss, you’ll have local shops, cafés, and amenities close by, as well as excellent transport links via Liss station and the nearby A3. The surrounding South Downs National Park offers miles of countryside walks and outdoor activities right on your doorstep.

This is a well-presented, home in a sought-after location — ready to move into and enjoy.


EPC Rating: C

Key Features

  • Private Enclosed Garden.
  • Open Plan Living Space.
  • Close to Local Amenities.
  • Driveway Parking.
  • Home Garden Office.
  • Walkable to village centre.
  • Great Location for Transport Links.
  • Double Glazed Windows & Gas Central Heating.

Property Details

  • Property type: Flat
  • Price Per Sq Foot: £382
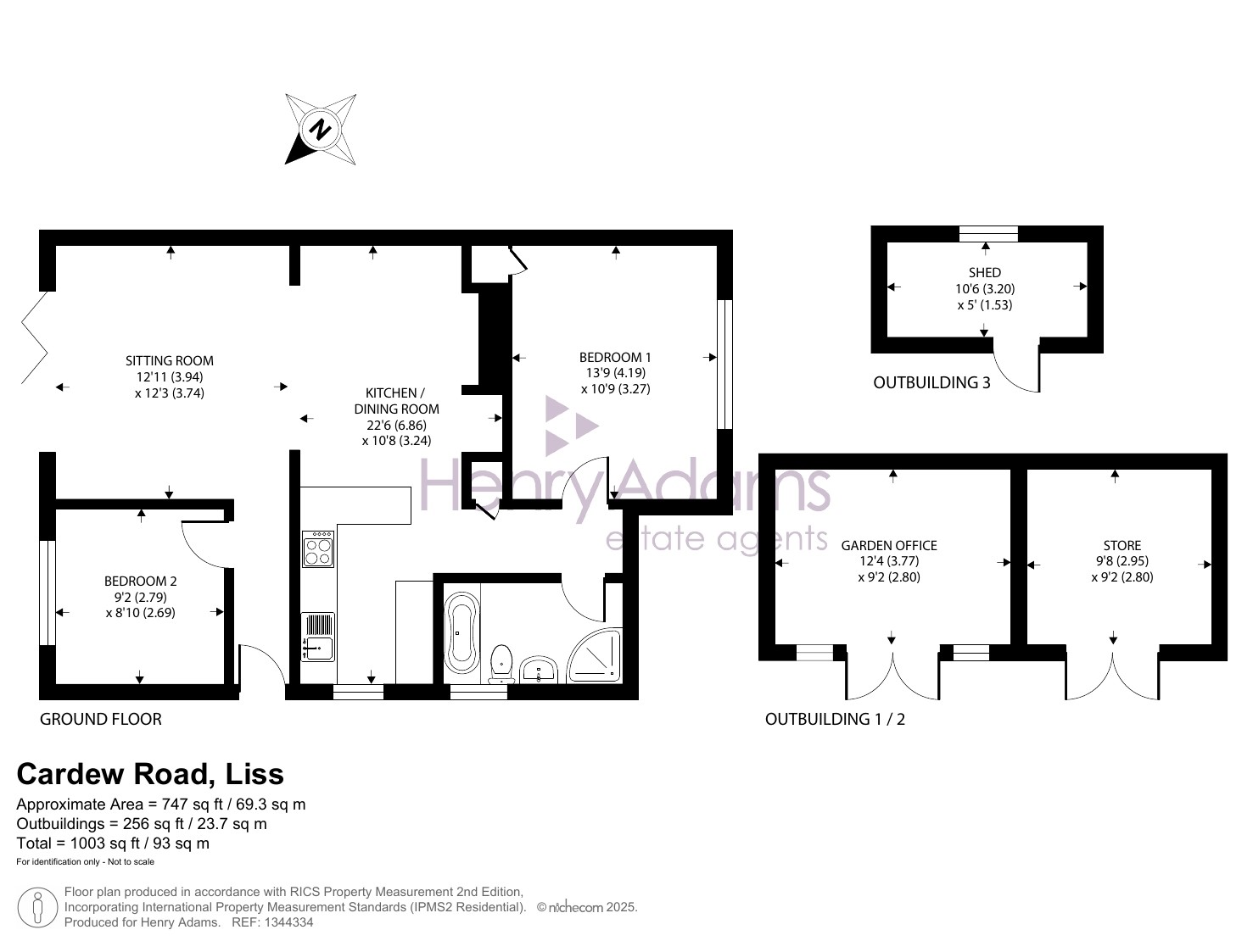
  • Approx Sq Feet: 747 sqft
  • Property Age Bracket: 1970 - 1990
  • Council Tax Band: B
  • Tenure: Leasehold
  • Lease Expiry: 18/08/2113
  • Ground Rent: £10.00 per year
  • Service Charge: Not Specified
Please note, property and plot sizes displayed are for guidance purposes only and may have been derived from publicly available information over which neither the agent nor Street.co.uk have control.

Rooms

Bedroom 1

Bedroom 2

Kitchen

Living area

Bathroom

Garden

Floorplans

Outside Spaces

Garden

Parking Spaces

Driveway

Capacity: 1

Location

Properties you may like

By Henry Adams - Petersfield

Disclaimer - Property ID 9a55e707-59cb-43b2-91b7-a72df27752e0. The information displayed about this property comprises a property advertisement. Street.co.uk and Henry Adams - Petersfield makes no warranty as to the accuracy or completeness of the advertisement or any linked or associated information, and Street.co.uk has no control over the content. This property advertisement does not constitute property particulars. The information is provided and maintained by the advertising agent. Please contact the agent or developer directly with any questions about this listing.