Book a Viewing

To book a viewing for this property, please call Fine and Country West Wales & Pembrokeshire / Homes of Wales, on 01974 299055.

To book a viewing for this property, please call Fine and Country West Wales & Pembrokeshire / Homes of Wales, on 01974 299055.

For Sale
£150,000 In Excess of

Plot, Twyn Uchaf, Ynyslas, Aberystwyth, SY24

Twyn Uchaf, Ynyslas, Aberystwyth, SY24


Fine and Country West Wales / Homes of Wales Primary Brand brand logo

Fine and Country West Wales & Pembrokeshire / Homes of Wales

2nd Floor Suites 8 Great Darkgate Street, Aberystwyth

Description

Twyn Uchaf offers an exceptional opportunity to build a contemporary home on the West coast of Wales. Set within a plot of approximately 0.25 acres, the proposed four-bedroom detached residence will provide around 2,350 sq ft of internal living space across two storeys, featuring covered verandas and a balcony with breath-taking sea views.

Designed in collaboration with renowned and award-winning architect Rural Office, winner of the RIBA House of the Year Award 2017, this outstanding new coastal home will combine architectural pedigree, design integrity, and a breath-taking natural setting to create a truly remarkable opportunity. Known for their award-winning work on the carbon-neutral estate Caring Wood, Rural Office has earned a reputation for delivering projects of exceptional craftsmanship, environmental consciousness, and deep sensitivity to their surroundings. Their designs are rooted in place and purpose — and this dwelling is no exception.

Carefully created to sit gently within its landscape, the design takes inspiration from the textures, tones, and rhythms of the surrounding coast and countryside. Its form is simple yet striking, grounded by a natural slate roof, timber cladding, and wild, low maintenance landscaping that echoes the dunes and heathland of the Welsh coast. The architecture celebrates light and outlook, with large, glazed openings framing ever-changing views across Cardigan Bay, the Cambrian Mountains, and the greens of Borth & Ynyslas Golf Club, one of Wales’s oldest links courses. The result is a building that feels timeless, authentic, and perfectly at ease in its setting.

Life here is defined by space, serenity, and connection to nature. The plot lies within the UNESCO Dyfi Biosphere, an area of outstanding ecological and cultural importance. From the door, you can wander along the boardwalks of the Dyfi National Nature Reserve, explore the dunes at Ynyslas Beach, or witness the ancient, petrified forest, revealed at low tide and dating back over three thousand years. Behind, the vast open landscapes of the Cambrian Mountains invite exploration, whether for walking, cycling, fishing, or simply breathing the fresh coastal air.

Food lovers will find themselves at the heart of one of Wales’ most dynamic culinary regions. Just ten minutes away, the two Michelin-starred Ynyshir, led by acclaimed chef Gareth Ward, offers a world-class dining experience. Nearby Aberystwyth and Machynlleth are home to a wealth of independent cafés, delis, and restaurants — including Ultracomida, Medina, and Gwen — each celebrating the best local produce. There are also numerous welcoming pubs and beachside eateries where you can enjoy a relaxed meal while watching the sun dip into the bay.

The site benefits from full planning permission (Ref: A220876) for a beautifully designed dwelling for holiday use, offering both certainty and flexibility for buyers seeking a genuine second or holiday home. This exceptional plot comes with detailed, architect-designed plans already in place, providing a clear vision for a stunning new residence. The build cost is estimated to range from approximately £450,000, depending on the chosen finishes and materials. The design can also be tailored to suit individual preferences, budgets, and specifications, allowing buyers to create a truly bespoke property that reflects their own style and requirements. A comprehensive technical information pack for this plot is available to view on request.

There is no limit on the length of stay other than the dwelling may not be occupied as a person's sole, or main place of residence. However, this planning condition will make the property eligible for a Class 6 exemption from Council Tax premiums applied to second homes.

The northern half of the site has already been completed to a similar design and is available to view by appointment, demonstrating the exceptional quality and character achievable here.

The site is fully prepared and construction-ready, with mains services and broadband available, ducting and drainage pre-installed, and hardstanding and soakaways in place. It is, quite literally, oven ready for foundations to be laid and the next chapter of this remarkable project to begin.

This is a rare opportunity to create a home of true architectural distinction in one of West Wales’ most captivating coastal locations — a place where design, landscape, and lifestyle come together in perfect harmony.

Virtual Tour

Other Virtual Tours:


Key Features

  • Opportunity to build a coastal home designed by Rural Office architects, winners of the RIBA House of the Year 2017
  • Fully authorised planning permission for a genuine holiday or second home, providing certainty and flexibility — unlike standard residential consents that can restrict holiday use
  • Clear site with ducting for easy connection to services, hardstanding and soakaways installed.
  • Natural slate roof, timber cladding, and wild coastal landscaping that blend seamlessly with the surroundings
  • Panoramic views across Cardigan Bay, the Cambrian Mountains, and Borth & Ynyslas Golf Club
  • Situated within the UNESCO Dyfi Biosphere, moments from Ynyslas Beach and close to Borth, Aberystwyth, and Machynlleth

Property Details

  • Property type: Plot
  • Council Tax Band: TBD
Please note, property and plot sizes displayed are for guidance purposes only and may have been derived from publicly available information over which neither the agent nor Street.co.uk have control.

Rooms

Entrance Veranda

Entrance Hall

Bedroom One (En-suite)

En-suite

Bedroom Two

Bathroom

Bedroom Three

Utility Room

Open Plan Kitchen/Dining area

Pantry

Cloakroom

Storeroom

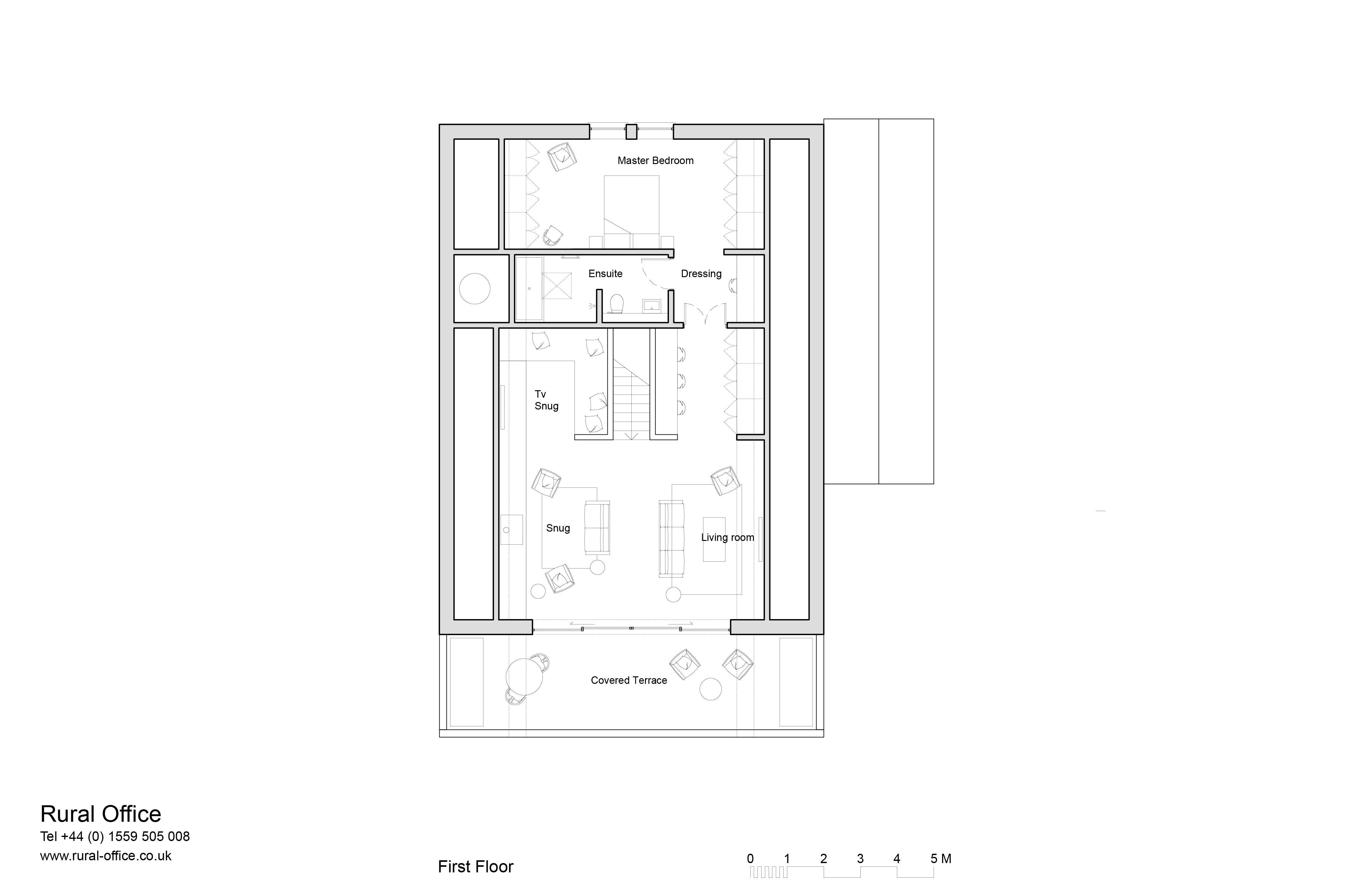
First Floor

Open Plan Living/Snug area

Principal Bedroom

En-suite

Dressing area

Outside Spaces

Balcony

Verandas to the front and rear

Rear Garden

Large garden to the rear of the property.

Parking Spaces

Driveway

Capacity: 3

Generous driveway with ample space for parking.

Location

Nestled between the mountains and the sea, Twyn Uchaf enjoys an exceptional position in Ynyslas, near the village of Borth on Wales’ stunning west coast. Overlooking Cardigan Bay and the Cambrian Mountains, the setting offers a rare combination of dramatic landscape and peaceful seclusion. The plot sits within the UNESCO Dyfi Biosphere, an area celebrated for its unspoilt natural beauty, diverse wildlife, and outdoor lifestyle. The golden sands of Ynyslas Beach are just moments away, while Borth & Ynyslas Golf Club—the oldest 18-hole links in Wales—lies directly before the site.

Properties you may like

By Fine and Country West Wales & Pembrokeshire / Homes of Wales

  • Bethania House, 52 Bethania Road, Upper Tumble, Carmarthenshire SA14 6ED

    • 4 Beds
    • 3 Bath
    View Property
  • Talbot Hotel, The Square, Tregaron, SY25

    • 13 Beds
    • 13 Bath
    View Property
  • Ty Nant, Mill Street, Llwyngwril, LL37

    • 5 Beds
    • 2 Bath
    View Property
  • Ty Siriol, Dinas Cross, Newport, SA42

    • 4 Beds
    • 2 Bath
    View Property
  • PLOT 1, The Headlands, St Brides View, SA62

    • 4 Beds
    • 4 Bath
    View Property
  • Perllan Dewi, Capel Dewi, Aberystwyth, SY23

    • 3 Beds
    • 2 Bath
    View Property
  • Borth, SY24

    • 5 Beds
    • 2 Bath
    View Property
  • Gilfachrheda, New Quay, SA45

    • 3 Beds
    • 3 Bath
    View Property
  • Llandre, Bow Street, SY24

    • 4 Beds
    • 2 Bath
    View Property
Disclaimer - Property ID 9b28feb2-13b1-4123-bb6a-399a309e73c2. The information displayed about this property comprises a property advertisement. Street.co.uk and Fine and Country West Wales & Pembrokeshire / Homes of Wales makes no warranty as to the accuracy or completeness of the advertisement or any linked or associated information, and Street.co.uk has no control over the content. This property advertisement does not constitute property particulars. The information is provided and maintained by the advertising agent. Please contact the agent or developer directly with any questions about this listing.