Book a Viewing

To book a viewing for this property, please call Oliver Jaques, on 02072315050.

To book a viewing for this property, please call Oliver Jaques, on 02072315050.

For Sale
£865,000

4 Bedroom Mid-Terraced House, Alloa Road, London, SE8

Alloa Road, London, SE8


Oliver Jaques Primary Brand brand logo

Oliver Jaques

Oliver Jaques, 229-231 Lower Road

Description

FREEHOLD

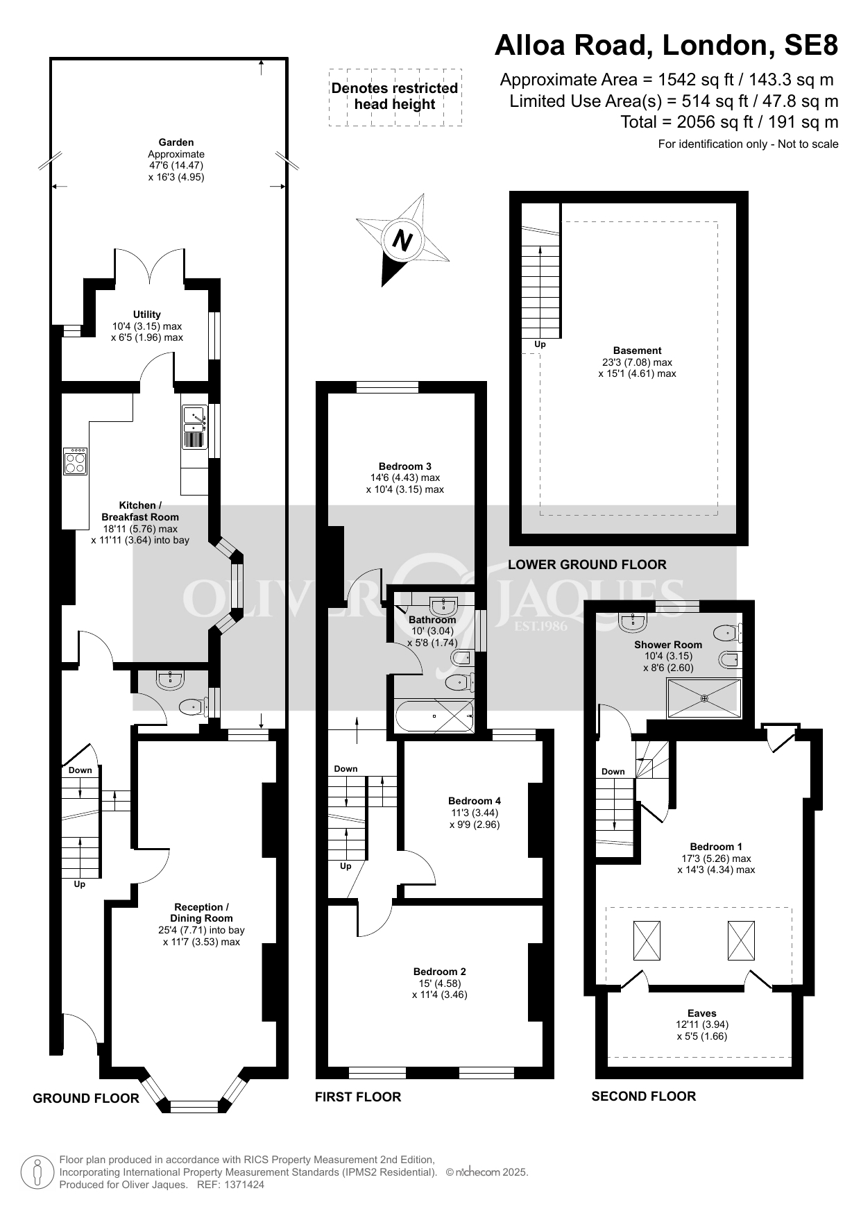
Located on a tree-lined residential street stands this four double bedroomed, Victorian mid-terraced home. The 1500+ SQ.FT of internal space is complimented by the traditional high ceilings and large windows you would expect. The ground floor comprises a large reception/dining room which follows on to a separate WC and kitchen/breakfast room with utility room leading from these. You can reach the garden from the separate utility room/conservatory. On to the first floor you will find three bedrooms along with shared bathroom. Further up on to the second floor which is the converted loft space, you will find the master bedroom and bathroom. The property also comes with a basement on the lower ground floor.

The property is just a street away from leafy Deptford Park and within easy reach of a number of transport links including Surrey Quays overground station (0.5 miles) Deptford station (1.0 miles) and Canada Water underground station (0.9 miles) making it ideal for commuting to central London.

The property also stands to benefit from significant ongoing investment in the area with the Canada Water Masterplan. Located just 0.9 miles away, this 15-year regeneration project aims to transform the area into a vibrant new urban hub. Covering 53 acres, the plan includes the development of a new town centre, extensive public spaces, and a range of new buildings, shops and workspaces. - https://canadawater.co.uk/vision/masterplan/


EPC Rating: C

Key Features

  • Victorian Terraced Home
  • Four Bedrooms
  • Basement
  • Spacious Back Garden
  • Converted Loft Space
  • Residential Street
  • Close to Local Amenities
  • Surrey Quays overground station (0.5 miles)
  • Deptford station (1.0 miles)
  • Canada Water underground station (0.9 miles)

Property Details

  • Property type: House
  • Property style: Mid-Terraced
  • Price Per Sq Foot: £421
  • Approx Sq Feet: 2,056 sqft
  • Property Age Bracket: Victorian (1830 - 1901)
  • Council Tax Band: D
Please note, property and plot sizes displayed are for guidance purposes only and may have been derived from publicly available information over which neither the agent nor Street.co.uk have control.

Floorplans

Outside Spaces

Garden

Location

Properties you may like

By Oliver Jaques

Disclaimer - Property ID 9ca7a003-2fe0-4896-9944-28e0e9e1742f. The information displayed about this property comprises a property advertisement. Street.co.uk and Oliver Jaques makes no warranty as to the accuracy or completeness of the advertisement or any linked or associated information, and Street.co.uk has no control over the content. This property advertisement does not constitute property particulars. The information is provided and maintained by the advertising agent. Please contact the agent or developer directly with any questions about this listing.