Book a Viewing
To book a viewing for this property, please call Cornish Bricks, on 01872 211655.
To book a viewing for this property, please call Cornish Bricks, on 01872 211655.
Plot, Foxhole, St. Austell, PL26
Foxhole, St. Austell, PL26

Cornish Bricks
22 Pydar Street, Truro
Description
A rare and exciting opportunity to purchase a FANTASTIC PLOT, FOR A CONTEMPORARY HOME with GARAGE with a MODERN DESIGN, FANTASTIC LIVING SPACE, 3/4 BEDROOMS & 2 BATHROOMS set within a GENEROUS PLOT. Located in a CONVENIENT & POPULAR VILLAGE, within WALKING DISTANCE TO VILLAGE AMENITIES.
A GREAT OPPPORTUNITY FOR A LOCAL DEVELOPER OR FOR SOMEONE LOOKING FOR A SELF BUILD TO CREATE THEIR PERFECT HOME!
*** Agent notes - NO CIL PAYMENT AS AREA EXEMPT - Services connected to plot. H Frame is being moved away from the plot. Air source heating ***
PROPERTY:
PLANNING REFERENCE - PA22/07605 - Services - Water - main pipe at site needs to be connected and meter fitted, Drainage to be connect to be mains from road. Electric on site.
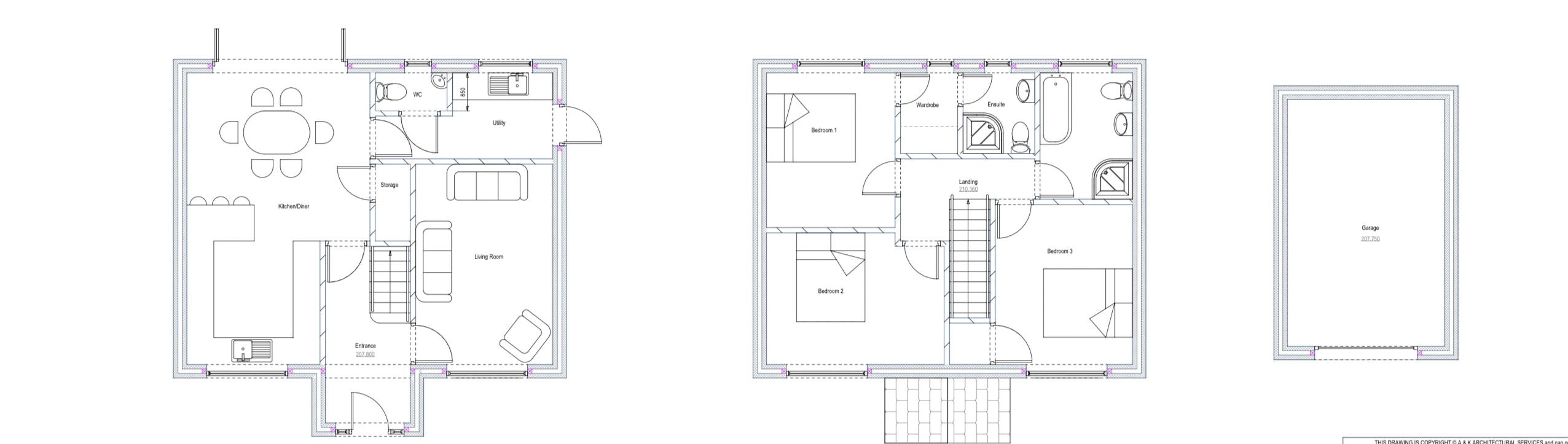
The ground floor will offer a entrance hallway, cloakroom/W.C, utility room, open plan kitchen/diner and formal lounge.
The first floor offer three or four bedrooms and family bathroom, if you altered the layout with the master bedroom enjoying an En-suite shower room.
EXTERNALLY:
Outside the property will have an detached garage The plot will have a generously sized sunny garden and driveway parking.
LOCATION:
Foxhole is a village situated between St Austell and Newquay with a primary school and a range of village amenities including shop / post office, fish & chip shop, medical centre and primary school. There is a regular 'Bus service to St Austell and Newquay,
St Austell town centre is situated approximately 5 miles away which offers a wider range of amenities; supermarkets, shopping, banking, leisure centre and recreational facilities. There is a mainline railway station together with primary, secondary schools & college.
The town of Fowey is approximately 13 miles away, Charlestown 7 miles, both well known for its restaurants and coastal walks.
The cathedral city of Truro is approximately 20 miles from the property.
Property Details
- Property type: Plot
- Council Tax Band: TBD
Floorplans
Location
Properties you may like
By Cornish Bricks