Book a Viewing

To book a viewing for this property, please call Breakey & Co Estate Agents, on 01942 238200.

To book a viewing for this property, please call Breakey & Co Estate Agents, on 01942 238200.

For Sale
£230,000 Offers in Region of

3 Bedroom Semi Detached House, East Mount, Orrell, WN5

East Mount, Orrell, WN5


Breakey & Co Estate Agents Primary Brand brand logo

Breakey & Co Estate Agents

Breakey & Co, 57-59 Ormskirk Road

Description

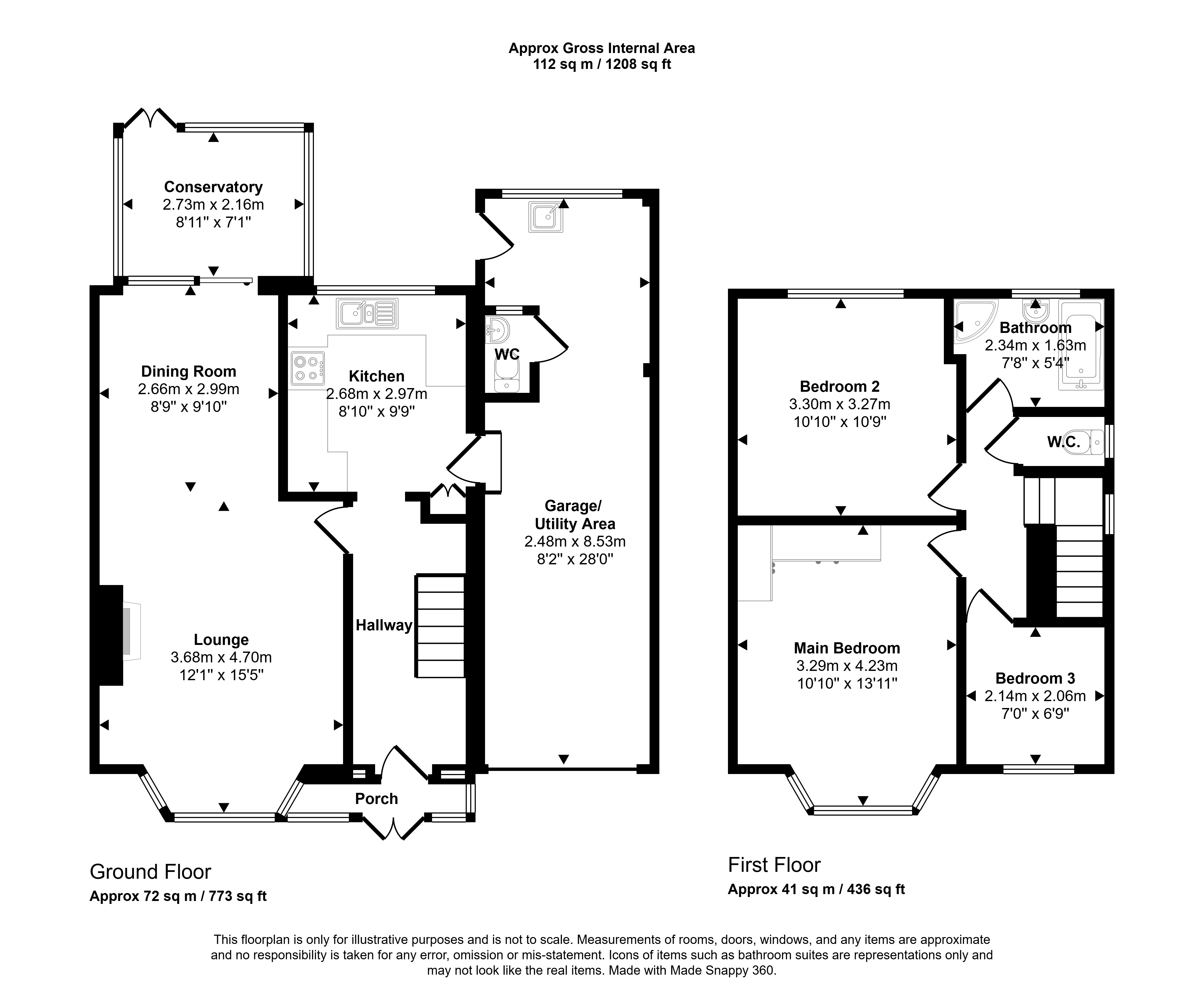
New to the market with the benefit of no chain, this traditional three-bedroom semi-detached property is perfect for a growing family looking for a home to make their own. Situated in the highly desirable area of Orrell, this extended home offers an excellent opportunity for those seeking space, comfort, and potential for personalisation.

Internally, the property boasts a welcoming entrance porch/ hallway, leading into the open-plan lounge/diner, a versatile space ideal for family living. The fitted kitchen, while the bright sunroom, overlooking the rear garden, offers a peaceful retreat. The large garage/utility room adds valuable extra space, perfect for storage or as a workshop.

To the first floor, the landing area gives access to two generous double bedrooms, a well-sized single bedroom, a family bathroom, and a separate W.C.

Externally, this home benefits from a well-established rear garden, offering an ideal outdoor space for family gatherings, play, or relaxation. To the front, a driveway provides convenient off-road parking for multiple vehicles.

This delightful home presents the perfect opportunity to create your dream family space in a prime location. Early viewings are highly recommended to fully appreciate the size, layout, and potential of this fantastic property.


EPC Rating: D

Key Features

  • Three bedrooms
  • Traditional semi-detached property
  • Sought after location
  • NO CHAIN
  • Large rear garden
  • Two reception rooms
  • Garage/ utility room
  • Freehold/ council tax band C
  • Perfect for a family

Property Details

  • Property type: House
  • Property style: Semi Detached
  • Price Per Sq Foot: £190
  • Approx Sq Feet: 1,208 sqft
  • Property Age Bracket: 1960 - 1970
  • Council Tax Band: C
Please note, property and plot sizes displayed are for guidance purposes only and may have been derived from publicly available information over which neither the agent nor Street.co.uk have control.

Floorplans

Parking Spaces

Off street

Capacity: N/A

Garage

Capacity: N/A

Location

Orrell, Wigan.

Properties you may like

By Breakey & Co Estate Agents

Disclaimer - Property ID 9e8a41df-3bb7-4881-b8f8-9b08c57bb206. The information displayed about this property comprises a property advertisement. Street.co.uk and Breakey & Co Estate Agents makes no warranty as to the accuracy or completeness of the advertisement or any linked or associated information, and Street.co.uk has no control over the content. This property advertisement does not constitute property particulars. The information is provided and maintained by the advertising agent. Please contact the agent or developer directly with any questions about this listing.