Book a Viewing

To book a viewing for this property, please call Shrigley Rose & Co, on 0161 425 7878.

To book a viewing for this property, please call Shrigley Rose & Co, on 0161 425 7878.

For Sale
£795,000 Guide Price

4 Bedroom Detached House, Shelley Court, Cheadle Hulme, SK8

Shelley Court, Cheadle Hulme, SK8


Shrigley Rose & Co Primary Brand brand logo

Shrigley Rose & Co

4 Ravenoak Road, Cheadle Hulme

Description

This exceptional 10-year-old family home seamlessly blends contemporary design, industrial-inspired details, and thoughtfully planned living spaces, creating a home that is as stylish as it is functional. Bathed in natural light, the property features bespoke finishes and a carefully considered layout that combines comfort, practicality, and sophistication throughout.

The moment you enter, a dramatic sky lantern hallway floods the space with natural light, highlighting a striking glass walkover that elegantly bridges the staircase to the kitchen below. This unique architectural feature creates an airy, visually captivating connection between floors, setting the tone for the home’s contemporary design.

The master suite, accessed directly from the hallway, is a private sanctuary, offering a luxurious ensuite shower, a vanity sink, and expansive walk-in wardrobes. Two additional double bedrooms provide flexible accommodation: one benefits from dual-aspect windows that maximize daylight, while the other is pre-wired with Cat 5 cabling to support high-speed connectivity, ideal for remote working or gaming. A beautifully appointed family bathroom features patterned tiled flooring, a freestanding bath, a separate shower, a vanity sink, and a touch-sensitive mirror, while a cleverly designed Jack and Jill shower room adds both convenience and privacy for the family or visiting guests.

The heart of the home is a striking open-plan living, dining, and kitchen area, perfectly designed for modern family life and entertaining. Industrial-style elements provide character and edge, while bi-folding doors extend the space seamlessly into the garden, creating a light-filled, indoor-outdoor living experience. The bespoke kitchen is both stylish and practical, featuring high-gloss base units, warm wooden worktops, a central island, a 4-ring gas hob, and integrated appliances, complemented by a utility room offering additional storage and workspace.

This home is designed to cater to every aspect of modern living. A cinema/TV room with recessed storage offers an immersive entertainment experience. A gym/bedroom four opens via bi-folding doors onto an artificial grass area, perfect for exercise or play. A study/reception room provides a quiet, well-organized workspace. Underfloor heating in the kitchen, office, and gym ensures year-round comfort, while fresh-air circulation and integrated speakers throughout enhance the modern lifestyle experience.

Industrial-style touches, including a striking wooden staircase and bespoke storage solutions, complement the home’s clean lines and contemporary aesthetic. The versatile layout is ideal for both family living and entertaining, providing spaces that adapt seamlessly to every lifestyle need. This property represents a rare opportunity to acquire a thoughtfully designed, light-filled family home with individuality, character, and modern conveniences at every turn.

 


EPC Rating: B

Key Features

  • Architecturally striking entrance with sky lantern and feature glass walkover
  • Luxurious principal suite with bespoke wardrobes and elegant ensuite
  • Three double bedrooms offering flexible, light-filled accommodation
  • Designer family bathroom and Jack & Jill shower room with high-end finishes
  • Impressive open-plan living space perfect for modern family life and entertaining
  • Bespoke kitchen with central island and integrated appliances
  • Seamless indoor-outdoor living via expansive bi-fold doors
  • Dedicated cinema room, gym/fourth bedroom, and private study
  • Premium specification throughout, including underfloor heating, integrated audio, and smart layout
  • PART EXCHANGE CONSIDERED

Property Details

  • Property type: House
  • Property style: Detached
  • Price Per Sq Foot: £306
  • Approx Sq Feet: 2,599 sqft
  • Council Tax Band: G
Please note, property and plot sizes displayed are for guidance purposes only and may have been derived from publicly available information over which neither the agent nor Street.co.uk have control.

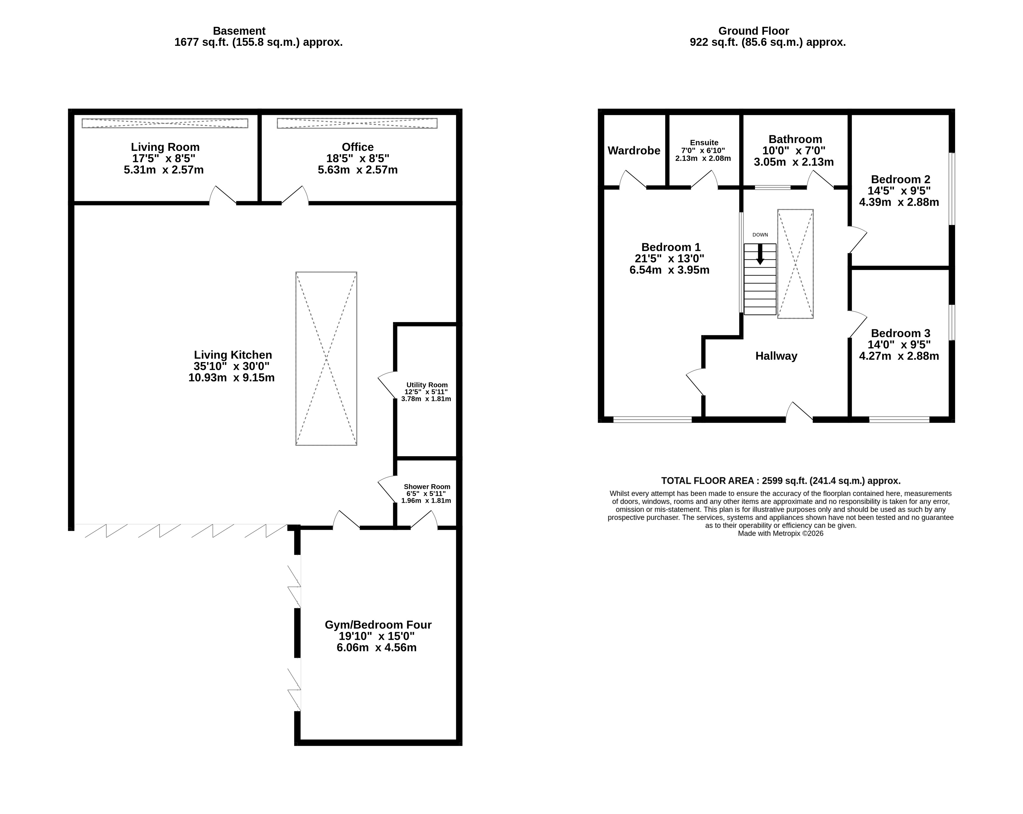
Rooms

Basement

Living Kitchen

10.93m x 9.15m

Office

5.63m x 2.57m

Utility Room

3.78m x 1.11m

Gym/Bedroom Four

6.06m x 4.56m

Shower Room

1.67m x 1.11m

Living Room

5.31m x 2.57m

Ground Floor

Hallway

Bedroom 1

6.54m x 3.15m

En-suite

2.13m x 2.08m

Bedroom 2

4.39m x 2.88m

Bedroom 3

4.27m x 2.88m

Bathroom

3.05m x 2.13m

Floorplans

Outside Spaces

Garden

View Photos

Parking Spaces

Off street

Capacity: N/A

Driveway

Capacity: N/A

On street

Capacity: N/A

Location

Properties you may like

By Shrigley Rose & Co

Disclaimer - Property ID 9ee71f98-096e-4cbd-8de1-5ae129142954. The information displayed about this property comprises a property advertisement. Street.co.uk and Shrigley Rose & Co makes no warranty as to the accuracy or completeness of the advertisement or any linked or associated information, and Street.co.uk has no control over the content. This property advertisement does not constitute property particulars. The information is provided and maintained by the advertising agent. Please contact the agent or developer directly with any questions about this listing.