Book a Viewing

To book a viewing for this property, please call Wilson Estate Agents, on 01246 822 138.

To book a viewing for this property, please call Wilson Estate Agents, on 01246 822 138.

For Sale
£282,500

3 Bedroom Semi Detached House, The Beaumont, Bromley Gardens, Mastin Moor

The Beaumont, Bromley Gardens, Mastin Moor


Wilson Estate Agents Primary Brand brand logo

Wilson Estate Agents

T Wilson Estate Agents Ltd, 24 Market Place

Description

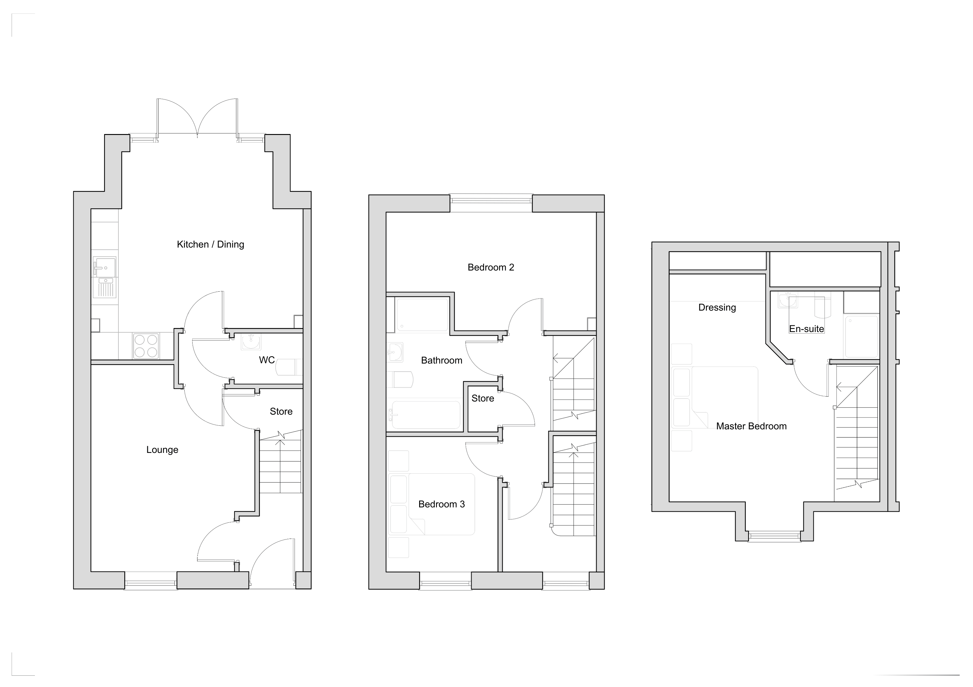
Introducing The Beaumont, an exceptional three-bedroom semi-detached home, forming part of an exclusive development of just 22 bespoke properties. This thoughtfully designed, three-storey home blends contemporary living with energy-efficient features, making it the perfect choice for modern families. Upon entering, you are greeted by a welcoming hallway leading to a spacious open plan kitchen and dining area. The separate lounge provides a comfortable space, while a convenient downstairs WC adds practicality for busy households.

Ascending to the first floor, you will find two generously proportioned bedrooms, each offering ample space, alongside a well-appointed main bathroom featuring full height tiling for a sleek, modern finish. The top floor is dedicated to an impressive principal bedroom, complete with its own dressing area and a stylish ensuite. All bathrooms and ensuites are finished with full height tiling, ensuring a premium feel throughout.

The Beaumont is designed with sustainability and future living in mind, boasting solar panels to enhance energy efficiency and help reduce running costs, as well as an air source heat pump for environmentally conscious heating and hot water. An electric vehicle charging point is also included, ensuring you are ready for the transition to greener travel. High-quality fixtures and fittings are found throughout the home, reflecting the attention to detail and craftsmanship that define this exclusive development. The location offers the perfect balance of tranquillity and connectivity, with countryside walks right on your doorstep and the M1 motorway just minutes away, providing quick and easy links both north and south. Excellent rail connections and nearby airports further enhance the appeal for commuters and those who travel regularly.

Key Features

  • The Beaumont | Three-Bedroom Semi-Detached
  • Exclusive Development Consisting of 22 Bespoke Homes
  • Full Height Tiling In Bathrooms & Ensuites
  • Fitted With Solar Panels To Enhance Energy Efficiency and Reduce Running Costs
  • Future-Ready Home With Electric Vehicle Charging Point
  • Countryside Walks On Your Doorstep
  • M1 Motorway Just Minutes Away, Offering Quick Links North And South, With Nearby Rail Connections And Airports
  • Turfed Gardens
  • Modern Home Featuring An Air Source Heat Pump
  • First Release Now Available

Property Details

  • Property type: House
  • Property style: Semi Detached
  • Price Per Sq Foot: £264
  • Approx Sq Feet: 1,072 sqft
  • Property Age Bracket: New Build
  • Council Tax Band: TBD
Please note, property and plot sizes displayed are for guidance purposes only and may have been derived from publicly available information over which neither the agent nor Street.co.uk have control.

Rooms

Lounge

4.55m x 3.61m

Kitchen/ Dining

4.57m x 4.67m

WC

1.14m x 1.55m

Bedroom 2

2.64m x 4.67m

Bedroom 3

3.02m x 2.49m

Bathroom

3.00m x 2.49m

Principle Bedroom

5.00m x 3.66m

Ensuite

1.52m x 2.44m

Floorplans

Parking Spaces

Driveway

Capacity: 2

Location

Properties you may like

By Wilson Estate Agents

  • The Dolls House, Avenue Road, Chesterfield

    • 4 Beds
    • 3 Bath
    View Property
  • Plot 28, Nuthatch, Welbeck Gardens, Bolsover

    • 3 Beds
    • 2 Bath
    View Property
  • Locko Road, Lower Pilsley, S45

    • 4 Beds
    • 2 Bath
    View Property
  • Creswell Road, Clowne, S43

    • 3 Beds
    • 2 Bath
    View Property
  • Plot 30, Nuthatch, Welbeck Gardens, Bolsover

    • 3 Beds
    • 2 Bath
    View Property
  • Plot 10, The Balmoral, Highstairs Lane, Stretton

    • 4 Beds
    • 2 Bath
    View Property
  • Limes Avenue, Nether Langwith, NG20

    • 3 Beds
    • 2 Bath
    View Property
  • Plot 63, The Farnham, Glapwell Gardens, Glapwell

    • 3 Beds
    • 2 Bath
    View Property
  • Hill Top, Bolsover, S44

    • 2 Beds
    • 1 Bath
    View Property
Disclaimer - Property ID a65210a5-0d7a-479b-a8e7-48e2213bb56e. The information displayed about this property comprises a property advertisement. Street.co.uk and Wilson Estate Agents makes no warranty as to the accuracy or completeness of the advertisement or any linked or associated information, and Street.co.uk has no control over the content. This property advertisement does not constitute property particulars. The information is provided and maintained by the advertising agent. Please contact the agent or developer directly with any questions about this listing.