Book a Viewing

To book a viewing for this property, please call Allen Heritage, on 020 8656 2525.

To book a viewing for this property, please call Allen Heritage, on 020 8656 2525.

For Sale
£1,350,000 Guide Price

Land, Nunhead, Peckham

Nunhead, Peckham


Allen Heritage Primary Brand brand logo

Allen Heritage

Description

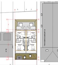
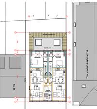
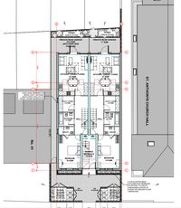
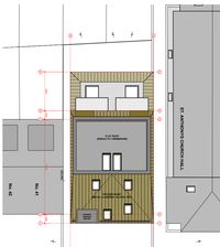
The Approval

Full planning permission was granted on 27 February 2025 for the demolition of the existing detached house and the construction of a new three-storey building comprising four x two-bedroom duplex apartments.

The scheme has been carefully developed to enhance the character of the Nunhead Green Conservation Area.

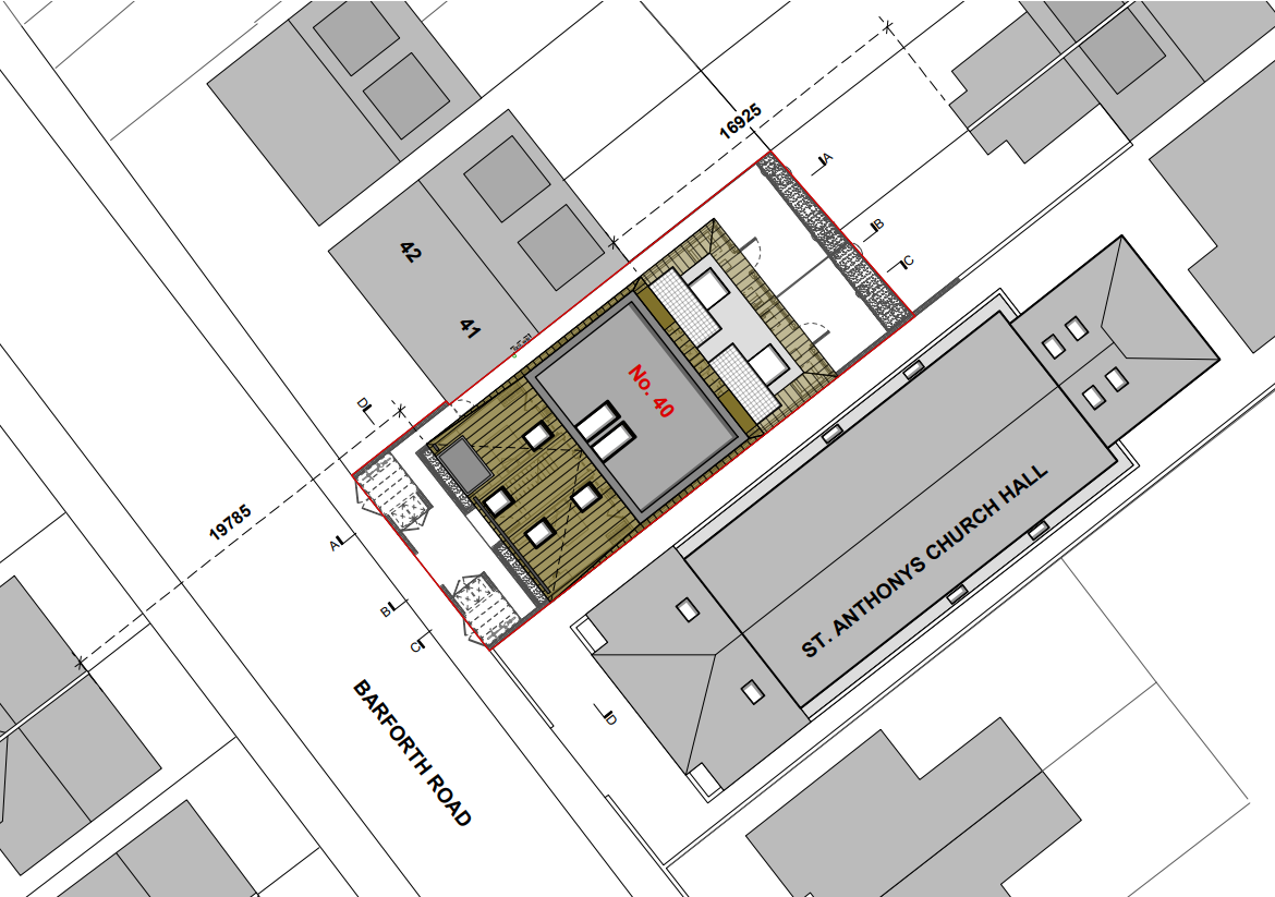
The Current Site

The site area is approximately 269 sqm and is currently occupied by a five-bedroom detached dwelling dating from the 1980s, with a driveway and rear garden. The low-quality nature of the current property presents a strong opportunity for redevelopment.

The property is currently occupied by tenants and will be offered with vacant possession

Viewings: All viewings are strictly by appointment only.

Location:

The site is located in the heart of the Nunhead Green Conservation Area, a desirable South London neighbourhood characterised by Victorian housing and strong community identity. Local amenities include a range of independent shops, cafés, bakeries, and the landmark Old Nun’s Head public house. The wider Peckham area offers an array of restaurants, bars, galleries, and leisure facilities, while Dulwich and Greenwich are within easy reach.

Public transport links are excellent. Nunhead Station (0.4 miles) provides direct services to London Victoria, Blackfriars, and City Thameslink. Peckham Rye Station (0.7 miles) offers both Overground and National Rail services, connecting to London Bridge, Clapham Junction, Shoreditch High Street, and Canary Wharf.

Multiple bus routes further enhance connectivity across South and Central London, making the location highly accessible.


EPC Rating: D

Key Features

  • Full planning approval
  • Attractive residential location with excellent transport links to central London.
  • Scheme designed to enhance the Nunhead Green Conservation Area.
  • Vacant on completion
  • Freehold

Property Details

  • Property type: Land
  • Council Tax Band: E
Please note, property and plot sizes displayed are for guidance purposes only and may have been derived from publicly available information over which neither the agent nor Street.co.uk have control.

Location

Public transport links are excellent. Nunhead Station (0.4 miles) provides direct services to London Victoria, Blackfriars, and City Thameslink. Peckham Rye Station (0.7 miles) offers both Overground and National Rail services, connecting to London Bridge, Clapham Junction, Shoreditch High Street, and Canary Wharf.

Properties you may like

By Allen Heritage

Disclaimer - Property ID a9c4fd56-d20c-4a9e-959d-9fbc6d98181a. The information displayed about this property comprises a property advertisement. Street.co.uk and Allen Heritage makes no warranty as to the accuracy or completeness of the advertisement or any linked or associated information, and Street.co.uk has no control over the content. This property advertisement does not constitute property particulars. The information is provided and maintained by the advertising agent. Please contact the agent or developer directly with any questions about this listing.