Book a Viewing

To book a viewing for this property, please call KnightBain Estate Agents, on 01506 852000.

To book a viewing for this property, please call KnightBain Estate Agents, on 01506 852000.

For Sale
£135,000 Offers Over

3 Bedroom Mid-Terraced House, Pentland View, Uphall, EH52

Pentland View, Uphall, EH52


KnightBain Estate Agents brand logo

KnightBain Estate Agents

Knightbain, 4 Greendykes Road, Broxburn

Description

This well presented three bedroom terrace house offers an ideal opportunity for families or professionals seeking a comfortable and well-appointed home in a popular residential area.

The property features a thoughtfully designed layout, with well proportioned rooms that provide plenty of space for both relaxation and entertaining. Upon entering, you are greeted by a welcoming hallway that leads to a spacious living room, perfect for family gatherings or quiet evenings in. The modern kitchen is fitted with a range of wall and base units, offering ample storage and worktop space, and is complemented by a dining area that easily accommodates a table for family meals.

Upstairs, there are two generous double bedrooms, as well as a third bedroom that can serve as a single room, nursery, or home office. The family bathroom is finished to a high standard, with modern fixtures and fittings. Additional storage is available throughout the property, ensuring a clutter-free environment. This home benefits from a garage, providing extra storage, and is located within walking distance to local transport links, making commuting simple and convenient. The neighbourhood is well regarded, with a strong sense of community and access to a range of local amenities including shops, schools, and leisure facilities.

This property is ideally suited to those looking for a move-in ready home that combines practical features with a warm and inviting atmosphere. Early viewing is highly recommended to fully appreciate the quality and space on offer.


EPC Rating: C

Virtual Tour


Key Features

  • Three Bedroom Terrace House
  • Well Appointed Rooms With Plenty Of Storage
  • Two Double Bedrooms
  • Ideal Family Home
  • Located Within A Popular Residential Area
  • Front & Rear Garden
  • Garage
  • Walking Distance To Local Transport Links

Property Details

  • Property type: House
  • Property style: Mid-Terraced
  • Price Per Sq Foot: £141
  • Approx Sq Feet: 958 sqft
  • Plot Sq Feet: 1,055 sqft
  • Property Age Bracket: 1940 - 1960
  • Council Tax Band: B
Please note, property and plot sizes displayed are for guidance purposes only and may have been derived from publicly available information over which neither the agent nor Street.co.uk have control.

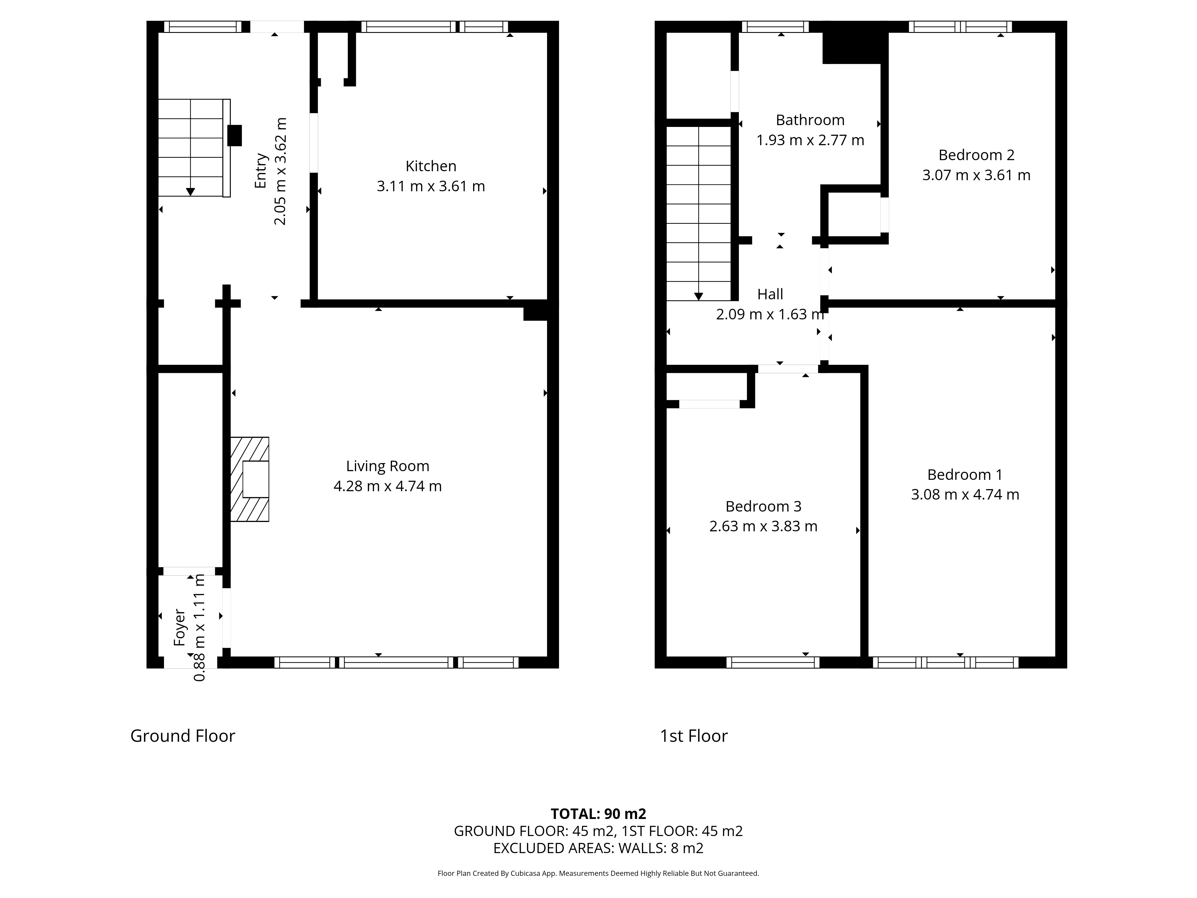
Rooms

Lounge

4.28m x 4.74m

View Lounge Photos

Kitchen/Dining

3.11m x 3.61m

View Kitchen/Dining Photos

Bedroom One

4.74m x 3.08m

View Bedroom One Photos

Bedroom Two

3.67m x 3.01m

View Bedroom Two Photos

Bedroom Three

3.83m x 2.63m

View Bedroom Three Photos

Bathroom

2.77m x 1.93m

View Bathroom Photos

Floorplans

Outside Spaces

Rear Garden

View Photos

Front Garden

View Photos

Parking Spaces

Garage

Capacity: 1

View Photos

On street

Capacity: 1

Location

Uphall is a village in West Lothian. It is 13 miles from the West End of Edinburgh, 6 miles from Edinburgh Airport. Easy access to both Motorways M8 AND M9 Nearest railway station is Uphall Station providing links to Edinburgh, Livingston, Bathgate, Airdrie and Glasgow. Education, Uphall Primary School provides primary education for the community. While there are no facilities for secondary education in Uphall itself, Broxburn Academy serves as the closest secondary school. Community facilities, situated a short walk from Uphall The Strathbrock Partnership Centre is a local community facility that contains a medical centre, library, community museum and community centre. The local hospital is St John’s Hospital at Howden Livingston. Uphall offers several grocery stores, a skatepark, football fields, golf course Uphall Golf Club, bowls club Middleton Hall and a selection of public houses and hotels including the Volunteer Arms, Dovehill Arms, Oatridge Hotel and Houstoun House Hotel.

Properties you may like

By KnightBain Estate Agents

Disclaimer - Property ID a9dc455e-8be3-45b6-833b-1d430ffe7d33. The information displayed about this property comprises a property advertisement. Street.co.uk and KnightBain Estate Agents makes no warranty as to the accuracy or completeness of the advertisement or any linked or associated information, and Street.co.uk has no control over the content. This property advertisement does not constitute property particulars. The information is provided and maintained by the advertising agent. Please contact the agent or developer directly with any questions about this listing.