Book a Viewing

To book a viewing for this property, please call Henry Adams - Chichester, on 01243 533377.

To book a viewing for this property, please call Henry Adams - Chichester, on 01243 533377.

For Sale
£397,000 Guide Price

3 Bedroom Semi Detached House, Gerard Walk, Westhampnett, PO18

Gerard Walk, Westhampnett, PO18


Henry Adams Primary Brand brand logo

Henry Adams - Chichester

Henry Adams LLP, Rowan House Baffins Lane

Description

A modern house offering versatile accommodation.

This modern semi-detached home, offered with vacant possession, provides versatile accommodation arranged over three floors.

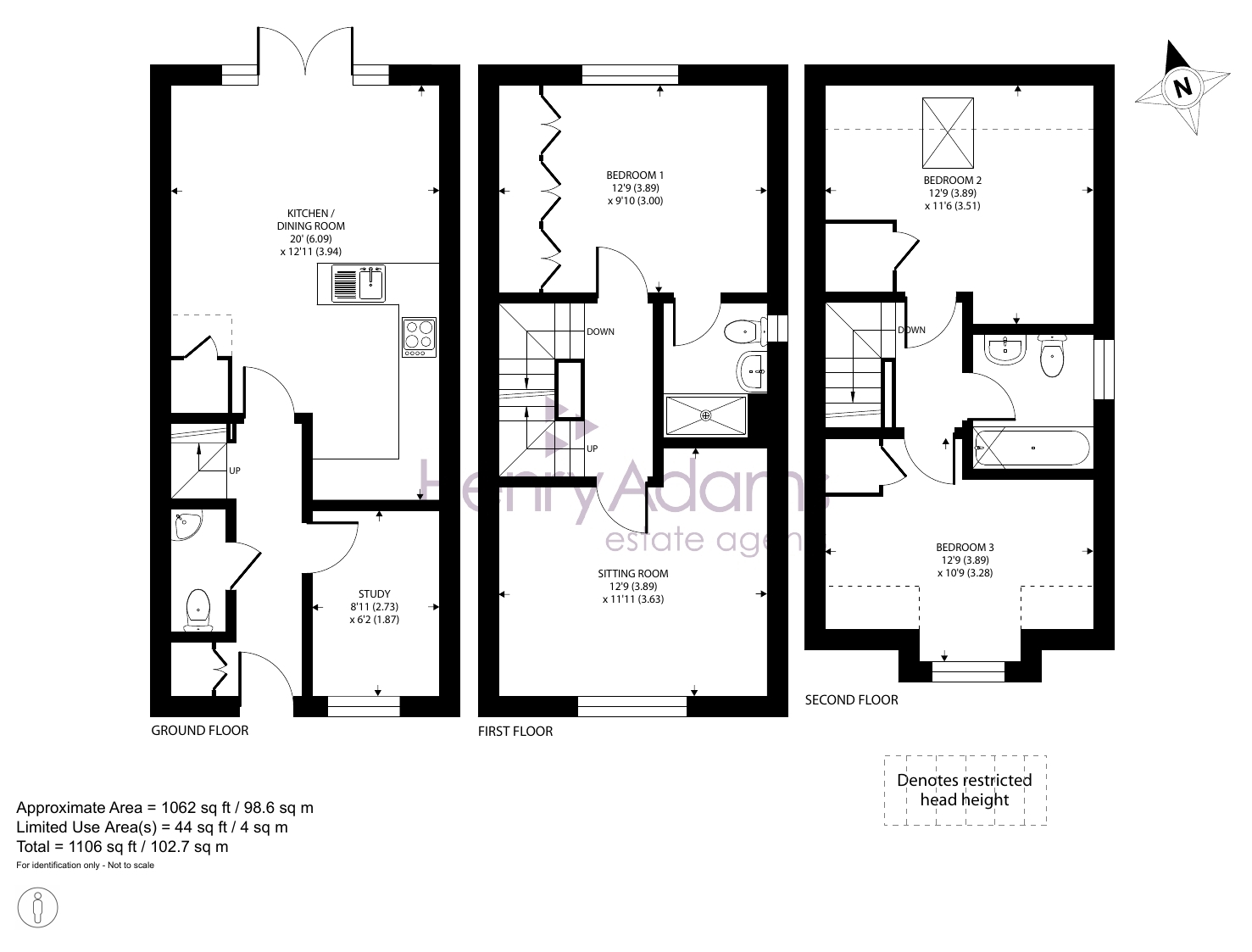
The ground floor features a useful study/bedroom, a cloakroom and an impressive open-plan kitchen/dining room with doors opening to the garden. On the first floor there is a sitting room and principal bedroom with shower room/WC, while the second floor offers two further bedrooms and a well-appointed family bathroom/WC.

Outside, there is a private garden along with allocated parking which can be accessed via the rear gate in the garden,  An ideal home for families or professionals, with viewing highly recommended.

Estate Charge: TBC

Chichester District Council - 25/26 Tax Band E £2,889.39 EPC- B

Directions - Proceed east out of Chichester along St Pancras, at the final roundabout take the first exit off into Madgwick Lane (signposted to Goodwood). Take the first turning on the right into Shelby Drive and then right again into Fairman Road. Take the first turning on the right into Hawthorn Way. Parking for the property is towards the end on the left. There is pedestrian access either through the rear gate (What3words - create.glee.hiding) or proceed on foot to the end of Hawthorn Way and round to the left where No 7 is a short distance along on the left (What3words - fallen.visits.toxic).


EPC Rating: B

Key Features

  • Vacant possession
  • Accommodation arranged over three floors
  • Three/four bedrooms
  • Two reception rooms
  • En-suite shower room and family bathroom
  • Garden
  • Allocated parking

Property Details

  • Property type: House
  • Property style: Semi Detached
  • Price Per Sq Foot: £374
  • Approx Sq Feet: 1,061 sqft
  • Plot Sq Feet: 1,572 sqft
  • Council Tax Band: E
Please note, property and plot sizes displayed are for guidance purposes only and may have been derived from publicly available information over which neither the agent nor Street.co.uk have control.

Floorplans

Outside Spaces

Garden

Parking Spaces

Allocated parking

Capacity: 1

Location

Goodwood is close by with its historic motor racing circuit, airfield and racecourse. The Goodwood Park Hotel with sports and leisure facilities and two superb golf courses, both part of the Duke of Richmond's estate, are just up the road. Chichester offers excellent high street shopping and a wide range of fashionable cafes, restaurants and bars. There is also a wide range of recreational and cultural amenities including the renowned Festival Theatre. There are superb sailing facilities around Chichester Harbour and water sports from the beaches at West Wittering. The area is a paradise for wildlife enthusiasts, with beautiful walks and cycle tracks over the South Downs and around the harbour.

Properties you may like

By Henry Adams - Chichester

Disclaimer - Property ID cd2c2ed1-3b86-4933-8812-ba6f12168b64. The information displayed about this property comprises a property advertisement. Street.co.uk and Henry Adams - Chichester makes no warranty as to the accuracy or completeness of the advertisement or any linked or associated information, and Street.co.uk has no control over the content. This property advertisement does not constitute property particulars. The information is provided and maintained by the advertising agent. Please contact the agent or developer directly with any questions about this listing.