Book a Viewing

To book a viewing for this property, please call Nested Deal, on 01304 251425.

To book a viewing for this property, please call Nested Deal, on 01304 251425.

For Sale
£550,000 Offers in Region of

5 Bedroom Semi Detached House, Golf Road, Deal, CT14

Golf Road, Deal, CT14


Nested Primary Brand brand logo

Nested Deal

Fora, 9 Dallington Street, London

Description

Are you are searching for a spacious home, plus parking, but with no work to do? Then Sea Holly, a newly built modern home and finished to a high specification could be your next easy move? …and all this within in a five-minute walk to the seafront.

Eco-friendly and hi-tech

The property has solar panels, an electric car charging point and a B energy rating. The house has also been fitted with ethernet cables throughout the property so you can enjoy hard wired internet connection in every room, whether that’s for work or entertainment.

So, what else does this chain free property provide?

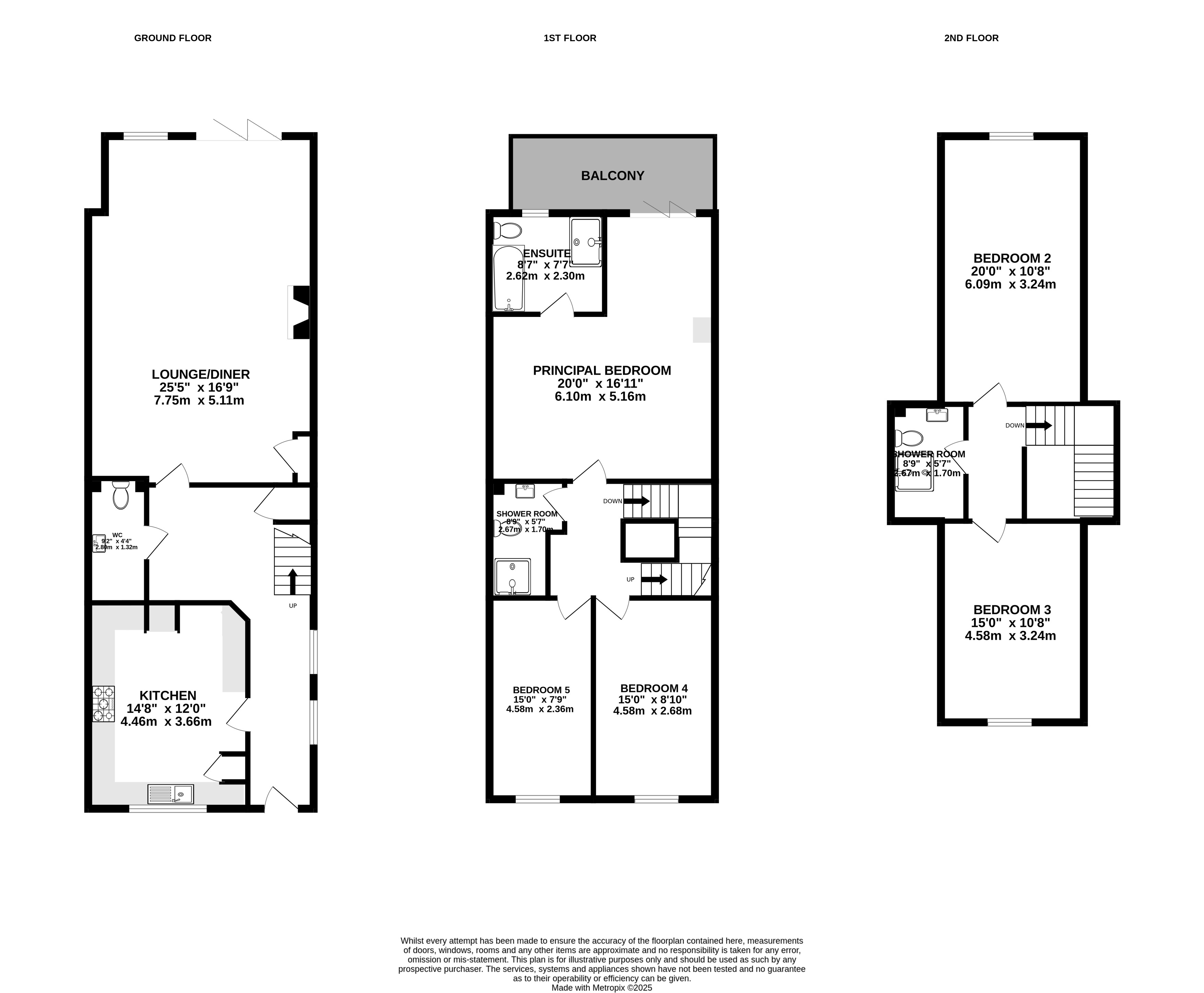
From the large entrance hall, you can enter the fabulous modern kitchen from 2 access points. There’s so much space and storage in the kitchen with integrated fridge and freezer, top of the range built in oven and hob, space for a dishwasher and finished off with a handy breakfast bar.

There is also a useful downstairs utility room with WC and some accessible storage under the staircase.

The enormous lounge, which is nearly 8m in length, will provide plenty of space to entertain, provide a large separate dining area and create a cosy feel as the fireplace is prime to add an open fire or a wood burning stove.

Outside

The bi-fold doors lead you out into the low-maintenance garden with a base prepared ready for a small shed. The side access from the front drive to the rear garden is perfect for dogs and muddy boots. The driveway has space for 2 cars and plenty of easy free street parking too.

First Floor

The principal suite really has it all. There is room for a super king bed, dressing and sitting areas and topped off by being able to enjoy the nearby sea air from your balcony. The modern ensuite is complete with a bath and a shower.

There is also a separate shower room for the two further bedrooms on this floor.

Second Floor

The top floor has two more large double bedrooms with handy storage nooks and another separate shower room, servicing these two bedrooms.

Out and About

Ideally located within 5 minutes walk to the beach and only fifteen minutes walk to the heart of Deal town centre.  Built on Golf Road, there will be no surprise that keen golfers will only be moments away from the nearest club/s.

The traditional character and feel of the ‘smugglers lanes’ have been preserved, surely one reason why this is such a well-loved & popular part of this historic maritime town.

There’s an awful lot of history contained in these higgledy-piggledy streets, plus many fantastic seafood restaurants, independent shops, pubs & cafes. Not to mention a selection of galleries and antique shops which cater for a discerning clientele.

The promenade is great for a brisk morning walk with the sunrise or an evening stroll - it extends around a mile from the north towards the golf club or south down to Walmer.  

If you prefer country walks and historic sites to strolls along the prom, there’s plenty of choice nearby, including Walmer Castle and the nearby Deal battlements.

For those who favour walks over immaculately mowed fairways and manicured greens, there’s the Royal Cinque Ports, Princes Golf Club and Walmer & Kingsdown golf clubs. 

Royal St George’s, Sandwich (which has hosted 15 Open Championships, dating back to 1894) is less than a 15-minute drive away.

This coastal location means both the port at Dover and the Eurotunnel terminal at Folkestone are also only a short drive away.

This perfect, chain free, blank canvas is ready to move straight into.   

Don’t miss out on this opportunity to own a large, modern, eco-friendly property that’s close to the sea and shops. Call me now to arrange a viewing.

Anti-money Laundering Checks (AML)

Regulations require us to conduct identity and AML checks and gather information about every buyer's financial circumstances. These checks are essential in fulfilling our Customer Due Diligence obligations, which must be done before any property can be marked as sold subject to contract. The rules are set by law and enforced by trading standards.

We will start these checks once you have made a provisionally agreeable offer on a property. The cost is £60.00(including VAT). This fee covers the expense of obtaining relevant data and any necessary manual checks and monitoring. It's paid in advance via our onboarding system, Kotini, and is non-refundable.


EPC Rating: B

Virtual Tour


Key Features

  • CHAIN FREE
  • 5 Bedrooms
  • 3 Bathrooms
  • Solar Panels
  • Car Charging Point
  • Ethernet Cabling Throughout
  • Driveway
  • 5 Minute Walk to Beach

Property Details

  • Property type: House
  • Property style: Semi Detached
  • Price Per Sq Foot: £262
  • Approx Sq Feet: 2,099 sqft
  • Plot Sq Feet: 3,049 sqft
  • Property Age Bracket: New Build
  • Council Tax Band: D
Please note, property and plot sizes displayed are for guidance purposes only and may have been derived from publicly available information over which neither the agent nor Street.co.uk have control.

Floorplans

Outside Spaces

Rear Garden

11.70m x 6.00m

Lo-maintenance rear garden with side access to the front driveway. Balcony overlooking the rear garden from the Principle Bedroom.

View Photos

Parking Spaces

Driveway

Capacity: 2

View Photos

Location

Ideally located within 5 minutes walk to the beach and only fifteen minutes walk to the heart of Deal town centre. Built on Golf Road, there will be no surprise that keen golfers will only be moments away from the nearest club/s.

Properties you may like

By Nested Deal

Disclaimer - Property ID ce976935-0db4-40ce-9cd5-419593fd8855. The information displayed about this property comprises a property advertisement. Street.co.uk and Nested Deal makes no warranty as to the accuracy or completeness of the advertisement or any linked or associated information, and Street.co.uk has no control over the content. This property advertisement does not constitute property particulars. The information is provided and maintained by the advertising agent. Please contact the agent or developer directly with any questions about this listing.