Book a Viewing

To book a viewing for this property, please call Browns, on 02080640111.

To book a viewing for this property, please call Browns, on 02080640111.

To Let
£1,450 pcm

1 Bedroom Semi Detached Maisonette, Capel Road, Watford, WD19

Capel Road, Watford, WD19


Browns brand logo

Browns

Unit 18 WOW Workspaces, Sandown Road, Hertfordshire

Description

A rare opportunity to occupy a beautifully refurbished one-bedroom ground-floor apartment in the sought-after Oxhey Village, perfectly blending period character with contemporary style. Set on a street lined with charming Edwardian terraces, this home offers a prime location just moments from Bushey Station, with direct 17-minute trains to London Euston – the perfect mix of village tranquillity and city convenience.

Behind its classic bay-fronted façade, the apartment opens into a spacious hallway that leads into the bright and airy open-plan kitchen diner – newly fitted with sleek cabinetry, quality appliances, and a modern layout designed for both cooking and entertaining. The principal bedroom is a generous retreat where French doors flow seamlessly to the private garden, creating an ideal setting for alfresco dining or a peaceful morning coffee. Completing the interior is a contemporary bathroom, styled with crisp finishes for a fresh, timeless look.

Externally, the property benefits from off-street parking for one car – a rare and valuable addition in this central location.


EPC Rating: D

Key Features

  • Exceptional one-bedroom, ground-floor maisonette in Oxhey Village.
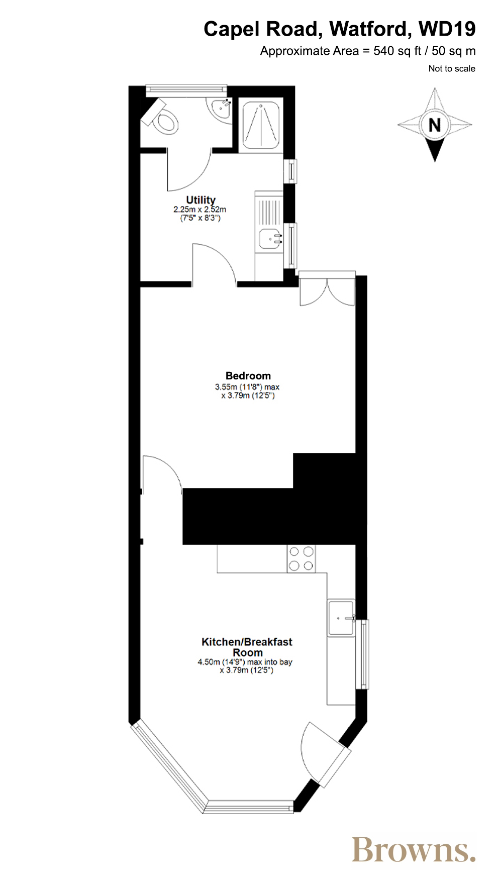
  • 540 sq.ft. of well-designed living space.
  • Prime location among elegant Edwardian terraces.
  • Striking bay window showcasing the property’s heritage.
  • Versatile layout adaptable to individual needs.
  • Blend of period character and modern comfort.
  • Short walk to Bushey Station.
  • Fast 17-minute direct train to London Euston.
  • Ideal combination of suburban tranquillity and city access.
  • Private garden and off-street parking for one vehicle.

Property Details

  • Property type: Maisonette
  • Property style: Semi Detached
  • Approx Sq Feet: 538 sqft
  • Plot Sq Feet: 538 sqft
  • Property Age Bracket: Edwardian (1901 - 1910)
  • Council Tax Band: TBD
  • Tenure: Share of Freehold
  • Lease Expiry: -
  • Ground Rent:
  • Service Charge: Not Specified
Please note, property and plot sizes displayed are for guidance purposes only and may have been derived from publicly available information over which neither the agent nor Street.co.uk have control.

Floorplans

Outside Spaces

Garden

Parking Spaces

Driveway

Capacity: 1

Location

Properties you may like

By Browns

  • £1,450 pcm

    Capel Road, Watford, WD19

    • 1 Beds
    • 1 Bath
    View Property
Disclaimer - Property ID d28eaf73-cd37-4a1f-9464-9844f8d67e62. The information displayed about this property comprises a property advertisement. Street.co.uk and Browns makes no warranty as to the accuracy or completeness of the advertisement or any linked or associated information, and Street.co.uk has no control over the content. This property advertisement does not constitute property particulars. The information is provided and maintained by the advertising agent. Please contact the agent or developer directly with any questions about this listing.