Book a Viewing

To book a viewing for this property, please call Miles & Barr, on 01843 231 222.

To book a viewing for this property, please call Miles & Barr, on 01843 231 222.

For Sale
£170,000 In Excess of

2 Bedroom Flat, Clarendon Road, Turner Court Clarendon Road, CT9

Clarendon Road, Turner Court Clarendon Road, CT9


M&B Core brand logo

Miles & Barr

155-157 Northdown Road, Cliftonville

Description

For sale by Modern Method of Auction; Starting Bid Price £170,000 plus Reservation Fee.

Miles and Barr present this two bedroom top floor apartment offering stunning distant views across Margate!

Situated in Clarendon Road, you are within a short walk to local amenities, bus routes and highly rated primary schools.

In brief, the property comprises of an entrance hallway, large lounge with access to a balcony, two bedrooms, family bathroom and kitchen.

This property is one not to be missed, please call sole agents Miles and Barr to organise your viewing today.

These details are yet to be approved by the vendor.

Location Summary

Margate is a fantastic seaside town and contains the areas of Cliftonville, Garlinge, Palm Bay and Westbrook. The energy surrounding Margate is excellent, it holds the likes of a world class Art Gallery, the UK's original pleasure park 'Dreamland', fast Rail links into London and of course not forgetting the stunning sandy beaches and sparkling bays. You are within a 10 minute drive to the neighbouring towns which are Broadstairs, Ramsgate and Birchington. There are also good road links to London via the A299 Thanet Way and M2 Motorway.

Auctioneer Comments:

This property is for sale by Modern Method of Auction allowing the buyer and seller to complete within a 56 Day Reservation Period. Interested parties’ personal data will be shared with the Auctioneer (iamsold Ltd). If considering a mortgage, inspect and consider the property carefully with your lender before bidding. A Buyer Information Pack is provided. The buyer will pay £300 inc VAT for this pack which you must view before bidding. The buyer signs a Reservation Agreement and makes payment of a Non-Refundable Reservation Fee of 4.2% of the purchase price inc VAT, subject to a minimum of £7,080 inc VAT. This Fee is paid to reserve the property to the buyer during the Reservation Period and is paid in addition to the purchase price. The Fee is considered within calculations for stamp duty. Services may be recommended by the Agent/Auctioneer in which they will receive payment from the service provider if the service is taken. Payment varies but will be no more than £450. These services are optional.


EPC Rating: E

Key Features

  • For Sale by Modern Auction T & C’s apply
  • Subject to Reserve Price
  • Buyers fees apply
  • The Modern Method of Auction
  • Two Bedroom Apartment
  • Close to Amenities
  • Rooftop Views
  • Balcony

Property Details

  • Property type: Flat
  • Price Per Sq Foot: £268
  • Approx Sq Feet: 634 sqft
  • Plot Sq Feet: 4,413 sqft
  • Council Tax Band: A
  • Tenure: Leasehold
  • Lease Expiry: 22/11/2112
  • Ground Rent:
  • Service Charge: £1,800.00 per month
Please note, property and plot sizes displayed are for guidance purposes only and may have been derived from publicly available information over which neither the agent nor Street.co.uk have control.

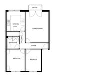
Rooms

Entrance

Door to:

Entrance Hall

Leading to:

Living Rom/Dining Rom

4.85m x 3.59m

Kitchen

3.01m x 2.83m

Bathroom

1.89m x 1.89m

Bedroom

3.28m x 2.86m

Bedroom

3.28m x 2.40m

Floorplans

Outside Spaces

Garden

Parking Spaces

Garage en bloc

Capacity: 1

Location

Properties you may like

By Miles & Barr

  • Danesmead Terrace, Margate, CT9

    • 3 Beds
    • 1 Bath
    View Property
  • Grove Gardens, Margate, CT9

    • 4 Beds
    • 2 Bath
    View Property
  • Lynton Court Mansions, 93C Eastern Esplanade, CT9

    • 2 Beds
    • 1 Bath
    View Property
  • Surrey Road, Cliftonville, CT9

    • 2 Beds
    • 1 Bath
    View Property
  • Westfield Road, Margate, CT9

    • 4 Beds
    • 2 Bath
    View Property
  • Richborough Close, Margate, CT9

    • 3 Beds
    • 2 Bath
    View Property
  • Canterbury Road, Charlotte Court The Royal Seabathing Canterbury Road, CT9

    • 3 Beds
    • 2 Bath
    View Property
  • Dalby Square, Cliftonville, CT9

    • 2 Beds
    • 1 Bath
    View Property
  • Byron Avenue, Margate, CT9

    • 2 Beds
    • 1 Bath
    View Property
Disclaimer - Property ID d400e6b4-0fef-47a6-8f78-da30c8a44599. The information displayed about this property comprises a property advertisement. Street.co.uk and Miles & Barr makes no warranty as to the accuracy or completeness of the advertisement or any linked or associated information, and Street.co.uk has no control over the content. This property advertisement does not constitute property particulars. The information is provided and maintained by the advertising agent. Please contact the agent or developer directly with any questions about this listing.