2 Bedroom End of Terrace House, Carmen Street, Great Chesterford, CB10
Carmen Street, Great Chesterford, CB10
.png)
Pottrill Holland Property Agents
12 Railey Road, Saffron Walden
Description
Viewing Day Saturday 11th October 10am to 11:30am - Viewings By Appointment Only
Gramaur Cottage is a delightful two-bedroom period home, available CHAIN FREE, tucked away in the heart of Great Chesterford. Blending original charm with a contemporary finish, it offers the perfect first step onto the property ladder, with excellent village amenities and superb commuter connections close at hand.
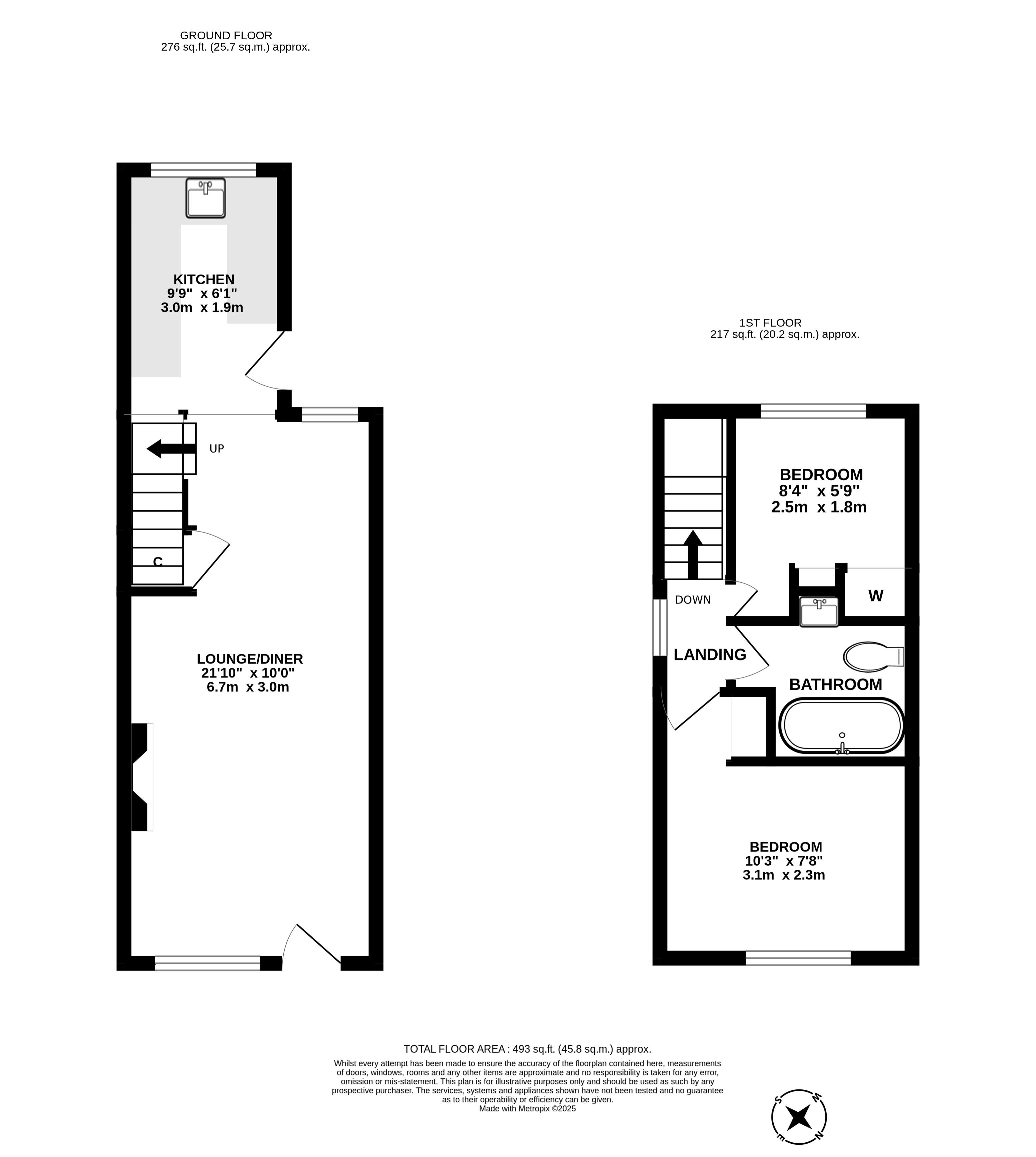
The cottage opens into a light and welcoming lounge/diner, a versatile space with exposed beams, a feature fireplace housing a woodburner, and plenty of room for both seating and dining. The flow of the ground floor makes everyday living effortless, with a dining nook leading through to the kitchen at the rear. Styled with shaker cabinetry, timber worktops, and a farmhouse sink, the kitchen is both practical and characterful, with access out to a private, low-maintenance courtyard garden – perfect for summer evenings or entertaining friends.
Upstairs, two bedrooms provide comfortable accommodation. The main double bedroom is bright and well-presented, while the second bedroom is currently used as a study and snug, making it ideal as a home office, nursery, or guest room. The bathroom is fitted with a contemporary white suite, including a shower over bath and modern tiling.
Location is one of Gramaur Cottage’s biggest draws. The property is just a short walk from Great Chesterford station, offering direct links to London Liverpool Street and Cambridge. The soon-to-open Cambridge South station at Addenbrooke’s Hospital will add even greater appeal for professionals. Excellent road links via the M11 ensure wider connections are also easily accessible.
The village itself is highly regarded, with a local shop, two pubs, a primary school, and plenty of countryside walks. Saffron Walden and Cambridge are both within easy reach for shopping, dining, and leisure.
For first-time buyers seeking charm, convenience, and community, Gramaur Cottage is a home to fall in love with.
Agents Notes:
Tenure: Freehold
EPC Band D
Uttlesford District Council - Tax Band A - £1,500.06pa
All Mains Services Connected
Mobile Coverage: Good Outdoor Coverage Across All Major Networks, Mixed Indoor Coverage (Ofcom)
Broadband Coverage: Ultrafast Available, 1,000 Mbps (Ofcom)
Location:
Great Chesterford is a historic village and civil parish in Uttlesford, Essex, England, which is located near the River Cam. The village features numerous listed buildings, a Congregational church, and a primary school. It is conveniently connected by the Great Chesterford railway station and the M11 motorway. The village maintains its rural charm while being in close proximity to larger towns such as Saffron Walden and Cambridge, providing a blend of historical appeal and modern conveniences.
EPC Rating: D
Virtual Tour
Key Features
- Viewing Day Saturday 11th October 10am to 11:30am
- Charming two-bedroom period cottage with character features
- Cosy lounge/diner with wood-burning stove and exposed beams
- Modern shaker-style kitchen with farmhouse sink and timber worktops
- Contemporary bathroom with shower over bath
- Private, low-maintenance courtyard garden ideal for entertaining
- Short walk to Great Chesterford station with direct links to London, Cambridge and soon-to-open Cambridge South
Property Details
- Property type: House
- Price Per Sq Foot: £616
- Approx Sq Feet: 527 sqft
- Plot Sq Feet: 700 sqft
- Property Age Bracket: Pre-Georgian (pre 1710)
- Council Tax Band: A
Floorplans
Outside Spaces
Garden
Parking Spaces
On street
Capacity: N/A
Location
Great Chesterford is a historic village and civil parish in Uttlesford, Essex, England, which is located near the River Cam. The village features numerous listed buildings, a Congregational church, and a primary school. It is conveniently connected by the Great Chesterford railway station and the M11 motorway. The village maintains its rural charm while being in close proximity to larger towns such as Saffron Walden and Cambridge, providing a blend of historical appeal and modern conveniences.
Properties you may like
By Pottrill Holland Property Agents