Book a Viewing

To book a viewing for this property, please call Henry Adams - Chichester, on 01243 533377.

To book a viewing for this property, please call Henry Adams - Chichester, on 01243 533377.

For Sale
£395,000 Guide Price

3 Bedroom End of Terrace House, Duncan Road, Chichester, PO19

Duncan Road, Chichester, PO19


Henry Adams Brand LLP brand logo

Henry Adams - Chichester

Henry Adams LLP, Rowan House Baffins Lane

Description

A bright and spacious end of terrace house in a popular and convenient location.

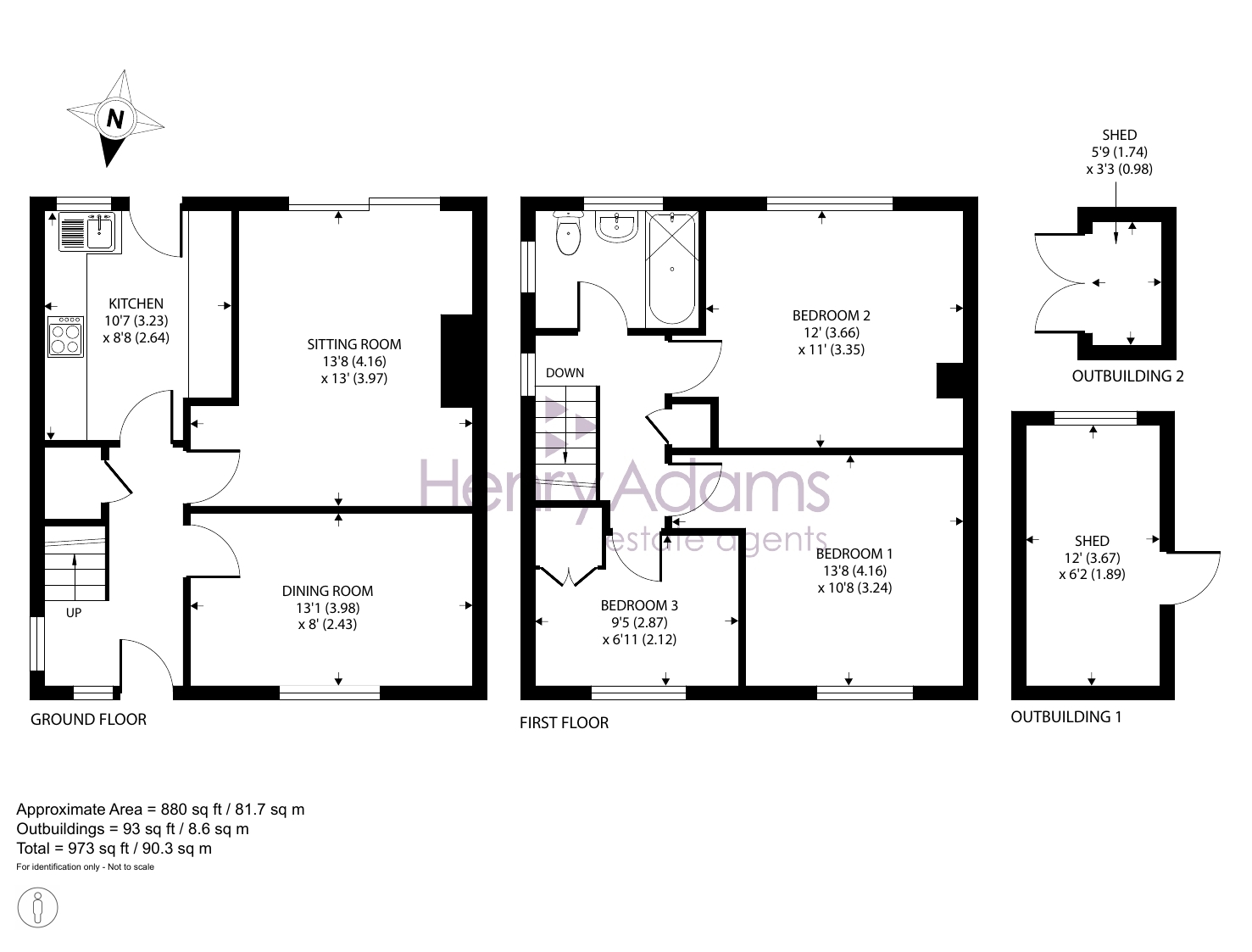
This bright and spacious three-bedroom end-terraced house is ideally situated just one mile north-west of the city centre, offering convenience and comfort in a popular residential location. The property is set behind a half tile-hung front elevation and benefits from a driveway providing off-road parking for two cars, along with side pedestrian access.

Inside, a well-proportioned entrance hall leads to the south-facing sitting room, which enjoys an abundance of natural light and features sliding patio doors opening directly onto the rear garden. A separate dining room provides additional space for family meals or entertaining, while the fitted kitchen comes complete with an integrated electric cooker, gas hob, cooker hood, fridge and freezer.

Upstairs, there are three good-sized bedrooms and a family bathroom fitted with an electric shower over the bath.

The south-facing rear garden is a particular feature of the property, offering generous patio areas and a lawn, perfect for outdoor living. A brick-built shed provides useful storage.

With no onward chain, this home represents an excellent opportunity for buyers seeking space, light, and a well-connected location close to the city centre.

Chichester District Council - 25/26 Tax Band C £2,077.38 EPC-C

Directions - From the Northgate circulatory system, proceed north west along St Pauls Road (B2178). Pass Parklands Road on your left and proceed up the hill and take the next turning on your left into Sherborne Road. Take the second turning on the left into Duncan Road and number 28 is on right after Bell Close. what3words - chop.refers.edit


EPC Rating: C

Key Features

  • 880 sqft end terraced house
  • Two reception rooms
  • Three bedrooms
  • Large south facing rear garden
  • Off-road parking for two cars
  • Handy for local shopping parade and primary schools
  • No onward chain

Property Details

  • Property type: House
  • Property style: End of Terrace
  • Price Per Sq Foot: £442
  • Approx Sq Feet: 893 sqft
  • Plot Sq Feet: 2,648 sqft
  • Council Tax Band: C
Please note, property and plot sizes displayed are for guidance purposes only and may have been derived from publicly available information over which neither the agent nor Street.co.uk have control.

Floorplans

Outside Spaces

Garden

Parking Spaces

Driveway

Capacity: 2

Location

The sought after Parklands area of Chichester is close to countryside and the Centurion Way cycle path, linking West Dean and Chichester. Nearby is a parade of local shops, primary and secondary schools. The city centre of Chichester offers excellent high street shopping, many fashionable restaurants, cafes and bars, Festival Theatre and a mainline station to London Victoria. Goodwood is famous for its many event days including the world renowned Festival of Speed and Goodwood Revival for motor racing enthusiasts and a season of horse racing including the Qatar Goodwood Festival . There are excellent sailing facilities around Chichester Harbour and water sports from the beaches at West Wittering. The area is a paradise for wildlife enthusiasts, with beautiful walks and cycle tracks over the South Downs and around the harbour.

Properties you may like

By Henry Adams - Chichester

Disclaimer - Property ID e58f03f8-5de3-4195-a84f-e13f7038c382. The information displayed about this property comprises a property advertisement. Street.co.uk and Henry Adams - Chichester makes no warranty as to the accuracy or completeness of the advertisement or any linked or associated information, and Street.co.uk has no control over the content. This property advertisement does not constitute property particulars. The information is provided and maintained by the advertising agent. Please contact the agent or developer directly with any questions about this listing.