Book a Viewing

To book a viewing for this property, please call Story of Home, on 0207 867 3999.

To book a viewing for this property, please call Story of Home, on 0207 867 3999.

For Sale
£5,850,000

3 Bedroom House, Bermondsey, SE1

Bermondsey, SE1


Story of Home brand logo

Story of Home

175 Wardour Street, London

Description

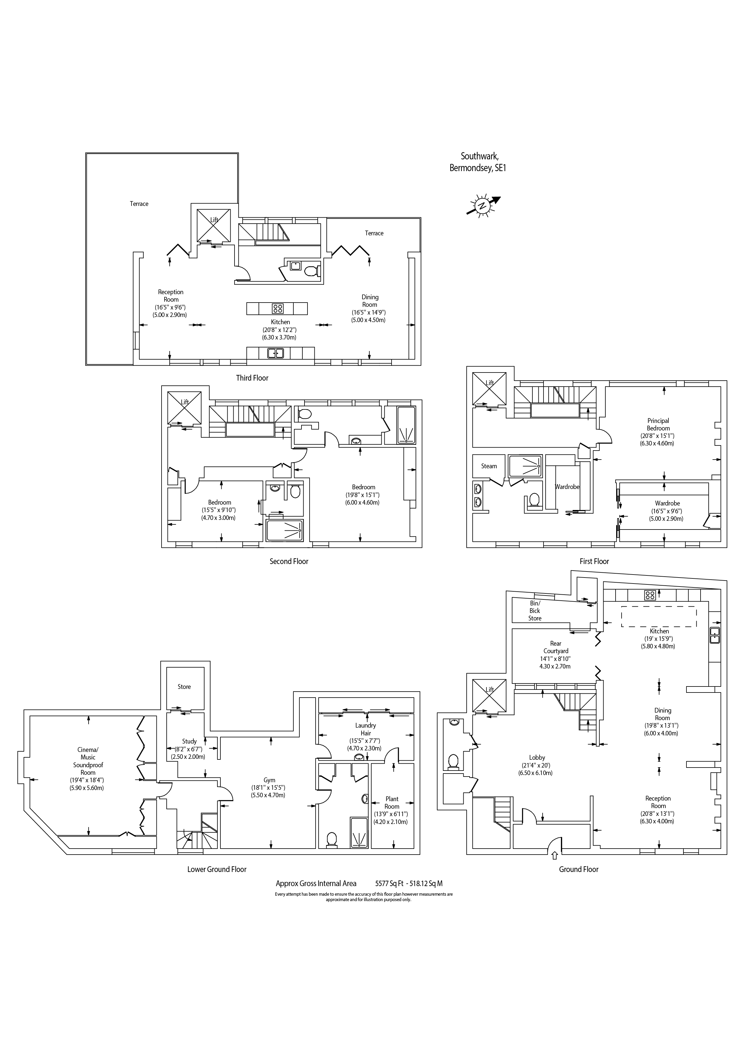
Just moments from Bermondsey Street, this remarkable three-bedroom home is a study in architectural craftsmanship and contemporary design. Reimagined by Danish designer Nana Friborg, this five-storey house is a celebration of form and function and provides a space where light, materiality and proportion come together in quiet harmony.

A centrally positioned, sculptural staircase sweeps upwards through the building, connecting one level to the next with each floor unfolding with deliberate rhythm. On the ground floor, a refined reception space provides effortless open plan living. A large Maria Elia designed kitchen with central island opens out onto an internal courtyard complete with barbeque and fire pit. A banquette style dining area separates the kitchen from the open sitting room. At lower ground level, stairs descend to a large gym and wellness area with steam shower, accompanied by a soundproofed cinema or music studio and separate laundry and hair salon.

Extending along the graceful curve of the sweeping staircase, the first floor is devoted entirely to the principal suite. A generous bedroom, walk-through dressing area, and mosaic-lined ensuite with private steam room create a quiet retreat from the city. Above, two further ensuite bedrooms echo the same calm precision, each defined by Friborg’s trademark restraint and tactile simplicity.

At the top of the home, the atmosphere shifts with a light washed open-plan reception space embracing both indoor-outdoor living. A second Maria Elia designed kitchen opens onto twin roof terraces, each with a barbeque and fire pit, that invite evenings spent outdoors beneath the London skyline. The centrally positioned kitchen divides the reception and dining areas, ensuring even the largest gatherings flow with ease.

Tucked between Bermondsey Street and Long Lane, this is a quiet pocket of SE1 where historic warehouses meet contemporary design. Bermondsey Street is one of the capital’s most vibrant neighbourhoods, alive with independent cafés, creative studios, design galleries and small restaurants that have made it a true destination for those in the know.

For food lovers, Borough Market is a ten-minute walk away providing seasonal produce, artisan bakers and roasters, and a place to spend slow Saturday mornings. Nearby, Maltby Street Market adds a more local flavour, its railway arches home to small traders, microbreweries and street-food stalls that capture Bermondsey’s creative energy.

Cultural life is just as close with the Tate Modern, Shakespeare’s Globe and the Southbank Centre sit within easy reach, offering world-class art and performance against the backdrop of the Thames. London Bridge station is less than ten minutes on foot, giving access to the Northern and Jubilee lines, as well as easy National Rail services to Gatwick, Brighton and other Southeast locations.


EPC Rating: B

Key Features

  • Two open plan reception rooms
  • Maria Elia designed kitchen
  • Cinema and/or Music studio
  • Lift to all floors
  • Courtyard garden
  • Twin roof terraces
  • Bike storage and secure parking
  • Close to London Bridge station
  • Unique location within Bermondsey

Property Details

  • Property type: House
  • Price Per Sq Foot: £1,049
  • Approx Sq Feet: 5,577 sqft
  • Plot Sq Feet: 2,831 sqft
  • Property Age Bracket: 2020s
  • Council Tax Band: G
Please note, property and plot sizes displayed are for guidance purposes only and may have been derived from publicly available information over which neither the agent nor Street.co.uk have control.

Floorplans

Parking Spaces

Secure gated

Capacity: 2

Location

Properties you may like

By Story of Home

Disclaimer - Property ID e76c4338-191a-4bda-91bb-f2904d461358. The information displayed about this property comprises a property advertisement. Street.co.uk and Story of Home makes no warranty as to the accuracy or completeness of the advertisement or any linked or associated information, and Street.co.uk has no control over the content. This property advertisement does not constitute property particulars. The information is provided and maintained by the advertising agent. Please contact the agent or developer directly with any questions about this listing.