Book a Viewing

To book a viewing for this property, please call Louis & Co, on 01622 600333.

To book a viewing for this property, please call Louis & Co, on 01622 600333.

For Sale
£175,000

Property, College Avenue, College Place College Avenue, ME15

College Avenue, College Place College Avenue, ME15


Louis & Co Primary Brand brand logo

Louis & Co

85 King Street, Kent

Description

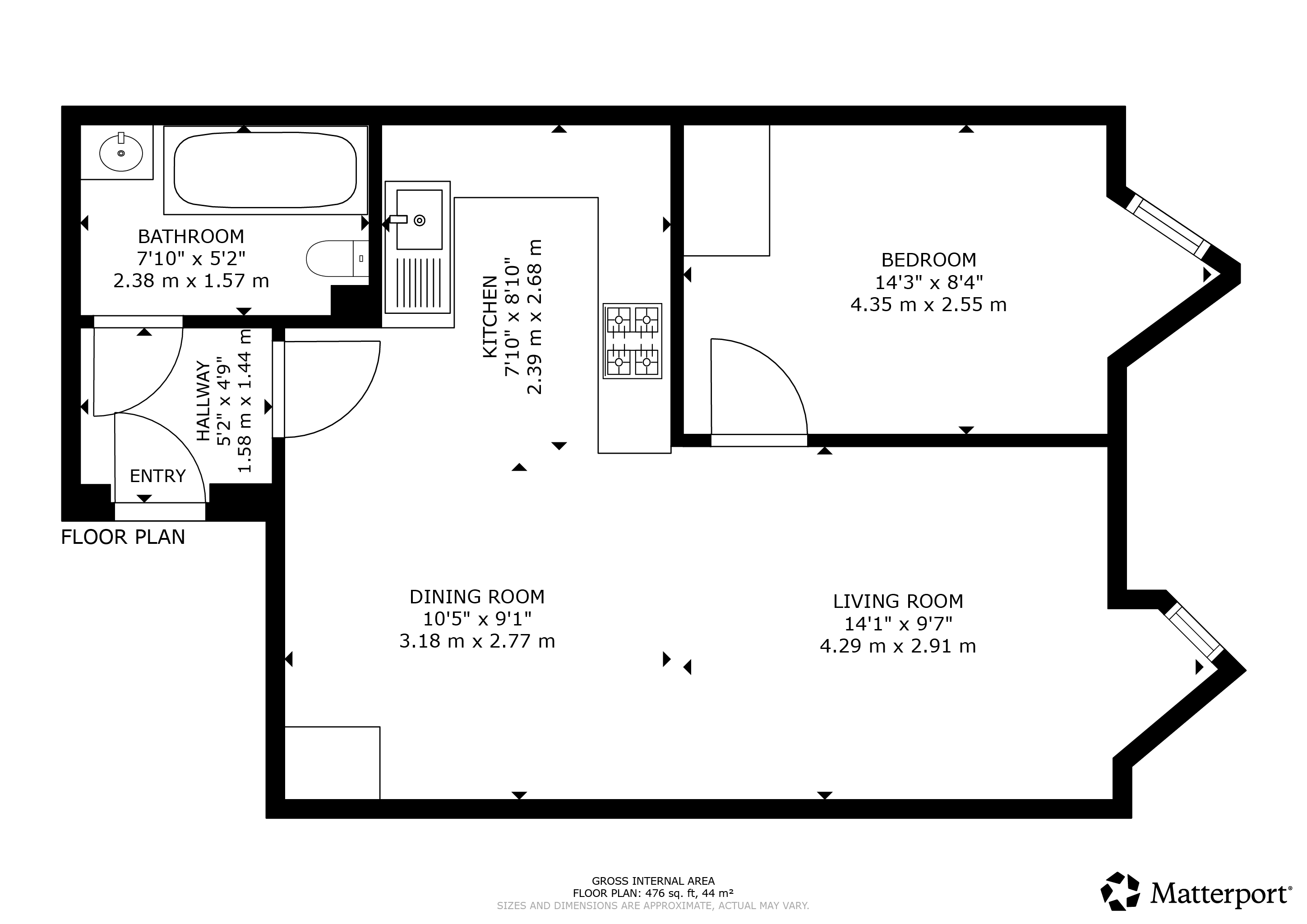
Louis and Co are delighted to bring to market this one bedroom ground floor apartment on College Avenue in the centre of Maidstone.

The accommodation comprises:

entrance lobby: with laminate floor

Lounge/kitchen/dining room: L-shaped room with kitchen with wall and floor mounted kitchen units with integrated sink, oven, hob, extractor hood and washing machine, laminate floor

Bedroom: double bedroom with carpet to floor

Bathroom: with shower over bath, part tiled walls, vinyl to floor

The property comes with an allocated parking space in the car park to the rear of the property accessed via an archway.

The property is being offered on the remainder of a 999 year lease from 2017.

We have been advised that the most recent Service Charge is £103 per month and the ground rent is £250 per annum.


EPC Rating: B

Key Features

  • Ground floor 1 bedroom apartment
  • College Avenue location - cul-de-sac close to river in centre of town
  • Allocated parking space
  • Small development
  • Long lease
  • Open plan kitchen/dining area/lounge

Property Details

  • Property type: House
  • Price Per Sq Foot: £332
  • Approx Sq Feet: 527 sqft
  • Plot Sq Feet: 926 sqft
  • Council Tax Band: C
  • Tenure: Leasehold
  • Lease Expiry: 03/09/3016
  • Ground Rent: £250.00 per year
  • Service Charge: Not Specified
Please note, property and plot sizes displayed are for guidance purposes only and may have been derived from publicly available information over which neither the agent nor Street.co.uk have control.

Floorplans

Parking Spaces

Allocated parking

Capacity: 1

Location

College Avenue is a cul-de-sac in the centre of Maidstone, close to the River Medway and within walking distance of the shops and leisure facilities and Maidstone East and West train stations.

Properties you may like

By Louis & Co

Disclaimer - Property ID ee0e34b1-a79a-47c3-af1a-d99f9adcd2ed. The information displayed about this property comprises a property advertisement. Street.co.uk and Louis & Co makes no warranty as to the accuracy or completeness of the advertisement or any linked or associated information, and Street.co.uk has no control over the content. This property advertisement does not constitute property particulars. The information is provided and maintained by the advertising agent. Please contact the agent or developer directly with any questions about this listing.