Land, Development Opportunity - Moor Oaks Road, Broomhill - Sheffield S10

Development Opportunity - Moor Oaks Road, Broomhill - Sheffield S10

Description


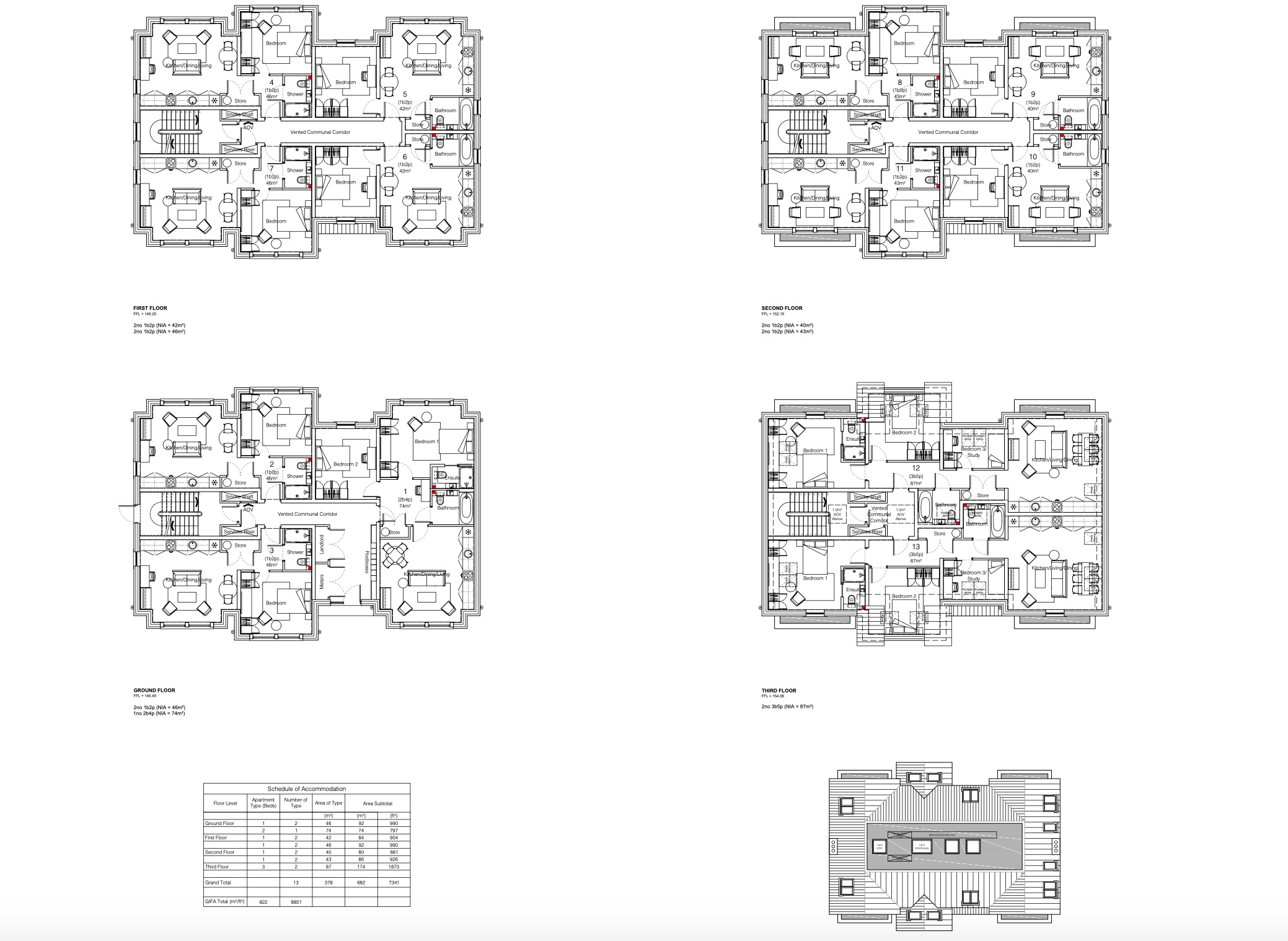
Development Opportunity - a unique opportunity has arisen to purchase land with full planning permission for 13 new build apartments with 11 parking spaces in an unrivalled location in S10.

Situated within walking distance from the leafy suburb of Broomhill which has a variety of independent shops, bars and restaurants. This premium location opens up an abundant pool of end users - both investors and homeowners due to it's close proximity to Sheffield's hospitals, Universities and city centre.

The current planning at Moor Oaks Road is for a combination of 1, 2 and 3 bedroom apartments set across 4 storeys and has an estimated GDV opportunity of circa £2.98 million.

Planning Reference - 21/01694/FUL

Contact Redbrik Land & New Homes for further information.

Key Features

  • Development Opportunity
  • Full Planning Permission Granted
  • Planning For 13 Apartments With Parking - 1, 2 & 3 Bedroom Apartments
  • Moor Oaks Road - Prime S10 Location
  • Close to Broomhill, Universities & Hospitals
  • Abundant Pool Of End Users - Both Homeowners & Investors
  • Size Of Site - 0.16 Hectares/0.4 Acres
  • GDV - Estimated £2,989,800

Property Details

  • Property type: Land
  • Council Tax Band: TBD
Please note, property and plot sizes displayed are for guidance purposes only and may have been derived from publicly available information over which neither the agent nor Street.co.uk have control.

Location

Situated within walking distance from the leafy suburb of Broomhill which has a variety of independent shops, bars and restaurants, this premium location opens up an abundant pool of end users being in close proximity to Sheffield's hospitals, Universities and city centre.

Properties you may like

By Redbrik - Land & New Homes

  • Apt 4 Lydgate Green Apartments, Crosspool, Sheffield, S10

    • 2 Beds
    • 2 Bath
    View Property
  • Cedar House - The Clearing, Long Causeway S10

    • 4 Beds
    • 3 Bath
    View Property
  • Blyth Road, Rotherham S66

    • 4 Beds
    • 2 Bath
    View Property
  • The Show Home at Park Lane, Dronfield S18

    • 5 Beds
    • 3 Bath
    View Property
  • One Bedroom Apartments - Firbeck Hall, New Road, Firbeck S81

    • 1 Beds
    • 1 Bath
    View Property
  • Plot 6 North Farm Mews, Harthill S26

    • 3 Beds
    • 2 Bath
    View Property
  • Two Bedroom Apartments, Velocity Tower S1

    • 2 Beds
    • 1 Bath
    View Property
  • Apartment 16 Cotton Mill, Kelham Island, S3

    • 1 Beds
    • 1 Bath
    View Property
  • The Hartington at Oak Fields, Ankerbold Road S42

    • 3 Beds
    • 2 Bath
    View Property
Disclaimer - Property ID f00bfda0-3f58-4e7d-81ed-429982f15090. The information displayed about this property comprises a property advertisement. Street.co.uk and Redbrik - Land & New Homes makes no warranty as to the accuracy or completeness of the advertisement or any linked or associated information, and Street.co.uk has no control over the content. This property advertisement does not constitute property particulars. The information is provided and maintained by the advertising agent. Please contact the agent or developer directly with any questions about this listing.