Book a Viewing

To book a viewing for this property, please call Nested Walthamstow, on 020 3886 2683.

To book a viewing for this property, please call Nested Walthamstow, on 020 3886 2683.

For Sale
£1,000,000 Guide Price

Other, Vestry Road, London, E17

Vestry Road, London, E17


Nested Walthamstow brand logo

Nested Walthamstow

Fora, 9 Dallington Street, London

Description

GUIDE PRICE £1,000,000-£1,100,000 | A stunning 2,600 sq ft warehouse conversion in the heart of the village, blending character, volume and incredible flexibility. With dramatic skylights, vast entertaining space and multiple annex areas, this is a home that can truly adapt to your lifestyle.

Set on Vestry Road, just moments from the centre of the village, this impressive conversion offers striking interiors and endless potential.

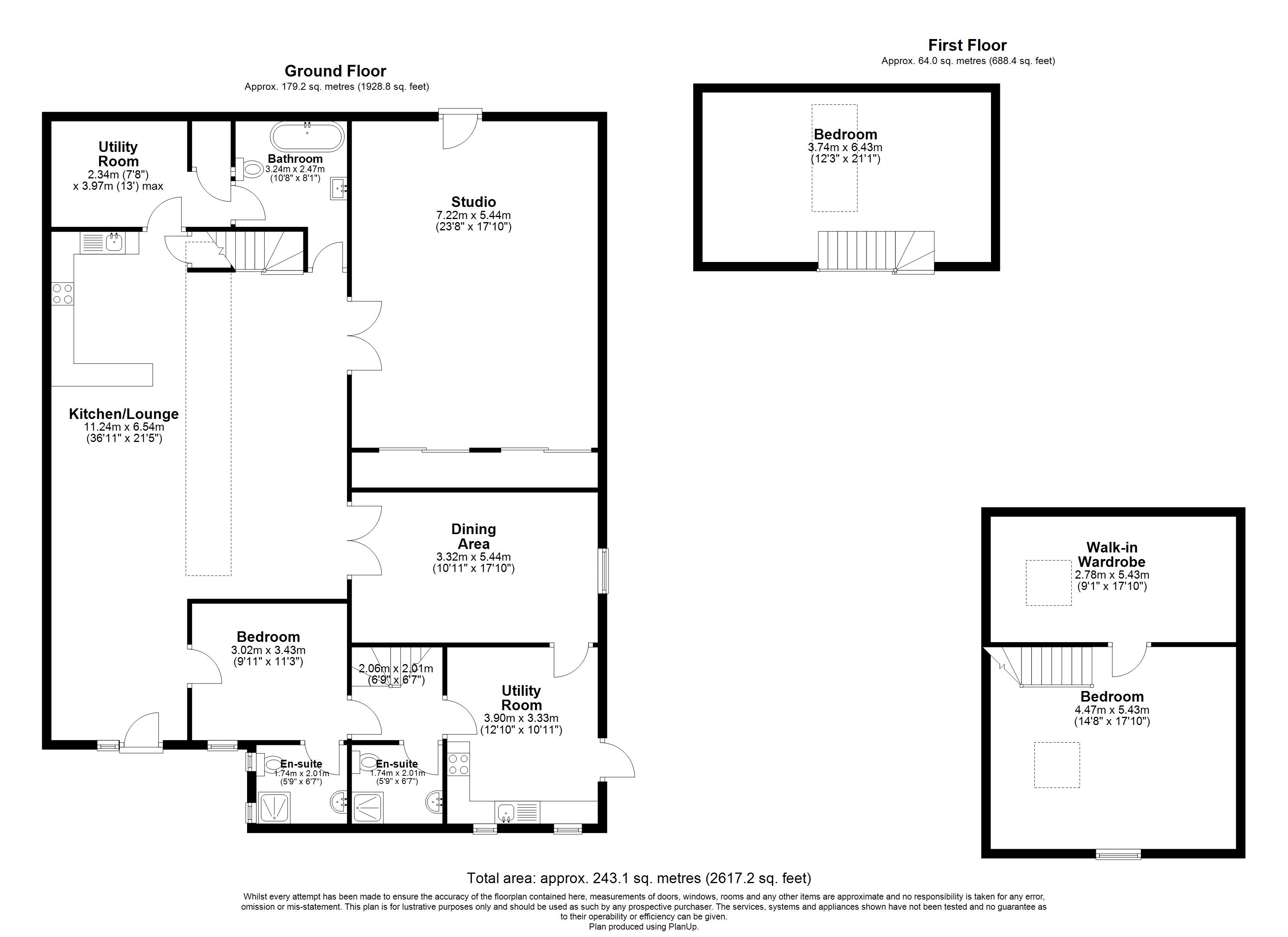
Ground Floor

The heart of the home is the breathtaking open plan kitchen and lounge. Flooded with natural light from overhead skylights, this expansive space is perfect for entertaining friends and family. The scale allows for generous seating, dining and social areas, all flowing seamlessly together to create a vibrant yet welcoming environment.

A separate dining area sits just off the main living space, offering flexibility for more formal gatherings while still maintaining connection to the kitchen.

There is a large studio space currently used as a music studio, ideal for creatives, home working or conversion into further living accommodation. In addition, two separate annex areas provide outstanding versatility. Whether for guests, independent family members, rental potential or additional work space, the layout gives you real choice.

The ground floor also benefits from two utility rooms, adding practicality and storage, along with a family bathroom and ensuite facilities to two of the bedrooms. While technically arranged as a three bedroom home, there are multiple additional areas that could be adapted to suit your needs.

Outdoor space offers further potential, with room to enhance and create additional seating areas, including the option to install a trellis for added privacy and atmosphere. There is also parking for three vehicles, a rare benefit in such a central village location.

First Floor

Upstairs you will find two generous bedrooms. One offers impressive proportions with space for seating or a study area. The principal bedroom is complemented by a substantial walk in wardrobe, creating a dedicated dressing space and excellent storage.

Location

Positioned in the very heart of the village on Vestry Road, everything is on your doorstep. You are just around the corner from Proud Mary Pizza and the local village pub, surrounded by independent spots and community atmosphere. Waterloo station is approximately a five to seven minute walk away, making this an ideal choice for commuters seeking character and convenience.

This remarkable warehouse conversion combines striking architecture, exceptional entertaining space and flexible living across 2,600 sq ft. With annex potential, studio space, parking and a prime village setting, it offers a rare opportunity to create a home tailored entirely to you.


EPC Rating: C

Virtual Tour


Key Features

  • GUIDE PRICE £1,000,000-£1,100,000
  • Warehouse Conversion
  • Approx 2,600 Sq Ft
  • Three Bedrooms
  • Two Annex Areas
  • Music Studio Space
  • Open Plan Living
  • Skylights Throughout
  • Walk In Wardrobe
  • Parking For Three
  • Central Village Location

Property Details

  • Plot Sq Feet: 2,617 sqft
  • Council Tax Band: D
Please note, property and plot sizes displayed are for guidance purposes only and may have been derived from publicly available information over which neither the agent nor Street.co.uk have control.

Floorplans

Location

Properties you may like

By Nested Walthamstow

Disclaimer - Property ID f34c593b-61fe-4718-b9e6-b004846c918a. The information displayed about this property comprises a property advertisement. Street.co.uk and Nested Walthamstow makes no warranty as to the accuracy or completeness of the advertisement or any linked or associated information, and Street.co.uk has no control over the content. This property advertisement does not constitute property particulars. The information is provided and maintained by the advertising agent. Please contact the agent or developer directly with any questions about this listing.