Book a Viewing

Click here to pick an available date and time to view this property

Book a Viewing
For Sale
£330,000

3 Bedroom Semi Detached House, Overdale Road, Knighton, Leicester

Overdale Road, Knighton, Leicester


Knightsbridge Estate Agents Primary Brand brand logo

Knightsbridge Estate Agents - Clarendon Park

Knightsbridge Estate Agents, 72 Queens Road, Leicester

Description

Situated on Overdale Road within the popular area of Knighton, this three-bedroom semi-detached home is offered for sale with no upward chain and presents an opportunity for a buyer to update and personalise to their own taste.

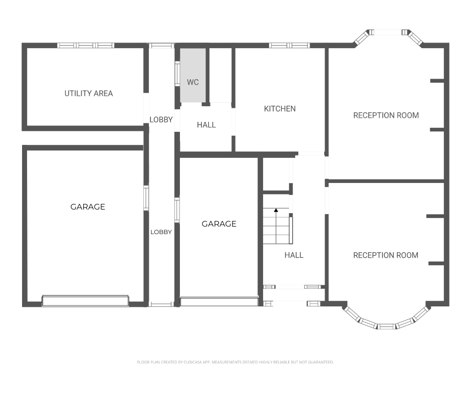
The accommodation begins with an entrance porch leading through to a hallway with stairs rising to the first floor and useful under-stairs storage. To the front is a reception room with a bay window, while to the rear is a second reception room with a door opening out to the garden. The kitchen is fitted with a range of wall and base units and leads through to a lobby area providing access to a ground-floor WC and a separate utility room.

To the first floor, there are three bedrooms, all benefitting from fitted storage. The principal bedroom features a bay window and fitted wardrobes, with a second double bedroom to the rear also including fitted wardrobes. The third bedroom is positioned to the front. The accommodation is completed by a bathroom with bath and shower over, alongside a separate WC.

Outside, the property offers a paved frontage with a driveway providing off-road parking for two vehicles, along with access to an integral garage and a further detached garage to the side. The rear garden includes a patio area, lawn, established shrubs and trees, along with a greenhouse and side access.


EPC Rating: D

Other Virtual Tours:


Key Features

  • No Upward Chain
  • Three Bedroom Semi Detached Home
  • Requires Modernisation Throughout
  • Two Reception Rooms
  • Fitted Kitchen With Separate Utility Room
  • Ground Floor WC
  • First Floor Bathroom And Separate WC
  • Driveway Providing Off Road Parking
  • Integral Garage And Additional Detached Garage
  • Generous Rear Garden With Mature Planting

Property Details

  • Property type: House
  • Property style: Semi Detached
  • Price Per Sq Foot: £333
  • Approx Sq Feet: 990 sqft
  • Plot Sq Feet: 3,940 sqft
  • Council Tax Band: C
  • Property Ipack: Key Facts for Buyers
Please note, property and plot sizes displayed are for guidance purposes only and may have been derived from publicly available information over which neither the agent nor Street.co.uk have control.

Rooms

Entrance Porch

With an internal door to the entrance hall.

Entrance Hall

With stairs to the first floor, an under-stairs storage cupboard, and a radiator.

View Entrance Hall Photos

Reception Room One

4.31m x 3.48m

(into bay). Includes a double-glazed bay window to the front elevation and two radiators.

View Reception Room One Photos

Reception Room Two

4.39m x 3.49m

Includes a double-glazed door to the rear garden and a radiator.

View Reception Room Two Photos

Kitchen

2.43m x 2.66m

Includes double-glazed window to rear elevation, stainless steel sink and drainer unit, wall and base units with work surfaces over, gas cooker point, and radiator.

View Kitchen Photos

Lobby

With a door to the side elevation, a cupboard housing a boiler, and tiled flooring.

View Lobby Photos

Ground Floor WC

1.41m x 0.78m

Includes a window to the side elevation, a low-level WC, a tiled floor, and tiled walls.

View Ground Floor WC Photos

Utility Room

2.82m x 2.15m

Includes double-glazed window to rear elevation, plumbing for washing machine, stainless steel sink and drainer unit, tiled floor, and radiator.

View Utility Room Photos

First Floor Landing

With loft access and storage cupboard area.

View First Floor Landing Photos

Bedroom One

4.30m x 3.47m

Includes a double-glazed bay window to the front elevation, fitted sliding wardrobes, and a radiator.

View Bedroom One Photos

Bedroom Two

3.71m x 3.49m

Includes a double-glazed window to the rear elevation, fitted sliding wardrobes, and a radiator.

View Bedroom Two Photos

Bedroom Three

2.90m x 2.25m

Includes a double-glazed window to the front elevation and fitted wardrobes.

View Bedroom Three Photos

Built-in Cupboard

With access to an airing cupboard and eaves storage area, plus radiator.

Bathroom

2.40m x 1.99m

Includes double-glazed window to rear elevation, bath with shower over, two wash hand basins, built-in cupboard, and radiator.

View Bathroom Photos

WC

1.50m x 0.80m

Includes a double-glazed window to the rear elevation and a low-level WC.

View WC Photos

Outside Spaces

Front Garden

Paved front garden leading to an integral garage with a further single garage to the side.

View Photos

Rear Garden

Paved patio area, outside shed, mainly lawned garden with mature shrubs to borders and fir trees to the side providing privacy. Includes greenhouse and side access.

View Photos

Parking Spaces

Garage

Capacity: 1

4.58m x 2.44m with up-and-over door to front elevation.

View Photos

Garage

Capacity: 1

4.90m x 2.80m with up-and-over door to front elevation.

View Photos

Driveway

Capacity: 2

Location

The property is well located for everyday amenities and services, including local public and private schooling including Overdale Infant and Junior Schools and nursery day-care, Leicester City Centre and the University of Leicester, Leicester Royal Infirmary and Leicester General Hospital. The property is located close to Knighton Park and Queens Road shopping parade in neighbouring Clarendon Park with its specialist shops, bars, boutiques and restaurants.

Properties you may like

By Knightsbridge Estate Agents - Clarendon Park

  • Wheatsheaf Way, Knighton Fields, Leicester

    • 1 Beds
    • 1 Bath
    View Property
  • Grasmere Street, Leicester

    • 3 Beds
    • 1 Bath
    View Property
  • Knighton Court, Stoneygate, Leicester

    • 2 Beds
    • 1 Bath
    View Property
  • York Road, City Centre, Leicester

    • 1 Beds
    • 1 Bath
    View Property
  • Landseer Road, Clarendon Park, Leicester

    • 5 Beds
    • 2 Bath
    View Property
  • Overdale Road, Knighton, Leicester

    • 3 Beds
    • 1 Bath
    View Property
  • Letchworth Road, Western Park, Leicester

    • 6 Beds
    • 5 Bath
    View Property
  • Gainsborough Road, Knighton, Leicester

    • 3 Beds
    • 1 Bath
    View Property
  • Ashclose Avenue, Knighton, Leicester

    • 3 Beds
    • 1 Bath
    View Property
Disclaimer - Property ID 029869e2-e72e-4af2-9747-b4105fafde6f. The information displayed about this property comprises a property advertisement. Street.co.uk and Knightsbridge Estate Agents - Clarendon Park makes no warranty as to the accuracy or completeness of the advertisement or any linked or associated information, and Street.co.uk has no control over the content. This property advertisement does not constitute property particulars. The information is provided and maintained by the advertising agent. Please contact the agent or developer directly with any questions about this listing.