Book a Viewing

To book a viewing for this property, please call Lisa Costa Residential Sales &Lettings, on 01454 279734.

To book a viewing for this property, please call Lisa Costa Residential Sales &Lettings, on 01454 279734.

For Sale
£500,000

3 Bedroom Detached House, Redwick Gardens, Pilning, BS35

Redwick Gardens, Pilning, BS35


Lisa Costa Primary Brand brand logo

Lisa Costa Residential Sales &Lettings

Lisa Costa Residential Sales & Lettings, 53 High Street

Description

Nestled within the serene embrace of a private road in a charming village, this charming 3-bedroom detached bungalow presents a rare opportunity to acquire a peaceful haven with versatile accommodation. A picturesque setting welcomes you home to extensive wrap-around gardens, providing an enchanting backdrop for relaxation and entertainment alike. The property boasts a garage, driveway, and workshop, offering ample space for vehicles and storage needs. Inside, the property reveals a spacious lounge/dining room ideal for gatherings, complemented by a sunroom that invites natural light to dance through the space. A loft space provides further possibilities for customisation or storage solutions, catering to the needs of the discerning homeowner.

Step outside to discover the allure of the outdoor space, where tranquillity reigns supreme amongst lush greenery and manicured landscapes. The gardens offer a canvas for outdoor enjoyment, whether savouring a morning coffee amidst the tranquillity or hosting al fresco soirées under a canopy of stars. A short stroll leads to local shop and a doctor's surgery, ensuring convenience is at your doorstep. Embrace the harmonious blend of indoor-outdoor living in this idyllic sanctuary, where every corner whispers the promise of a peaceful and fulfilling lifestyle. This property is a testament to refined living, harmonising modern comforts with the serenity of nature, it is an oasis of calm awaiting its discerning new owner.

Agents Note
Any reference to schools or school catchment areas contained within these particulars do not imply that places are available in those schools. Parents are advised to contact the Council or visit their website at to check availability of placements.

1. MONEY LAUNDERING REGULATIONS: Intending purchasers will be asked to produce identification documentation at a later stage and we would ask for your co-operation in order that there will be no delay in agreeing the sale.
2. General: While we endeavour to make our sales particulars fair, accurate and reliable, they are only a general guide to the property and, accordingly, if there is any point which is of particular importance to you, please contact the office and we will be pleased to check the position for you, especially if you are contemplating travelling some distance to view the property.
3. The measurements indicated are supplied for guidance only and as such must be considered incorrect.
4. Services: Please note we have not tested the services or any of the equipment or appliances in this property, accordingly we strongly advise prospective buyers to commission their own survey or service reports before finalising their offer to purchase.
5. THESE PARTICULARS ARE ISSUED IN GOOD FAITH BUT DO NOT CONSTITUTE REPRESENTATIONS OF FACT OR FORM PART OF ANY OFFER OR CONTRACT. THE MATTERS REFERRED TO IN THESE PARTICULARS SHOULD BE INDEPENDENTLY VERIFIED BY PROSPECTIVE BUYERS OR TENANTS


EPC Rating: D

Key Features

  • Detached Bungalow
  • 3 Bedrooms
  • Extensive wrap around gardens
  • Garage, Driveway and Workshop
  • Versatile Accommodation
  • Situated on a private road in a village location
  • A short stroll to local shop and doctors surgery
  • Lounge/Dining Room
  • Sun Room
  • Loft Space

Property Details

  • Property type: House
  • Property style: Detached
  • Price Per Sq Foot: £540
  • Approx Sq Feet: 926 sqft
  • Plot Sq Feet: 7,998 sqft
  • Property Age Bracket: 1940 - 1960
  • Council Tax Band: E
Please note, property and plot sizes displayed are for guidance purposes only and may have been derived from publicly available information over which neither the agent nor Street.co.uk have control.

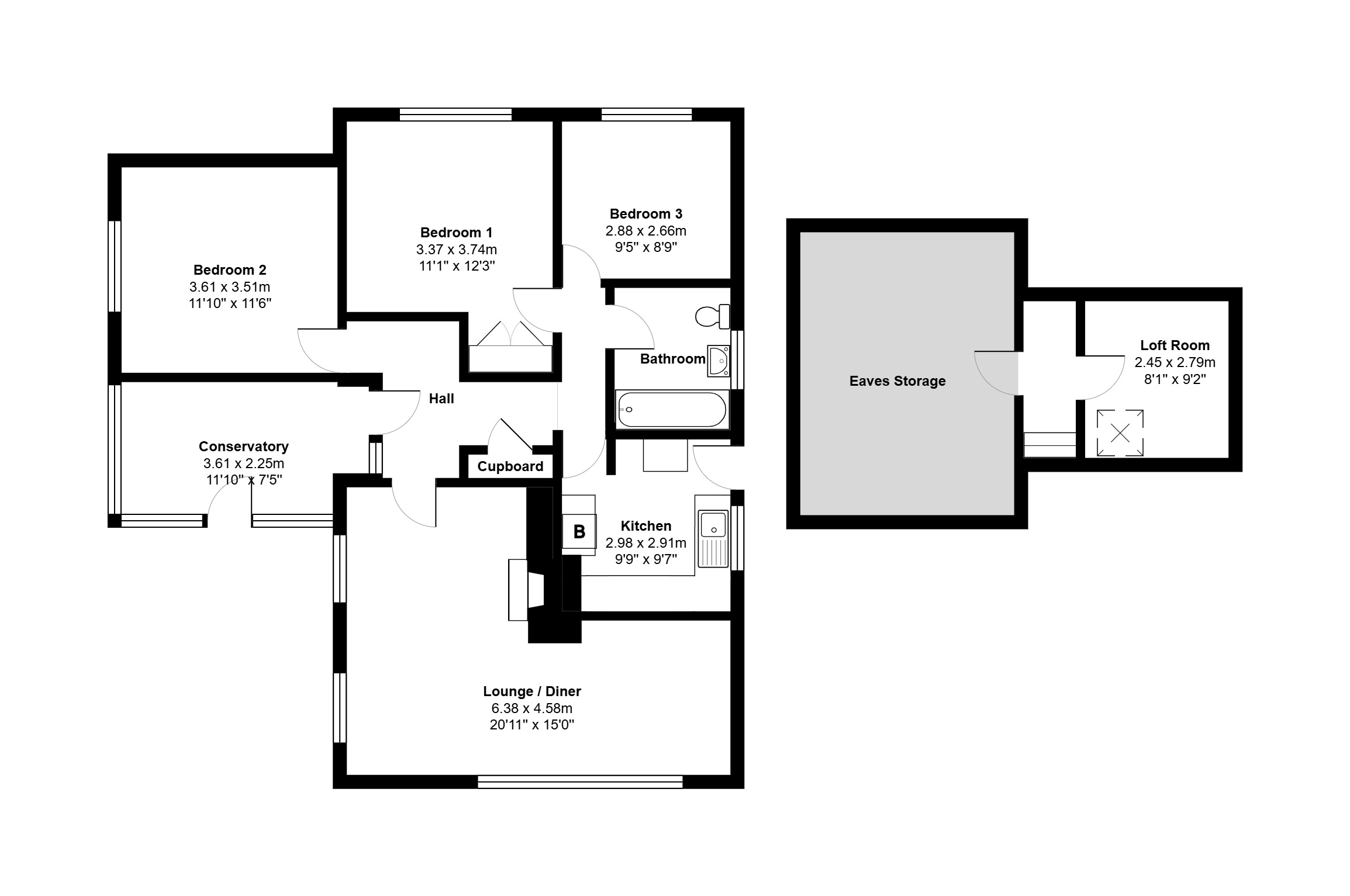
Rooms

Sun Room

Entrance Hall

Lounge/dining Room

Kitchen

Bedroom 1

Bedroom 2

Bedroom 3

Bathroom

Loft Area

Workshop

Summer House

Floorplans

Outside Spaces

Garden

Parking Spaces

Garage

Capacity: 1

Driveway

Capacity: 1

Location

Properties you may like

By Lisa Costa Residential Sales &Lettings

Disclaimer - Property ID 1c36ff54-7436-48e6-bcf1-f57714b1ad4b. The information displayed about this property comprises a property advertisement. Street.co.uk and Lisa Costa Residential Sales &Lettings makes no warranty as to the accuracy or completeness of the advertisement or any linked or associated information, and Street.co.uk has no control over the content. This property advertisement does not constitute property particulars. The information is provided and maintained by the advertising agent. Please contact the agent or developer directly with any questions about this listing.