3 Bedroom Detached House, London Road, Saffron Walden, CB11
London Road, Saffron Walden, CB11
.png)
Pottrill Holland Property Agents
12 Railey Road, Saffron Walden
Description
Positioned in a highly convenient location just a short stroll from the Market Square, 1 London Road is a striking Victorian detached home offering three bedrooms, versatile living space, and a wealth of period character. With both R.A. Butler Primary and Saffron Walden County High School within walking distance, this location is perfectly suited for family life. Additionally, it’s just a short walk to the bus stop on London Road, offering convenient and regular links to Audley End Train Station—ideal for commuters.
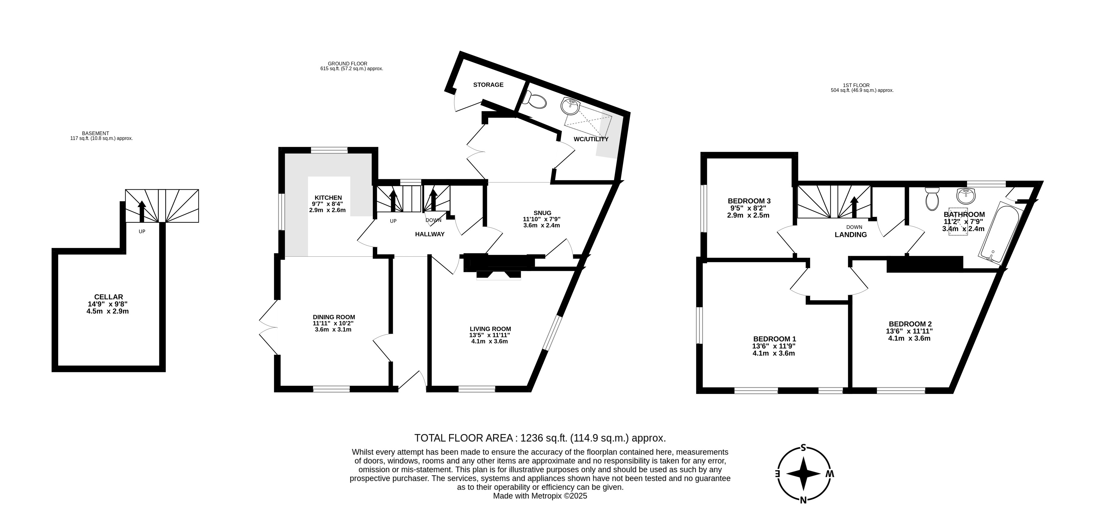
The handsome red brick frontage, arched sash windows, and decorative entrance porch immediately showcase the home’s Georgian heritage. Inside, accommodation extends to over 1,230 sq. ft. plus a cellar, blending historic charm with modern-day comforts.
The ground floor includes a welcoming hallway with terracotta tiled flooring and a staircase to the first floor. A sitting room with an elegant fireplace and shuttered windows provides a calm retreat, while the separate dining room is perfect for entertaining. To the rear, the bespoke kitchen features shaker-style cabinetry, butler sink, and wooden worktops, flowing into a bright dining/family area with French doors to the garden. A snug and utility/WC complete the layout, offering flexibility for home working or family use.
Upstairs, three bedrooms are arranged around a central landing. The two principal rooms are generous doubles with excellent storage, while the third is ideal as a child’s bedroom or study. A stylish family bathroom with painted panelling, metro tiling, and a skylight completes the first floor.
The cellar adds further versatility, currently used as a gym and storage area, but equally suitable as a hobby space or wine store.
Outside, the private walled garden provides a low-maintenance yet inviting retreat, with a circular terrace and mature borders. To the rear, a gated driveway ensures secure off-street parking for three cars.
A rare opportunity, 1 London Road seamlessly combines Victorian elegance, modern convenience, and a prime location in one of Saffron Walden’s most desirable areas.
Agents Notes:
Tenure: Freehold
EPC Band D
Uttlesford District Council - Tax Band E - £2,828.43pa
All Mains Services Connected
Mobile Coverage: Good Indoor & Outdoor Coverage Across All Major Networks (Ofcom)
Broadband Coverage: Ultrafast Available, 1,000 Mbps (Ofcom)
Location:
Saffron Walden, Essex, is a historic market town brimming with character and charm. Known for its beautiful period architecture, excellent schools, and vibrant community, it offers an idyllic lifestyle for families and professionals. The town boasts lovely green spaces such as ‘The Common,’ a bustling market square with a market every Tuesday and Saturday, independent shops, cafes, and cultural landmarks. With easy access to Cambridge and London, by both road & rail (Audley End Train Station), Saffron Walden combines the best of rural tranquillity with modern convenience and connectivity.
EPC Rating: D
Virtual Tour
Key Features
- Elegant Victorian detached home with striking red brick façade and arched sash windows
- Three well-proportioned bedrooms, including two generous doubles with fitted storage
- Stylish kitchen with shaker cabinetry, butler sink and open-plan dining/family area with garden access
- Versatile cellar, ideal for use as a gym, hobby room, wine store, or additional storage
- Private walled garden with circular terrace and mature borders, plus gated off-street parking
- Prime location within walking distance of Saffron Walden town centre, R.A. Butler Primary, and Saffron Walden County High School
Property Details
- Property type: House
- Price Per Sq Foot: £691
- Approx Sq Feet: 1,230 sqft
- Plot Sq Feet: 2,088 sqft
- Property Age Bracket: Victorian (1830 - 1901)
- Council Tax Band: E
Floorplans
Outside Spaces
Garden
Parking Spaces
Secure gated
Capacity: 3
Location
Saffron Walden, Essex, is a historic market town brimming with character and charm. Known for its beautiful period architecture, excellent schools, and vibrant community, it offers an idyllic lifestyle for families and professionals. The town boasts lovely green spaces such as ‘The Common,’ a bustling market square with a market every Tuesday and Saturday, independent shops, cafes, and cultural landmarks. With easy access to Cambridge and London, by both road & rail (Audley End Train Station), Saffron Walden combines the best of rural tranquillity with modern convenience and connectivity.
Properties you may like
By Pottrill Holland Property Agents