Book a Viewing
To book a viewing for this property, please call Myrings Estate Agents, on 01423 566400.
To book a viewing for this property, please call Myrings Estate Agents, on 01423 566400.
2 Bedroom Terraced House, Willow Grove, Harrogate, HG1
Willow Grove, Harrogate, HG1

Myrings Estate Agents
Myrings Estate Agents Ltd, 10 Princes Square
Description
Offered for sale with no onward chain, this newly decorated and recarpeted two bedroom period terrace home is situated in a popular and convenient residential area close to a wide range of amenities.
Fronted by a smart terraced garden, the property opens into a naturally light and spacious bay fronted lounge. Leading through, there is a fitted kitchen with a range of units and space to accommodate a dining table. A door opens out to the private, enclosed rear garden which is low maintenance and features double gates providing the option of off-street parking. There is also a very useful outdoor store, ideal for bikes and garden furniture.
Ascending to the first floor, a landing branches off to a well-proportioned principal bedroom with fitted wardrobes, a second generous double bedroom, and a modern house bathroom with an over-bath shower.
EPC Rating: E
Key Features
- NO ONWARD CHAIN
- NEWLY DECORATED AND RECARPETED THROUGHOUT
- TWO WELL PROPORTIONED DOUBLE BEDROOMS
- PRIVATE LOW MAINTENANCE REAR GARDEN WITH OFF-STREET PARKING OPTION
- POPULAR RESIDENTIAL LOCATION CLOSE TO AMENITIES
Property Details
- Property type: House
- Price Per Sq Foot: £307
- Approx Sq Feet: 618 sqft
- Plot Sq Feet: 753 sqft
- Property Age Bracket: 1910 - 1940
- Council Tax Band: B
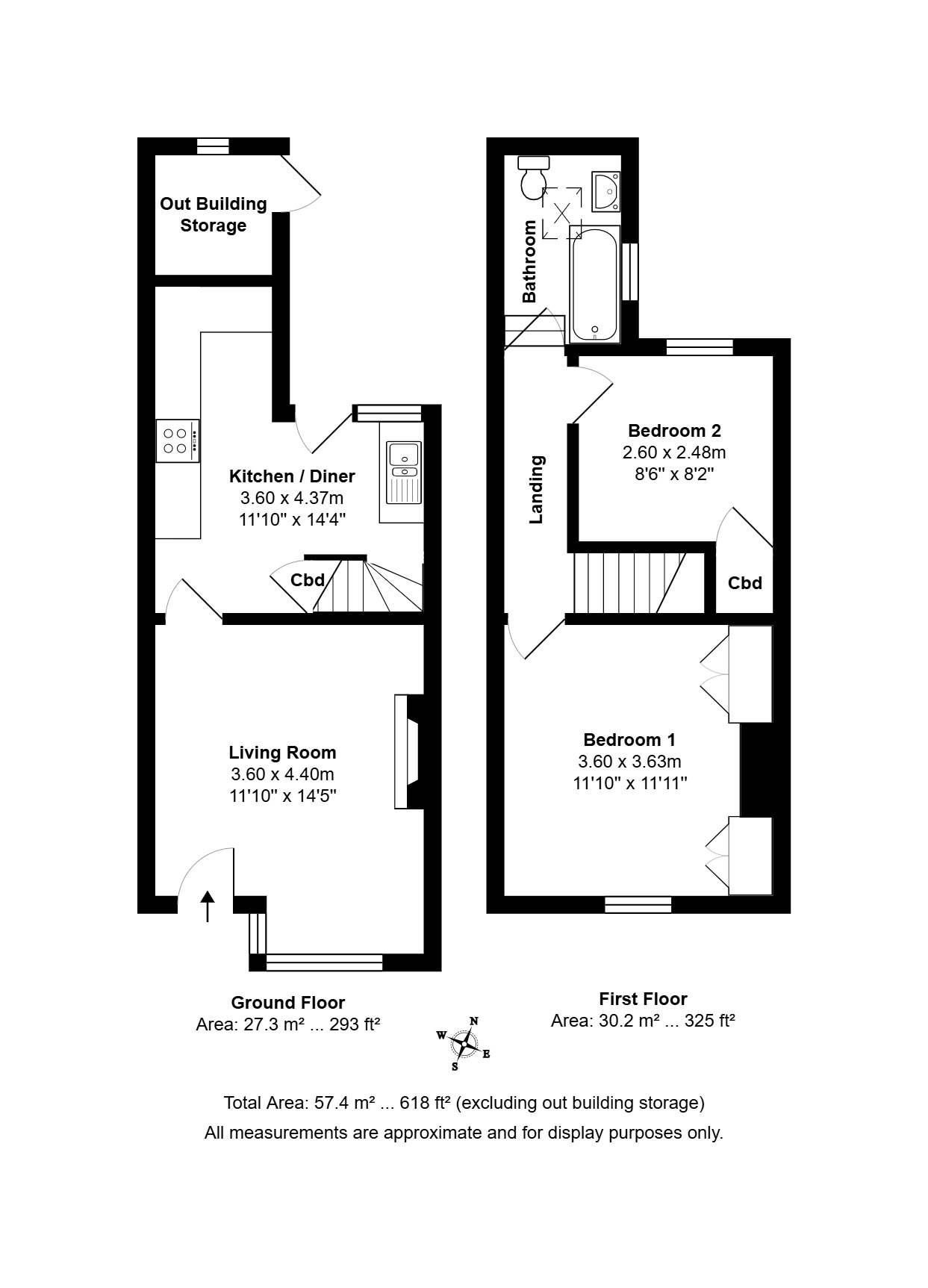
Floorplans
Outside Spaces
Parking Spaces
On street
Capacity: N/A
Location
Willow Grove is located in a popular residential area on the outskirts of Harrogate's town centre with its many attractions such as boutique shopping, Betty's famed Tea Rooms and the 200 Acre Stray Parkland. The town is also renowned for its reputable schools which are all within a short commute including the popular Richard Taylor CofE Primary. The property is only a short walk from open countryside and the beautiful Nidd Gorge which is known for its impressive scenery. Transport links are most accessible with a regular bus service into the town centre. The train line runs to the main stations at York and Leeds from Harrogate town centre, and the A1M linking into the national motorway network is only 7.5 miles away. Leeds Bradford International Airport is a mere twenty five minutes drive.
Properties you may like
By Myrings Estate Agents