Book a Viewing

To book a viewing for this property, please call Chamberlains, on 01626 815815.

To book a viewing for this property, please call Chamberlains, on 01626 815815.

For Sale
£350,000 Guide Price

3 Bedroom Semi Detached House, Hazeldene, 38 Paradise Road, Teignmouth, TQ14 8NR

Hazeldene, 38 Paradise Road, Teignmouth, TQ14 8NR


Chamberlains brand logo

Chamberlains

Chamberlains, 6 Wellington Street

Description

Located in a tucked away position in a desirable location, this is a three double bedroom semi detached house with a garage and garden with a potential garden office.

Stepping in to the property there is an entrance vestibule with a further panelled door leading to the hallway with stairs rising to the first floor and doors off to the lounge and kitchen.

The lounge is a fantastic light room with large uPVC double glazed windows overlooking the front garden. An archway leads off to the dining room which has uPVC double glazed patio doors to the rear garden and a door to the kitchen.

The kitchen has a lovely outlook onto the rear garden and is fitted with a range of wall and base mounted units with space for a cooker and fridge/freezer, double drainer stainless steel sink and a useful storage cupboard.

Stepping out of the kitchen to the utility area, there is a uPVC door to the side garden. The utility area has space/plumbing for a washing machine, dryer, additional fridge/freezer, space for shelving and the boiler. The downstairs WC has a low level WC and a uPVC double glazed window to the side aspect.

Ascending the stairs to the first floor landing there is a uPVC double glazed window to the side aspect, access to the loft, two good size storage cupboards, one of which houses the hot water tank, and doors leading off to the bedrooms, wet room and WC.

All three bedrooms are good size double rooms with two to the front aspect and one to the rear with built in cupboards. The wet room has an obscured uPVC double glazed window to the rear aspect, storage cupboard, electric shower and wash hand basin inset in cupboards. The separate WC has a uPVC double glazed window to the rear and low level WC.

There is oil fired central heating and uPVC double glazing.

Tenure - Freehold

Mains Services - Electric and Water

Council Tax Band C - £2409.05 per annum

Broadband - Ultrafast 1000Mbps (According to OFCOM)

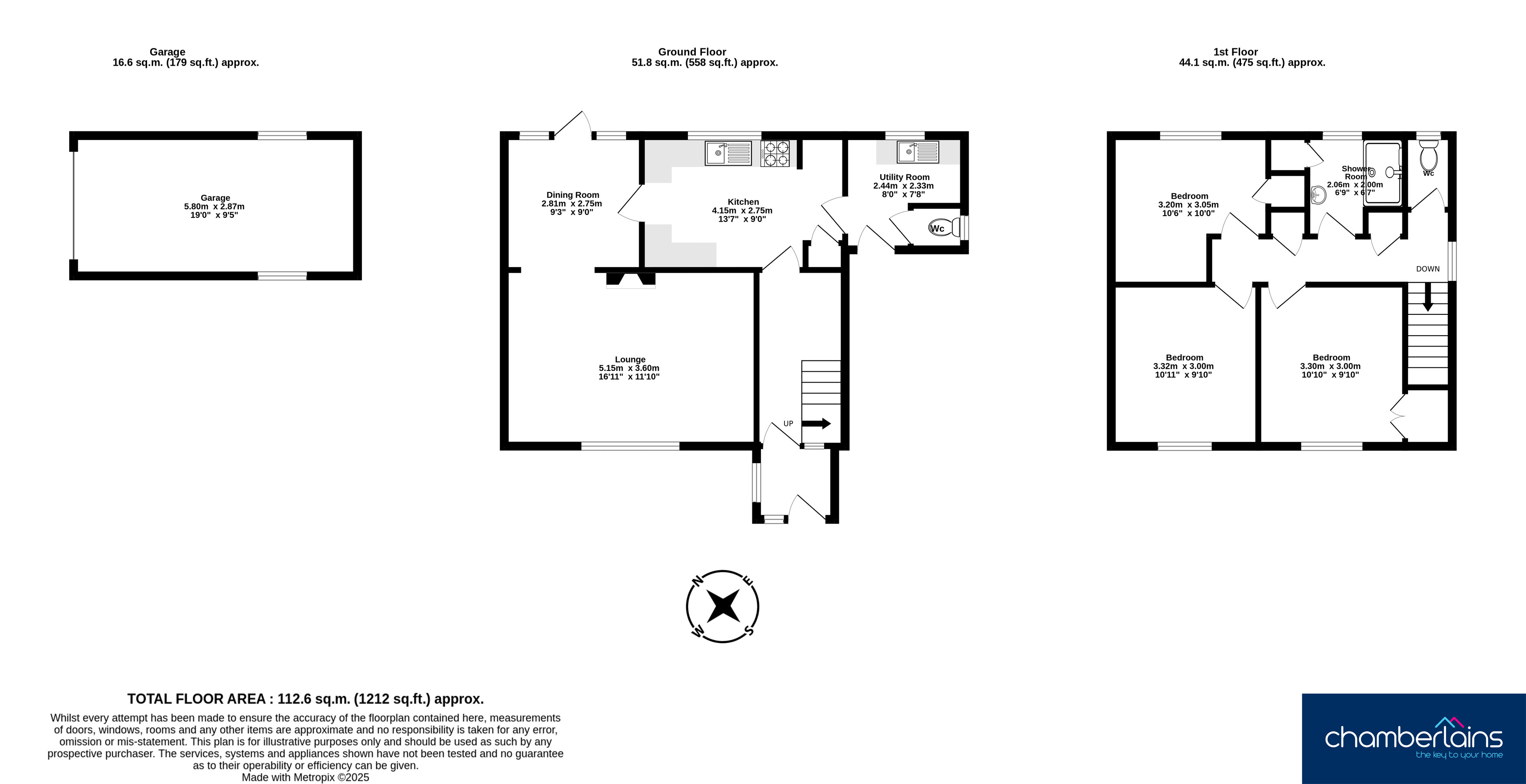
MEASUREMENTS: Lounge 5.15m x 3.60m (16’11” x 11’10”), Kitchen 4.15m x 2.75m (13’07” x 9’00”), Dining Room 2.81m x 2.75m (9’03” x 9’00”), Bedroom 3.20m x 3.05m (10’06” x 10’00”), Bedroom 3.32m x 3.00m (10’11” x 9’10”), Bedroom 3.30m x 3.00m (10’10 × 9’10”), Garage 5.80m x 2.87m (19’00” x 9’05”).


EPC Rating: D

Virtual Tour


Key Features

  • Semi-Detached House
  • Highly Desirable Location
  • Three Double Bedrooms
  • Lounge & Dining Room
  • Downstairs WC & Upstairs Wetroom & Separate WC
  • Utility Room
  • Garage & Parking
  • Pleasant Gardens
  • Potential Garden Office
  • EPC - D

Property Details

  • Property type: House
  • Property style: Semi Detached
  • Price Per Sq Foot: £256
  • Approx Sq Feet: 1,367 sqft
  • Plot Sq Feet: 6,394 sqft
  • Council Tax Band: C
Please note, property and plot sizes displayed are for guidance purposes only and may have been derived from publicly available information over which neither the agent nor Street.co.uk have control.

Floorplans

Outside Spaces

Front Garden

The front garden has a pathway leading to the front door and side/rear gardens, with sunny patio and lawned areas.

Rear Garden

Within the rear garden there is a useful storage shed and a versatile garden room which is double glazed. The main garden is laid to lawn with mature shrubs surrounding. There is also an outside tap.

Parking Spaces

Garage

Capacity: 1

To the front of the property there is a single garage with an up and over door.

Off street

Capacity: 1

Location

Teignmouth is a popular seaside resort on a stretch of red sandstone along the South Devon Coast. It is a coastal town that has a historic port and working harbour, with a Victorian Pier and promenade. There are sandy sea and river beaches excellent for sailing and water sports with two sailing clubs and a diving school. Teignmouth has a comprehensive range of facilities including supermarkets, local independent shops, a selection of bars and restaurants, a small hospital, the Den with a Green Flag Awarded children's play park and both state & independent schools.

Properties you may like

By Chamberlains

  • Teign Street, Teignmouth, TQ14

    • 1 Beds
    • 1 Bath
    View Property
  • St. Mary Magdalen Close, Bishopsteignton, TQ14

    • 3 Beds
    • 2 Bath
    View Property
  • Strand, Leander Court Strand, TQ14

    • 1 Beds
    • 1 Bath
    View Property
  • Cockhaven Road, Bishopsteignton, TQ14

    • 4 Beds
    • 2 Bath
    View Property
  • Hazeldene, 38 Paradise Road, Teignmouth, TQ14 8NR

    • 3 Beds
    • 1 Bath
    View Property
  • Fore Street, Shaldon, TQ14

    • 1 Beds
    • 1 Bath
    View Property
  • Newton Road, Bishopsteignton, TQ14

    • 5 Beds
    • 4 Bath
    View Property
  • Teignmouth Road, Bishopsteignton, TQ14

    • 4 Beds
    • 2 Bath
    View Property
  • Fraser Drive, Teignmouth, TQ14

    • 2 Beds
    • 1 Bath
    View Property
Disclaimer - Property ID 502d0b93-3336-49ea-a20f-47038fd4800d. The information displayed about this property comprises a property advertisement. Street.co.uk and Chamberlains makes no warranty as to the accuracy or completeness of the advertisement or any linked or associated information, and Street.co.uk has no control over the content. This property advertisement does not constitute property particulars. The information is provided and maintained by the advertising agent. Please contact the agent or developer directly with any questions about this listing.