Book a Viewing

To book a viewing for this property, please call Henry Adams New Homes, on 01243 521833.

To book a viewing for this property, please call Henry Adams New Homes, on 01243 521833.

For Sale
£243,750 Fixed Price

2 Bedroom Apartment, Sumners Field, Chapel Road, RH13

Sumners Field, Chapel Road, RH13


Henry Adams New Homes brand logo

Henry Adams New Homes

Henry Adams LLP, Rowan House Baffins Lane

Description

Sumners Field – Plot 18
Two Bedroom First Floor Apartment, Sumners Pond, Barns Green

This is the final remaining two-bedroom apartment at the highly sought-after Sumners Pond development in the popular village of Barns Green, ideally located near Horsham.

Plot 18 is a well-designed first-floor apartment offering bright, contemporary accommodation throughout. A spacious entrance hallway leads through to an impressive open-plan kitchen/living/dining room, providing an excellent space for both everyday living and entertaining. The modern kitchen is fitted with a range of quality units and fully integrated appliances, including an oven, hob and fridge freezer, complemented by stylish finishes and quality flooring throughout the apartment.

The principal bedroom is light and generously proportioned, benefitting from a fitted wardrobe, while the second bedroom offers flexibility for guests, home working or additional storage. The contemporary bathroom features a shower over the bath with attractive tiling to bathing areas. The property also benefits from allocated parking.

The home is available via the Landspeed Shared Purchase scheme, offering an affordable route to home ownership. Purchasers can buy 75% (£243,750) of the full market value (£325,000), with no rent or interest payable on the remaining 25%. A minimum deposit of 5% of the full market value is required.

Anticipated build completion: Spring 2026

Set within a desirable village setting, Sumners Pond combines modern living with easy access to local amenities, public houses, and the beautiful surrounding West Sussex countryside, while still offering convenient links to Horsham and beyond.

Eligibility criteria apply. Purchasers must live, work, or have close family connections within the Horsham District Council area and be unable to afford the full market value of the property.

For further information or to request an application form, please contact us.

Please contact us for details of the Reservation Fee and Terms & Conditions.

Estate Charge: 2 bed apartment £1,839.11 per home per annum (estimated).

Please note: Photos of the kitchen & Bathroom are of another Landspeed Home for illustrative purposes only.

Key Features

  • Village Location
  • Shared ownership scheme at 75% with no rent of interest to pay on the remaining 25%
  • 2 Parking Space
  • Vinyl flooring to kitchen area and bathroom
  • Carpets to bedroom and hallway
  • Integrated oven, hob, extractor hood and fridge/freezer
  • Space for Washing Machine
  • Removable cupboard for a Dishwasher
  • EPC to be advised
  • Council Tax banding is not set until after Legal Completion. For more details, please contact the Local Authority

Property Details

  • Property type: Apartment
  • Price Per Sq Foot: £324
  • Approx Sq Feet: 753 sqft
  • Property Age Bracket: New Build
  • Council Tax Band: TBD
  • Tenure: Leasehold
  • Lease Expiry: -
  • Ground Rent:
  • Service Charge: £1,839.11 per year
Please note, property and plot sizes displayed are for guidance purposes only and may have been derived from publicly available information over which neither the agent nor Street.co.uk have control.

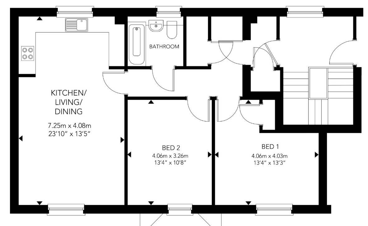
Rooms

Hallway

Kitchen/Living/Dining

7.25m x 4.08m

Bathroom

Bedroom 1

4.06m x 4.03m

Bedroom 2

4.06m x 3.26m

Parking Spaces

Allocated parking

Capacity: 2

Location

Barns Green is a popular West Sussex village offering a convenience store with post office, local amenities and a strong sense of community. Horsham town centre is just over a 10-minute drive away, providing a wide range of shops, supermarkets and leisure facilities. Sumners Fields is ideally positioned next to Sumners Ponds, a well-loved spot for countryside walks, lakeside dining and outdoor activities, with Southwater Country Park also nearby. The area is well served by schools, including Barns Green Primary within walking distance. Excellent transport links include easy access to the A24, Christ’s Hospital railway station just four minutes away with direct services to London Victoria, and Gatwick Airport within 30 minutes.

Properties you may like

By Henry Adams New Homes

Disclaimer - Property ID 6099abba-aee1-4ea8-a5e9-82fce461ddd0. The information displayed about this property comprises a property advertisement. Street.co.uk and Henry Adams New Homes makes no warranty as to the accuracy or completeness of the advertisement or any linked or associated information, and Street.co.uk has no control over the content. This property advertisement does not constitute property particulars. The information is provided and maintained by the advertising agent. Please contact the agent or developer directly with any questions about this listing.