Book a Viewing

To book a viewing for this property, please call Allen Heritage, on 020 8777 3000.

To book a viewing for this property, please call Allen Heritage, on 020 8777 3000.

For Sale
£775,000 Guide Price

Commercial Property, Loudwater, High Wycombe

Loudwater, High Wycombe


Allen Heritage Primary Brand brand logo

Allen Heritage

Description

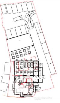
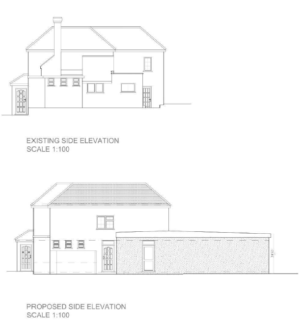
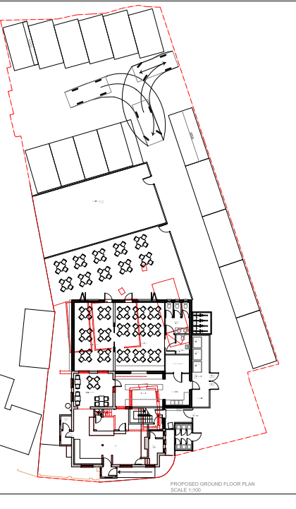
The Approval:

Single storey rear and side extensions following demolition of the existing sheds at the rear of the property to accommodate seating and restaurant facility to the current public house. First floor and side and rear extensions to convert into two self-contained units. Parking facilities, amenity and outdoor seating for the public house.

Site Overview:

The Derehams Inn has historically formed part of the local social fabric, operating for many years as a traditional public house serving both the village and the wider Loudwater and High Wycombe area. Its position on Derehams Lane, together with on-site parking, has historically made it a convenient and well-used destination for food, drink and social gatherings.

While the public house has more recently become vacant, the building retains a strong presence within the streetscape and benefits from a layout and plot size well suited to modern, food-led hospitality. The approved scheme builds upon this established use, allowing the property to be sensitively refurbished and extended, securing its future as a public house while responding to contemporary dining expectations.

The current site:

The site comprises a detached two storey former public house set on Derehams Lane, with on-site parking to the rear. The property is currently vacant and in run-down condition, offering clear scope for redevelopment in accordance with the approved scheme.

The site has a large car park to the rear, with access toward the side of the building providing eight car parking spaces for visitors of the now closed Public House. The approval increases to 10 spaces, EV charging stations, dedicated spaces for disabled users and bicycle capacity

Site Details:

Total Site Area: Approximately 1200.00 SQM
Planning Permission: Full planning permission granted
Number of Units: Refurbished & extended public house plus 2 residential units
Tenure: Freehold

The site closed in 2021

Location:

Train station: High Wycombe station provides regular services to London Marylebone
Bus & road: Excellent access to the A40 and M40, with local bus services nearby
Shopping: High Wycombe town centre offers a wide range of retail and amenities
Eating & drinking: Loudwater and the surrounding area support a strong local dining and hospitality scene

Viewings: Strictly by appointment only

Information available upon request:
Brochure

Approval & Conditions

Design & Access Statement

Local Comparable’s

GDV

Arboriculturally Impact Assessment

Planning and technical information can be provided upon request via the Land Team


EPC Rating: D

Key Features

  • Fully consented mixed use development opportunity
  • Approved scheme for refurbished and extended public house
  • Two self-contained residential units above (1-bed + studio)
  • On-site parking and turning
  • Suitable for developers, owner-operators or food-led pub operators
  • Freehold
  • Vacant posession

Property Details

  • Property type: Commercial Property
  • Plot Sq Feet: 12,917 sqft
  • Council Tax Band: TBD
Please note, property and plot sizes displayed are for guidance purposes only and may have been derived from publicly available information over which neither the agent nor Street.co.uk have control.

Location

Loudwater is a popular Buckinghamshire village near High Wycombe, benefiting from good transport links, nearby amenities and strong demand for quality dining and hospitality

Properties you may like

By Allen Heritage

Disclaimer - Property ID 6c101bb8-afb9-45e9-9a42-44d424a41cfc. The information displayed about this property comprises a property advertisement. Street.co.uk and Allen Heritage makes no warranty as to the accuracy or completeness of the advertisement or any linked or associated information, and Street.co.uk has no control over the content. This property advertisement does not constitute property particulars. The information is provided and maintained by the advertising agent. Please contact the agent or developer directly with any questions about this listing.