3 Bedroom Semi Detached House, Richardson Road, Tunbridge Wells, TN4

Richardson Road, Tunbridge Wells, TN4

Description

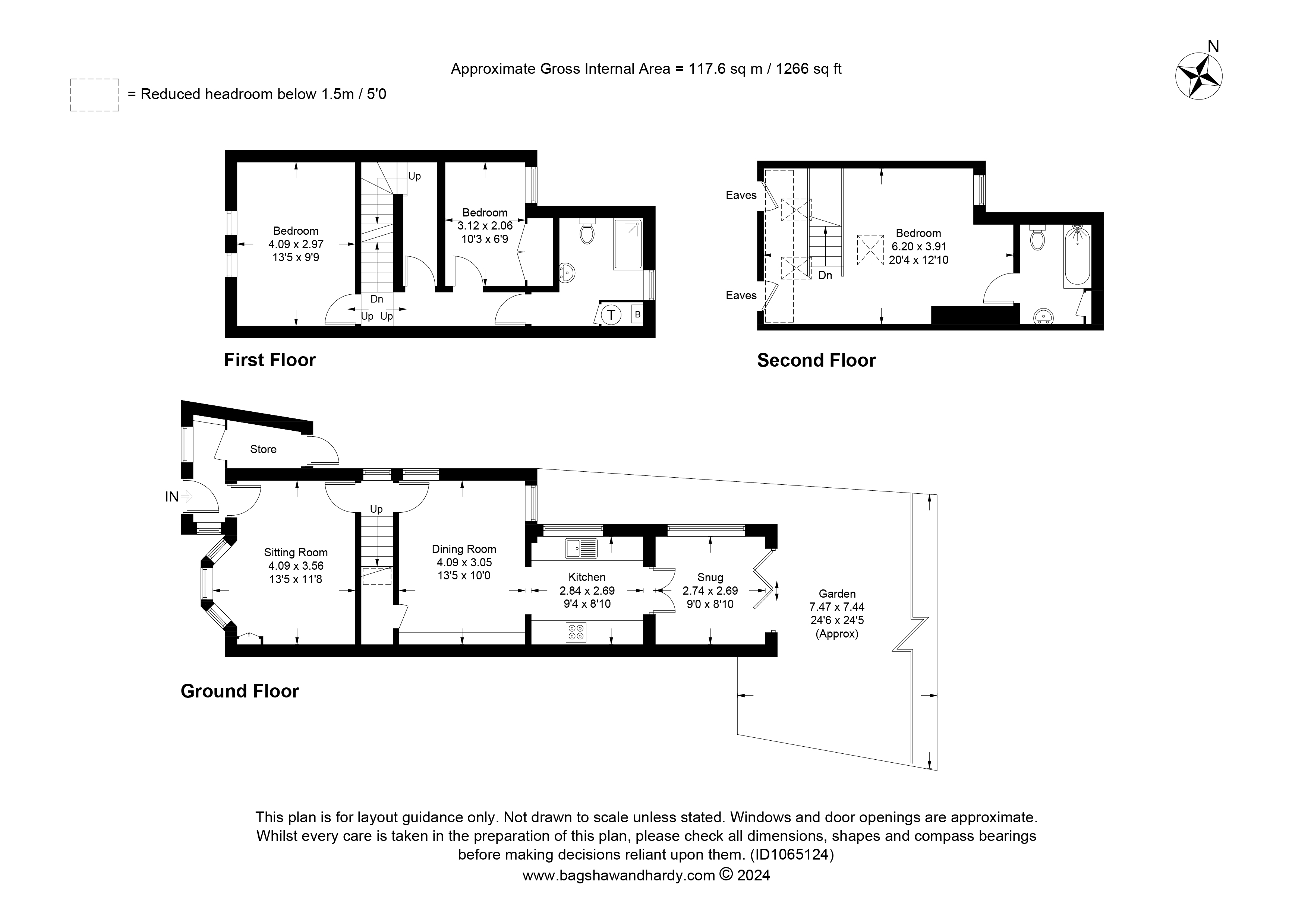
Kings Estates are proud to offer this lovingly refurbished and extended three-bedroom house which offers over 1250sqft of space, exuding contemporary elegance and style, tucked away in the popular St John's area of Tunbridge Wells.

Upon entering, you are welcomed by a bright and airy entrance porch, ideal for storing shoes and offering side access through a useful walk-in cupboard with shelving. The cosy sitting room, adorned with a bay window, sets a warm and inviting atmosphere. The ground floor boasts a dual-aspect dining room with under-stairs storage and seamless connectivity to the modern kitchen. The kitchen features sleek handle-less matt cupboards, stone worktops, and integrated Bosch appliances, including a wine cooler, creating a perfect space for culinary delights. Bifold doors in the rear extension open to the garden, flooding the room with natural light.

On the first floor, two well-proportioned bedrooms await, along with a modern family shower room. The front bedroom enjoys ample sunlight through two south-westerly facing sash windows, while the second bedroom, currently used as a study, offers practical storage solutions with a large built-in cupboard. The two bedrooms on this floor share the modern shower room which has a large walk-in shower with an Aqualisa shower, a contemporary wash hand basin with mixer tap and drawers under, a low-level WC and a modern chrome heated ladder style towel rail.

The loft has been tastefully converted into a bright and airy bedroom with an en suite bathroom, boasting Velux windows, a stylish roof lantern, and eaves storage.

The enclosed rear garden features a small raised patio, a raised flower bed, and shrub borders surrounding a gravel seating area, providing a pretty outdoor retreat.

ST JOHNS

The property is located in the popular St. Johns area of Royal Tunbridge Wells. Tunbridge Wells is the only spa town in the Southeast of England, with elegant architecture and a variety of cultural, entertainment and shopping attractions, including the historic Pantiles, historic Pantiles, known for its charming Georgian colonnade, summer Jazz festivals, regular food and craft markets and Chalybeate Spring; there are two theatres locally, an abundance of cafés and restaurants and a mixture of national multiple retailers and independent shops.

Amenities: The house is located nearby to very good amenities in St Johns, with a number of mini-supermarkets available, such as Sainsbury’s Local, M&S Food and Waitrose, cafés, bars and restaurants, hairdressers and a good variety of local independent shops, including The Cheese Shop, Cycle Shop and Beauticians and is just over a mile of the main shopping centre.

Recreational Amenities: Recreational amenities such as the St John`s Recreational Ground, Dunorlan and Grosvenor Parks, Calverley Grounds, the Assembly Hall Theatre, Nevill Golf Club and St Johns Sports Centre offer an abundance of leisure facilities.

State and Private Schools: There are many highly-regarded schools in the vicinity, including Skinners, TWGGS, TWGSB, St John’s CE primary, Bennett Memorial Diocesan and St Gregory’s secondaries all within a mile of the property.

Mainline rail: Tunbridge Wells (about 0.9 miles) & High Brooms (1 mile), with fast and frequent services to London Charing Cross (via London Bridge and Waterloo East) and Cannon Street with journey times from 50 minutes. The Centaur Commuter Coach service also stops along the St John's Road.

Communications: The A26 joins the A21 just North of the town, linking through to the M25 (junction 5) London orbital motorway, and thereby to the national motorway network, and to the South coast. Gatwick Airport is about 23 miles to the West, accessible via the motorway or via the A264.

OTHER INFORMATION

COUNCIL TAX BAND - C - Tunbridge Wells Borough Council
TENURE - Freehold

We advise all interested purchasers to contact their legal advisor and seek confirmation of these figures/information prior to an exchange of contracts.

CONSUMER PROTECTION FROM UNFAIR TRADING REGULATIONS 2008

Kings Estates (the agent) has not tested any apparatus, equipment, fixtures and fittings or services and therefore cannot verify that they are in working order or fit for purpose. A buyer is advised to obtain verification from their own solicitor or surveyor. References to the tenure of a property are based on information supplied by the vendor. Kings Estates has not had sight of the title documents. Items shown in photographs are NOT included unless specifically mentioned within the written sales particulars. They may however be available by separate negotiation, please ask us at Kings Estates. We kindly ask that all buyers check the availability of any property of ours and make an appointment to view with one of our team before embarking on any journey to see a property.


EPC Rating: C

Key Features

  • Charming 3-bedroom house in Tunbridge Wells's sought-after St John's area, offering over 1250 sqft of accommodation
  • Lovingly extended and refurbished, boasting contemporary elegance and style
  • Bright and airy entrance porch leads to a cosy sitting room with bay window
  • Dual aspect dining room with understairs storage seamlessly connected to the kitchen
  • Modern kitchen featuring sleek handle-less matt cupboards and integrated Bosch appliances
  • Two well-proportioned bedrooms and a modern family shower room on the first floor
  • Loft converted into a bright bedroom with ensuite bathroom and ample storage
  • 2 minute walk from Sainsburys Local and just a 5-minute walk from M&S, Waitrose and Tesco metro
  • 12 minute walk from Tunbridge Wells train station and the Centaur coach that takes commuters directly into Canary Wharf stops at the top of the road.
  • A selection of local coffee shops, excellent curry and pizza houses, pubs and hairdressers close by

Property Details

  • Property type: House
  • Property style: Semi Detached
  • Approx Sq Feet: 1,266 sqft
  • Plot Sq Feet: 1,475 sqft
  • Property Age Bracket: Edwardian (1901 - 1910)
  • Council Tax Band: C
Please note, property and plot sizes displayed are for guidance purposes only and may have been derived from publicly available information over which neither the agent nor Street.co.uk have control.

Floorplans

Outside Spaces

Garden

7.47m x 7.44m

Parking Spaces

On street

Capacity: N/A

Location

Properties you may like

By Kings Estates

Disclaimer - Property ID 7398cc93-573b-40c8-a456-4a7c5adc4bdd. The information displayed about this property comprises a property advertisement. Street.co.uk and Kings Estates makes no warranty as to the accuracy or completeness of the advertisement or any linked or associated information, and Street.co.uk has no control over the content. This property advertisement does not constitute property particulars. The information is provided and maintained by the advertising agent. Please contact the agent or developer directly with any questions about this listing.