Book a Viewing
To book a viewing for this property, please call Mansell McTaggart Lindfield, on 01444 484084.
To book a viewing for this property, please call Mansell McTaggart Lindfield, on 01444 484084.
2 Bedroom Mid-Terraced House, Challoners, Horsted Keynes, RH17
Challoners, Horsted Keynes, RH17

Mansell McTaggart Lindfield
Mansell Mctaggart 53A High Street, Lindfield
Description
*PLEASE WATCH VIEWING VIDEO*
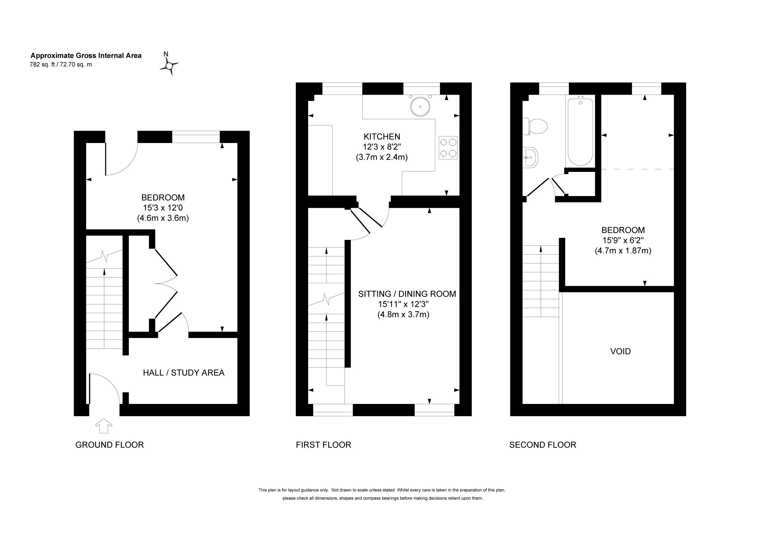
A recently refurbished 2 Bedroom, 3 storey Town House situated in the heart of this popular Mid-Sussex village backing onto the Recreational Ground. VACANT POSSESSION
Front door into the Entrance Hall / an ideal Study Area. Door into Bedroom 1 storage cupboard and door to garden.
First Floor - Newly fitted Kitchen with a range of soft close units and drawers, space and plumbing for domestic appliances, 4-ring electric hob and oven below plus pleasant views to the rear. Open plan Sitting / Dining Room generous front windows, 2 radiators, downlighting and central heating controls.
Top Floor - mezzanine level Bedroom 2 radiator, power points and rear window. Bathroom with a fitted white suite, enclosed bath, shower unit, low level WC, wash basin and storage.
uPVC double glazed windows / external doors and oil fired central heating to radiators.
Outside - Driveway to the front for 1-2 vehicles. Enclosed 32’ x 13’ Rear Garden gravelled for ease of maintenance, fencing, oil cylinder and boiler, water tap and gated rear access. Tucked away location walking distance of local Primary School, Village Green, pubs and shop.
EPC Rating: E
Virtual Tour
Key Features
- A recently refurbished 3 storey Town House situated in the heart of popular Mid-Sussex village back onto the Recreational Ground + VACANT POSSESSION
- Entrance Hall / Study Area + ground floor Bedroom 1 + door to garden
- First Floor: Newly fitted kitchen with a range of units + appliances
- Open plan Sitting / Dining Room + stairs to top floor
- Top Floor: mezzanine level Bedroom 2 + white Bathroom
- UPVC double glazed windows + external doors + oil fired central heating to radiators
- Driveway to the front for 1-2 vehicles + enclosed Rear Garden
- Tucked away location walking distance of local Primary School, Village Green, pubs and shop
- EPC Rating: TBC and Council Tax Band: B
Property Details
- Property type: House
- Plot Sq Feet: 96,003 sqft
- Council Tax Band: B
Floorplans
Outside Spaces
Rear Garden
9.75m x 3.96m
32' x 13' Gravelled Rear Garden for ease of maintenance backing onto the Recreational Ground. Timber fencing, oil cylinder, external boiler and rear gate.
View PhotosParking Spaces
Location
LOCATION - The property is situated on the southern side of the village in an established residential area. The village has a store providing daily needs, a highly regarded primary school, an historic Church, 2 pub/restaurants, a social club and a tennis club. The village is pleasantly surrounded by rolling Sussex countryside interspersed with numerous footpaths and bridleways linking with the neighbouring districts. STATION - Haywards Heath (4.5 miles distant) provides a more comprehensive range of shopping and leisure facilities including a state of the art leisure centre and a mainline railway station with excellent commuter services to London (Victoria/London Bridge both 47 mins), Gatwick Airport (15 mins) and the south coast (Brighton 20 mins). SCHOOLS - St Giles Primary (0.6 miles), Oathall Community College (Lindfield 4.4 miles). The local area is well served by several independent schools which include Great Walstead (3.3 miles) and Cumnor House (2.3 miles)
Properties you may like
By Mansell McTaggart Lindfield