Book a Viewing

To book a viewing for this property, please call Mansell McTaggart Lindfield, on 01444 484084.

To book a viewing for this property, please call Mansell McTaggart Lindfield, on 01444 484084.

For Sale
£475,000 Guide Price

4 Bedroom End of Terrace House, Rixons Close, Horsted Keynes, RH17

Rixons Close, Horsted Keynes, RH17


Colour Logo - Full brand logo

Mansell McTaggart Lindfield

Mansell Mctaggart 53A High Street, Lindfield

Description

*PLEASE WATCH VIEWING VIDEO*

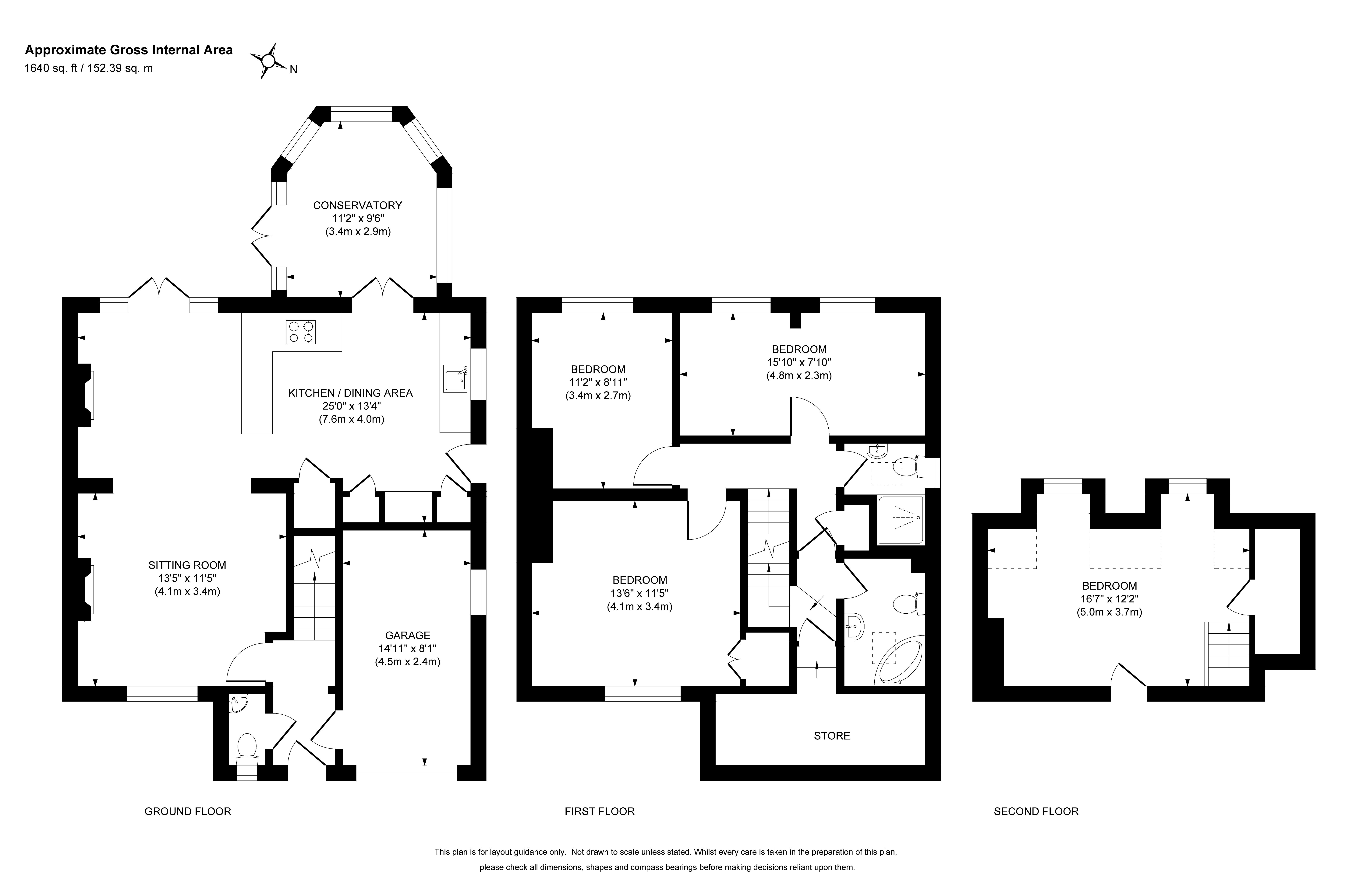
MODERNISATION REQUIRED. An extended 4 Bedroom, 2 Bath/Shower Room end of terrace village home. 120 ft West Facing Rear Garden. VACANT POSSESSION. An excellent opportunity to create your own home!

Entrance Hall stairs to first floor and door to garage. Cloakroom/WC fitted white suite plus consumer unit. Spacious open plan L-shaped Kitchen / Dining/ Sitting Room triple aspect, front window, side door, rear double doors to garden + feature fireplaces - Kitchen with fitted units, worksurfaces, space and plumbing for appliances and deep understairs storage. Doors into the Conservatory windows and double doors.

First Floor - landing, airing cupboard with hot water cylinder. Bedroom 2 front window, radiator and storage. Bedroom 3 rear window, radiator. Bedroom 4 rear windows and radiator. Family Shower Room fitted white suite, shower enclosure, low level WC, wash basin and side Velux.

Landing door: Inner Lobby with eave storage and stairs to top floor. Family Bathroom fitted white suite, shaped corner bath, low level WC, wash basin and front Velux.

Top Floor - double aspect Bedroom 1 with 2 rear windows, 2 front Velux windows, storage cupboard and eaves space. uPVC double glazed windows and oil fired central heating to radiators

Outside - Front Driveway for 3 vehicles, gate into the Front Garden laid to lawn with oil cylinder, further Driveway Parking leading to the integral Garage roller door, power, lighting, floor standing oil fired ‘Grant’ boiler. Gated side access around to the 120’ x 28’ West Facing Rear Garden sheds, shaped lawn, water tap and summerhouse (central path allowing neighbour access).

Virtual Tour


Key Features

  • An extended 4 Bedroom, 2 Bath/Shower Room end of terrace village home + 120 ft West Facing Rear Garden + VACANT POSSESSION
  • MODERNISATION REQUIRED - An excellent opportunity to create your own home
  • Entrance Hall + ground floor Cloakroom/WC
  • Spacious open plan L-shaped Kitchen / Dining / Sitting Room + fireplaces and adjoining Conservatory
  • 3 First Floor Bedrooms + 2 Bath / Shower Rooms (both fitted with white suites)
  • Top Floor double aspect Bedroom + storage
  • UPVC double glazed windows + oil fired central heating to radiators
  • Front Driveway for 3 vehicles + lawned Garden / further Driveway leading to the integral Garage
  • EPC Rating: D and Council Tax Band: C

Property Details

  • Property type: House
  • Property style: End of Terrace
  • Price Per Sq Foot: £290
  • Approx Sq Feet: 1,640 sqft
  • Plot Sq Feet: 5,038 sqft
  • Council Tax Band: C
Please note, property and plot sizes displayed are for guidance purposes only and may have been derived from publicly available information over which neither the agent nor Street.co.uk have control.

Floorplans

Outside Spaces

Rear Garden

36.58m x 8.53m

A generous Rear Garden with timber sheds, shaped lawns and water tap (central path allowing neighbour access).

View Photos

Parking Spaces

Garage

Capacity: 1

Driveway Parking for 3-4 vehicles plus integral Garage.

View Photos

Location

LOCATION - The property occupies a central position close to the village Green and a stone’s throw of all amenities including the village store, The Crown and Green Man public house/restaurants, sports and social club plus Church. Horsted Keynes is surrounded by picturesque countryside, interspersed by footpaths and bridleways linking with the neighbouring districts, villages and the Ashdown Forest. SCHOOLS - St Giles Primary School (0.4 miles), Oathall Community College Secondary School (4.1 miles). The area is well served by excellent independent schools including Cumnor House, Great Walstead, Ardingly College and Burgess Hill School for Girls. STATION - Haywards Heath mainline railway station (4.6 miles). Fast and regular services to London (London Bridge/Victoria 47 mins), Gatwick Airport (15 mins) and Brighton (20 mins).

Properties you may like

By Mansell McTaggart Lindfield

Disclaimer - Property ID 2890faf1-bd9f-48de-b733-592dd964f2d9. The information displayed about this property comprises a property advertisement. Street.co.uk and Mansell McTaggart Lindfield makes no warranty as to the accuracy or completeness of the advertisement or any linked or associated information, and Street.co.uk has no control over the content. This property advertisement does not constitute property particulars. The information is provided and maintained by the advertising agent. Please contact the agent or developer directly with any questions about this listing.