Book a Viewing

Click here to pick an available date and time to view this property

Book a Viewing
For Sale
£250,000 Offers Over

1 Bedroom Apartment, Herkomer House, High Street, Bushey, WD23

Herkomer House, High Street, Bushey, WD23


Browns brand logo

Browns

Unit 18 WOW Workspaces, Sandown Road, Hertfordshire

Description

This exceptional 453-square-foot, one-bedroom apartment occupies a coveted position on the first floor of Herkomer House, a stunning conversion of a historic art studio named after the celebrated German-born British painter, pioneering film director, and composer, Hubert Von Herkomer.

The expansive open-plan living room and kitchen are flooded with natural light, thanks to south-westerly facing windows that perfectly complement the pristine white walls, creating a bright, airy, and inviting atmosphere. A dining area, ideal for hosting, is elegantly nestled within a recessed space, highlighted by downlights that add an extra layer of sophistication, adjacent to a striking feature wall. The kitchen, seamlessly integrated into the living space, features sleek XenaQuartz worktops and sophisticated cream J-pull cabinetry that cleverly conceals high-end appliances.

The spacious double bedroom, situated to the left of the entrance, offers a serene retreat, complete with ample space for additional freestanding furniture. The bathroom, fully tiled in stylish grey porcelain, is a luxurious haven, featuring a deep bathtub with a rainfall shower, completing this impeccably designed home.


EPC Rating: B

Key Features

  • One-bedroom, first floor apartment
  • 17'9" open-plan living room
  • Modern, fitted kitchen with neutral cabinetry concealing appliances
  • Contemporary family bathroom
  • Superb views from the living room overlooking Bushey Country Club
  • Gas central heating throughout
  • 1.3 miles to Bushey Station (London Euston in 17 minutes).
  • Allocated parking space
  • Perfectly placed for all local amenities including ample open space & Atria shopping centre in Watford
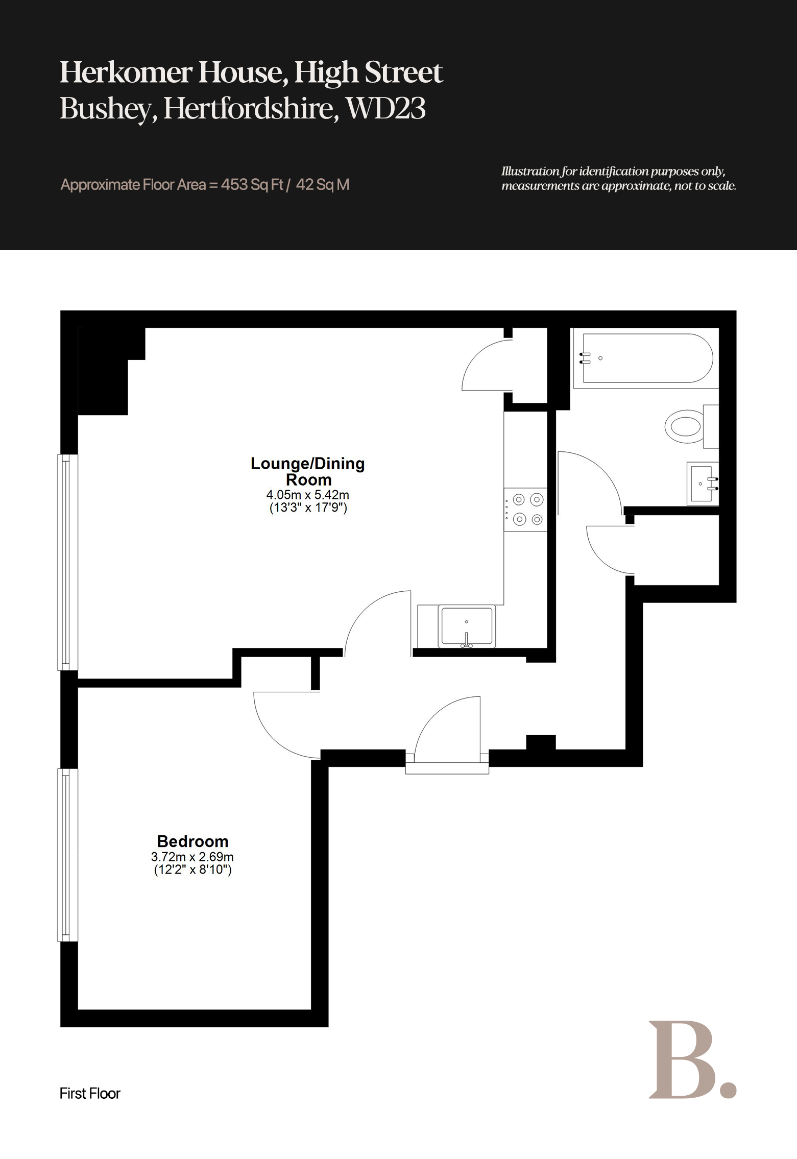
  • 453 sq.ft.

Property Details

  • Property type: Apartment
  • Price Per Sq Foot: £553
  • Approx Sq Feet: 452 sqft
  • Plot Sq Feet: 452 sqft
  • Council Tax Band: C
  • Tenure: Leasehold
  • Lease Expiry: -
  • Ground Rent: £250.00 per year
  • Service Charge: Not Specified
Please note, property and plot sizes displayed are for guidance purposes only and may have been derived from publicly available information over which neither the agent nor Street.co.uk have control.

Floorplans

Parking Spaces

Allocated parking

Capacity: N/A

Location

Properties you may like

By Browns

Disclaimer - Property ID 9eda6936-b687-4812-8dbf-b077c8ab4527. The information displayed about this property comprises a property advertisement. Street.co.uk and Browns makes no warranty as to the accuracy or completeness of the advertisement or any linked or associated information, and Street.co.uk has no control over the content. This property advertisement does not constitute property particulars. The information is provided and maintained by the advertising agent. Please contact the agent or developer directly with any questions about this listing.