Book a Viewing

To book a viewing for this property, please call Myrings Estate Agents, on 01423 566400.

To book a viewing for this property, please call Myrings Estate Agents, on 01423 566400.

To Let
£1,300 pcm

2 Bedroom Terraced House, Harrogate Road, Harewood, LS17

Harrogate Road, Harewood, LS17


NEW NEW NEW BRAND brand logo

Myrings Estate Agents

Myrings Estate Agents Ltd, 10 Princes Square

Description

We are delighted to bring to market this simply stunning recently renovated stone built cottage situated in the highly desirable village of Harewood. The property offers a contemporary feel while still retaining the original character and charm.

Restored to a high standard this grade 2 listed building briefly comprises:

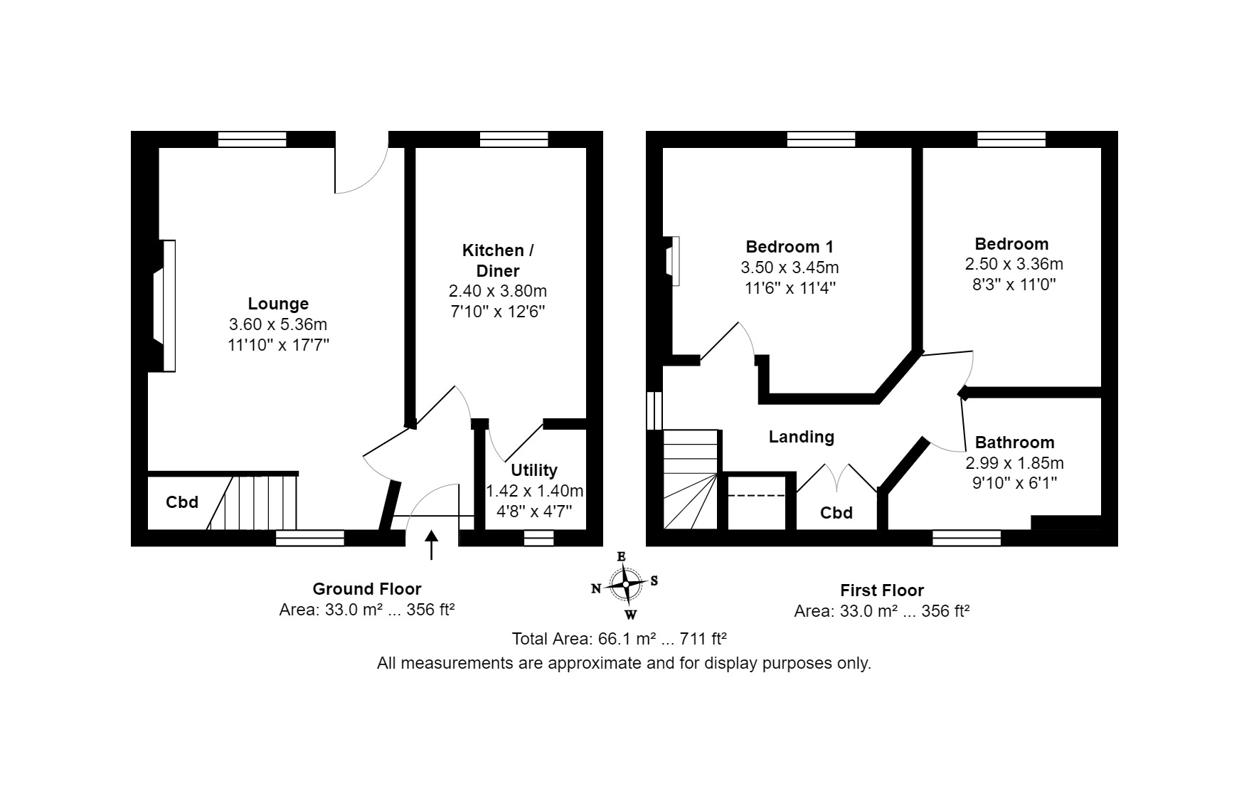
A stunning dining kitchen with luxury units and worktops, electric oven, hob, built in fridge freezer and integrated dishwasher with space for a small dining table. A door leads to a useful laundry room which houses the tumble dryer, a washing machine is not provided.

The bright and airy lounge has a stunning log burner and views over the front garden and fields beyond.

Stairs lead to the first floor where there are two double bedrooms and a stylish house bathroom with white suite and shower over bath. 

To the rear of the property there is a useful outside storage room and parking for one car, to the side there is a wonderful sunny seating area perfect for alfresco dining. The front of the property is mainly laid to lawn with stunning far reaching views. 

PARKING 

The parking at this property is ; allocated off street parking for one car

HEATING 

The heating supply at this property is; mains gas

COUNCIL TAX BAND  

Band C

UTILITIES 

All mains services are connected to the property

BROADBAND 

The property has broadband connection available, for an indication of specifics speeds and supply we recommend you check these details using the Ofcom online search tool 

https://checker.ofcom.org.uk/en-gb/broadband-coverage 

MOBILE SIGNAL / COVERAGE 

Mobile phone signal speed, supply and coverage can be checked using the Ofcom online search tool 

 https://checker.ofcom.org.uk/en-gb/mobile-coverage 

HOLDING DEPOSIT 

A holding deposit equal to one week’s rent will be payable to reserve the property. Please Note: This will be withheld if any relevant person (including any guarantor(s)) withdraw from the tenancy, fail a Right-to-Rent check, provide materially significant false or misleading information, or fail to sign their tenancy agreement (and / or Deed of Guarantee) within 15 calendar days (or other Deadline for Agreement as mutually agreed in writing). 

SECURITY DEPOSIT 

A security deposit is payable, equal to five weeks’ rent for rent under £50,000 per year. The security deposit will be equal to six weeks’ rent for rent of £50,000 or more per year. 


EPC Rating: D

Key Features

  • Two bedroom cottage
  • Recently renovated with a modern finish
  • Far reaching views

Property Details

  • Property type: House
  • Property style: Terraced
  • Approx Sq Feet: 678 sqft
  • Council Tax Band: C
Please note, property and plot sizes displayed are for guidance purposes only and may have been derived from publicly available information over which neither the agent nor Street.co.uk have control.

Floorplans

Outside Spaces

Garden

Gardens to the front and side with parking at the rear

View Photos

Parking Spaces

Off street

Capacity: 1

1 Off street parking space

Location

Harewood is a most desirable location with a range of local amenities including a public house, primary school, post office and doctors surgery. Harrogate 7 miles. Leeds 9 miles. Wetherby A1(M) 6 miles. Regular bus service between Leeds and Harrogate. Mainline train services from Leeds. (All distances are approximate)

Properties you may like

By Myrings Estate Agents

  • Ingleborough Drive, Harrogate, HG3

    • 5 Beds
    • 2 Bath
    View Property
  • £2,400 pcm

    St Wilfrids Crescent, Whitcliffe Lane, HG4

    • 4 Beds
    • 2 Bath
    View Property
  • £2,000 pcm

    11 Windsor Court, Clarence Drive, HG1

    • 2 Beds
    • 2 Bath
    View Property
  • £1,900 pcm

    Boroughbridge Road, Bishop Monkton, HG3

    • 3 Beds
    • 3 Bath
    View Property
  • £1,300 pcm

    Harrogate Road, Harewood, LS17

    • 2 Beds
    • 1 Bath
    View Property
  • £995 pcm

    South Drive, Harrogate, HG2

    • 1 Beds
    • 1 Bath
    View Property
  • £2,000 pcm

    11 Windsor Court, Clarence Drive, HG1

    • 2 Beds
    • 2 Bath
    View Property
  • £1,450 pcm

    Woodside Walk, Harrogate, HG1

    • 3 Beds
    • 2 Bath
    View Property
  • £950 pcm

    Mayfield Grove, Harrogate, HG1

    • 2 Beds
    • 1 Bath
    View Property
Disclaimer - Property ID acc42cac-8a28-4028-a6c5-2c63cf442b0b. The information displayed about this property comprises a property advertisement. Street.co.uk and Myrings Estate Agents makes no warranty as to the accuracy or completeness of the advertisement or any linked or associated information, and Street.co.uk has no control over the content. This property advertisement does not constitute property particulars. The information is provided and maintained by the advertising agent. Please contact the agent or developer directly with any questions about this listing.