Book a Viewing

Click here to pick an available date and time to view this property

Book a Viewing
For Sale
£80,000

Land, 9 Southgate, Eckington, S21

9 Southgate, Eckington, S21


Butlers Estate Agents brand logo

Butlers Estate Agents

Butlers Estate Agents Ltd, 60 High Street

Description

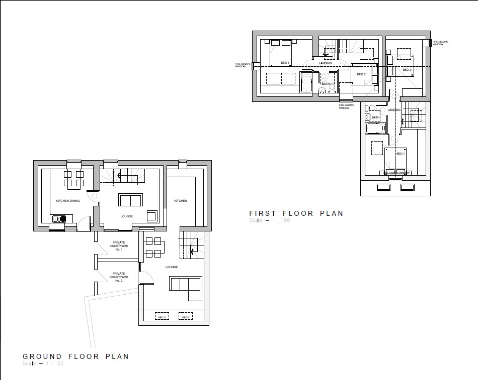
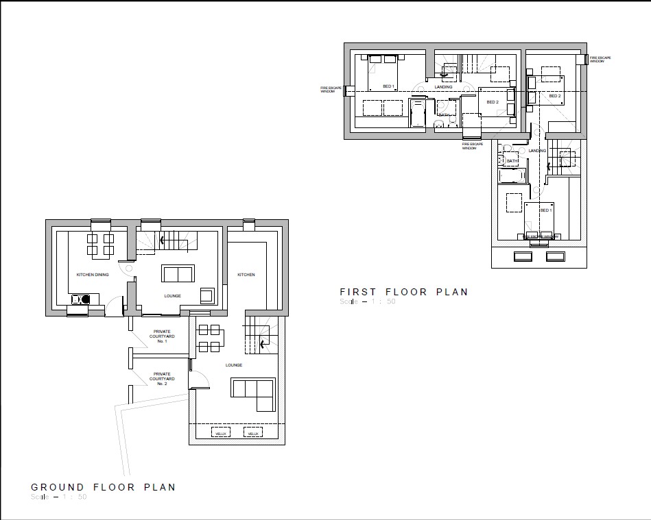
We are pleased to present an excellent opportunity to acquire this former bakery, situated in the sought-after location of Eckington. The property currently benefits from planning permission for conversion into a semi-detached dwelling. Each proposed residence will feature a lounge, kitchen, and dining area on the ground floor. The first floor will offer two double bedrooms and a bathroom. Externally, each property will enjoy a private courtyard.

Located in the heart of Eckington, the property is conveniently positioned close to transport links, local amenities, and schools. While planning permission has been granted for the current scheme, there is potential to pursue alternative design concepts, subject to further planning approval.

The sale of this land will be through a limited company which is VAT registered so VAT will be payable at 20%.

Viewings are strictly by appointment only.

Key Features

  • Development Opportunity
  • Planning Permission Granted
  • Former Bakery
  • Heart of Eckington
  • Planning For Semi Detached Dwelling
  • Each dwelling Two Bedrooms
  • Each Dwelling Has A Court Yard Area
  • Good Local Amenities, Transport Links and Schools

Property Details

  • Property type: Land
  • Plot Sq Feet: 5,253 sqft
  • Council Tax Band: TBD
Please note, property and plot sizes displayed are for guidance purposes only and may have been derived from publicly available information over which neither the agent nor Street.co.uk have control.

Rooms

Room 1

4.49m x 4.04m

A roller shutter provides access to the first part of the bakery (room 1) previously used as a dispatch area. It has a window and access to room 2.

View Room 1 Photos

Room 2

4.51m x 4.60m

Room 2 has a window and situated off room 1, providing access to room 3.

View Room 2 Photos

Room 3

4.50m x 2.81m

Room 3 is situated off room 2.

View Room 3 Photos

Room 4

5.88m x 5.84m

Room 4 is a portacabin standing on its own and has its own entrance and two windows.

View Room 4 Photos

WC

3.48m x 1.14m

The WC is situated within the footprint of room 4 Portacabin currently with a WC and wash hand basin.

View WC Photos

Outside Spaces

Yard

Access is situated off Southgate and the land is located to the rear of 9 Southgate, Eckington. The land currently has planning permission for a court yard to each dwelling.

Location

Properties you may like

By Butlers Estate Agents

Disclaimer - Property ID b3a62278-b805-4430-ab78-aecc699a5d01. The information displayed about this property comprises a property advertisement. Street.co.uk and Butlers Estate Agents makes no warranty as to the accuracy or completeness of the advertisement or any linked or associated information, and Street.co.uk has no control over the content. This property advertisement does not constitute property particulars. The information is provided and maintained by the advertising agent. Please contact the agent or developer directly with any questions about this listing.