Book a Viewing

To book a viewing for this property, please call Fine and Country West Wales & Pembrokeshire / Homes of Wales, on 01974 299055.

To book a viewing for this property, please call Fine and Country West Wales & Pembrokeshire / Homes of Wales, on 01974 299055.

For Sale
£80,000

Plot, Land Adjacent To The Boncath Inn, Boncath, SA37

Land Adjacent To The Boncath Inn, Boncath, SA37


Fine and Country West Wales / Homes of Wales Primary Brand brand logo

Fine and Country West Wales & Pembrokeshire / Homes of Wales

2nd Floor Suites 8 Great Darkgate Street, Aberystwyth

Description

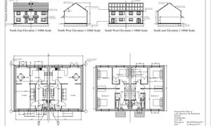
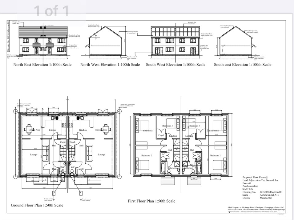
Building Plot with Planning Permission – Boncath

An exciting opportunity to acquire a development plot with full planning permission for two semi-detached dwellings, situated in the sought-after rural village of Boncath, in the heart of the West Wales countryside.

The plot occupies a pleasant position within this popular village, offering a blend of rural charm and community living. Planning consent has been granted for the construction of a pair of well-proportioned semi-detached homes, making this an ideal prospect for developers, investors or private buyers seeking a small residential project.

Boncath is well regarded for its village amenities and scenic surroundings, while enjoying convenient access to nearby towns, the Pembrokeshire coastline and wider transport links.

Early interest is highly recommended to appreciate the potential this attractive plot has to offer.

Key Features

  • Development plot with planning permission in place
  • Approved for two semi-detached houses
  • Desirable village location in rural West Wales
  • Ideal for developers or owner-builders
  • Further plans and details available on request

Property Details

  • Property type: Plot
  • Council Tax Band: TBD
Please note, property and plot sizes displayed are for guidance purposes only and may have been derived from publicly available information over which neither the agent nor Street.co.uk have control.

Rooms

Hallway

WC

1.78m x 0.96m

Lounge

5.00m x 3.88m

Kitchen/Dining Area

3.24m x 6.35m

Bedroom One

4.19m x 2.93m

Bedroom Two

4.05m x 3.62m

Bedroom Three

3.24m x 3.30m

Bathroom

1.78m x 2.72m

Airing Cupboard/Storage

1.21m x 0.70m

Floorplans

Location

Properties you may like

By Fine and Country West Wales & Pembrokeshire / Homes of Wales

  • Dolhaidd Mansion, Henllan, Carmarthenshire, SA44

    • 17 Beds
    • 8 Bath
    View Property
  • Ty Nant, Mill Street, Llwyngwril, LL37

    • 5 Beds
    • 2 Bath
    View Property
  • The Pump House, Little Newcastle, SA62

    • Beds
    • Bath
    View Property
  • Hebron, Whitland, SA34

    • 4 Beds
    • 1 Bath
    View Property
  • Penygraig, Llanbadarn Fawr, SY23

    • 4 Beds
    • 3 Bath
    View Property
  • 5 bedroom Townhouse & 1 bedroom Apartment, Aberaeron, SA46

    • 5 Beds
    • 4 Bath
    View Property
  • Station Road, Nantgaredig, SA32

    • 3 Beds
    • Bath
    View Property
  • Trenewydd Farm Cottages, Holiday Centre

    • Beds
    • Bath
    View Property
  • Y Bwthyn, Cefnllwyd, Capel Dewi, Aberystwyth, SY23

    • 4 Beds
    • 2 Bath
    View Property
Disclaimer - Property ID c12bf00f-c3e3-43e4-8cdf-1fe353b38bcd. The information displayed about this property comprises a property advertisement. Street.co.uk and Fine and Country West Wales & Pembrokeshire / Homes of Wales makes no warranty as to the accuracy or completeness of the advertisement or any linked or associated information, and Street.co.uk has no control over the content. This property advertisement does not constitute property particulars. The information is provided and maintained by the advertising agent. Please contact the agent or developer directly with any questions about this listing.